Кондиционеры Daikin UATYQ-CY1 - инструкция пользователя по применению, эксплуатации и установке на русском языке. Мы надеемся, она поможет вам решить возникшие у вас вопросы при эксплуатации техники.
Если остались вопросы, задайте их в комментариях после инструкции.
"Загружаем инструкцию", означает, что нужно подождать пока файл загрузится и можно будет его читать онлайн. Некоторые инструкции очень большие и время их появления зависит от вашей скорости интернета.

5
FRANÇAIS
342
2180
1546
342
22
2113
99
58
168
2230
630
164
REPRISE
D
’
AIR
VERTICALE
ADMISSION
D
’
AIR
VERTICALE
407
164
187
614
613
538
280
2209
1130
265
544
651
614
136
TUYAU D
’
ÉVACUATION
ø
1"
235
630
264
1161
1069
328
405
395
BOÎTIER DE
COMMANDE
ADMISSION D
’
AIR
REPRISE
D
’
AIR
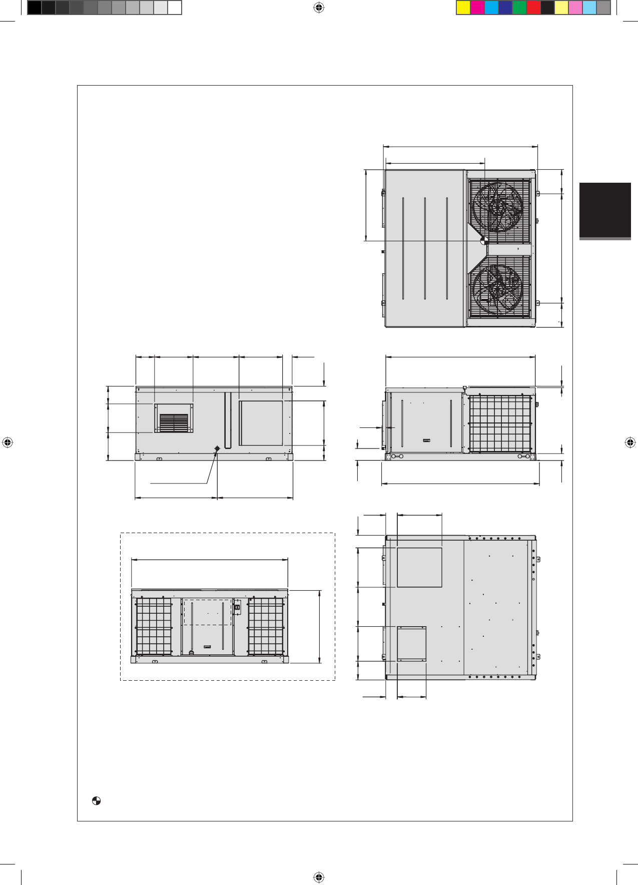
Vue arrière de l
’
unité :
1385
1000
Modèle : UATYQ450
Toutes les dimensions sont données en mm
CENTRE DE GRAVITÉ
POUR REFOULEMENT HORIZONTAL
POUR REFOULEMENT VERTICAL
3 IM 5RTBR-0710(2)-FR.indd 5
3 IM 5RTBR-0710(2)-FR.indd 5
1/12/11 8:31:27 AM
1/12/11 8:31:27 AM












