Кондиционеры Daikin UATYQ-CY1 - инструкция пользователя по применению, эксплуатации и установке на русском языке. Мы надеемся, она поможет вам решить возникшие у вас вопросы при эксплуатации техники.
Если остались вопросы, задайте их в комментариях после инструкции.
"Загружаем инструкцию", означает, что нужно подождать пока файл загрузится и можно будет его читать онлайн. Некоторые инструкции очень большие и время их появления зависит от вашей скорости интернета.

3
Р
У
ССКИЙ
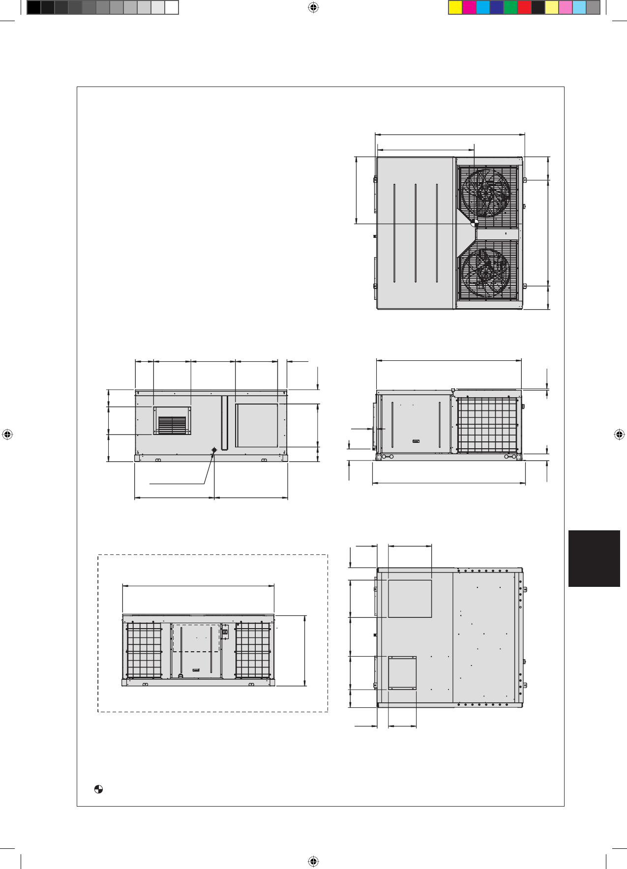
Модель: UATYQ350
Все размеры указаны в мм
ЦЕНТР ТЯЖЕСТИ
ДЛЯ ВЕРТИКАЛЬНОГО ВЫПУСКА
ДРЕНАЖНЫЙ ШЛАНГ
ø
1"
ВОЗВРАТНЫЙ
ВОЗДУХ
ВЕРТИКАЛЬНЫЙ
ВОЗВРАТ
ВОЗДУХА
342
342
1546
22
99
2113
2230
58
207
213
630
265
544
651
614
136
250
395
405
1161
1070
164
630
187
614
613
538
280
407
164
ВЕРТИКАЛЬНАЯ
ПОДАЧА
ВОЗДУХА
2180
168
1000
1410
ПОДАВАЕМЫЙ ВОЗДУХ
Вид блока сзади:
2209
1028
БЛОК
УПРАВЛЕНИЯ
ДЛЯ ГОРИЗОНТАЛЬНОГО ВЫПУСКА
9 IM 5RTBR-0710(2)_RU.indd 3
9 IM 5RTBR-0710(2)_RU.indd 3
1/12/11 9:28:29 AM
1/12/11 9:28:29 AM












