Кондиционеры Daikin UATYQ-CY1 - инструкция пользователя по применению, эксплуатации и установке на русском языке. Мы надеемся, она поможет вам решить возникшие у вас вопросы при эксплуатации техники.
Если остались вопросы, задайте их в комментариях после инструкции.
"Загружаем инструкцию", означает, что нужно подождать пока файл загрузится и можно будет его читать онлайн. Некоторые инструкции очень большие и время их появления зависит от вашей скорости интернета.

14
Q
KİSİM X-X
41,5
C
X
Z
B
M
KİSİM Y-Y
KİSİM Z-Z
O
25
52
N
P
H
Y
A
D
E
F
G
X
Z
I
K
L
R
J
Y
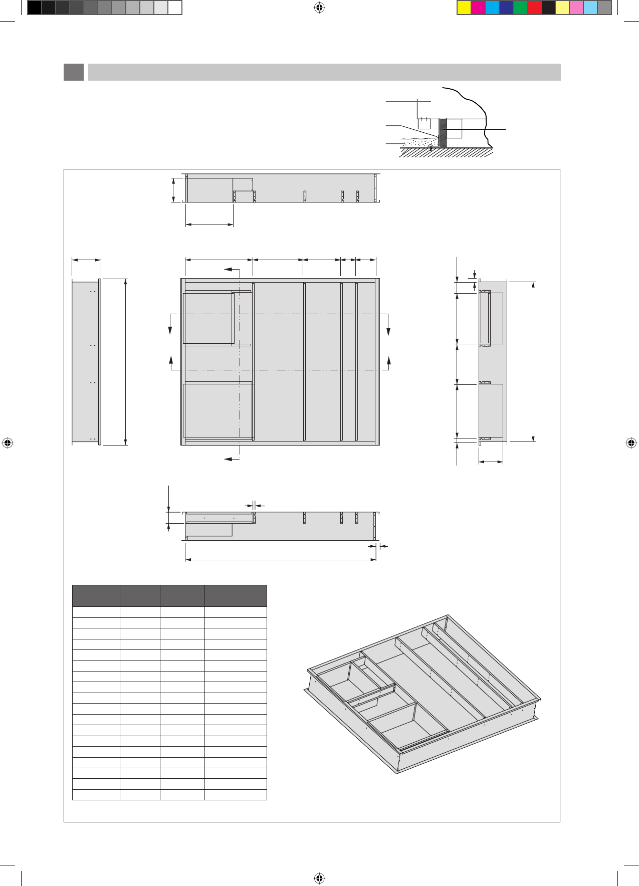
Şekilde bu üniteleri monte etmek için çatı tutucusu
kullanımı gösterilmektedir.
Tutucu hava yalıtımıyla çatıya contalanıp
sabitlenmelidir. Önerilen ünite ve çatı tutucusu
contalama şekli sağda gösterilmektedir.
Önerilen çatı tutucusu boyutları aşağıda
gösterilmektedir.
l
l
l
Çatı üst kısmı
Katranlı conta
Çatı
tutucusu
Ünite
C
Ünite Desteği ( Yalnızca aşağıya bükülü ünite için)
Not:
Tüm boyutlar mm olarak verilmiştir
Modeller
(UATYQ)
250
350/450
550/600/700
A
355
355
355
B
1506
2081
2081
C
840
700
840
D
315
410
625
E
315
410
462
F
0
0
190
G
314
287
248
H
0
131
131
I
607
600
646
J
322
544
495
K
540
682
676
L
0
42
51
M
300
300
300
N
141
141
141
O
1784
1807
2365
P
300
300
300
Q
481
477
590
R
1469
1998
1998
11 IM 5RTBR-0710(3)DK(denv)-TR.i14 14
11 IM 5RTBR-0710(3)DK(denv)-TR.i14 14
4/10/12 3:09:49 PM
4/10/12 3:09:49 PM












