Кондиционеры Daikin UATYQ-CY1 - инструкция пользователя по применению, эксплуатации и установке на русском языке. Мы надеемся, она поможет вам решить возникшие у вас вопросы при эксплуатации техники.
Если остались вопросы, задайте их в комментариях после инструкции.
"Загружаем инструкцию", означает, что нужно подождать пока файл загрузится и можно будет его читать онлайн. Некоторые инструкции очень большие и время их появления зависит от вашей скорости интернета.

3
Ε
Λ
ΛΗΝΙΚΆ
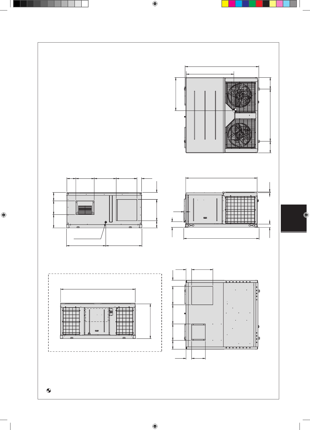
Μοντέλο: UATYQ350
Όλες οι διαστάσεις είναι σε mm
ΚΕΝΤΡΟ ΒΑΡΟΥΣ
ΣΩΛΗΝΑΣ
ΑΠΟΣΤΡΑΓΓΙΣΗΣ ø 1
"
ΑΕΡΑΣ
ΕΠΙΣΤΡΟΦΗΣ
ΑΕΡΑΣ
ΕΠΙΣΤΡΟΦΗΣ
ΚΑΤΑΚΟΡΥΦΑ
342
342
1546
22
99
2113
2230
58
207
213
630
265
544
651
614
136
250
395
405
1161
1070
ΑΕΡΑΣ
ΠΑΡΟΧΗΣ
ΚΑΤΑΚΟΡΥΦΑ
2180
168
1000
1410
ΑΕΡΑΣ ΠΑΡΟΧΗΣ
Πίσω όψη μονάδας:
2209
1028
ΚΙΒΩΤΙΟ
ΕΛΕΓΧΟΥ
ΓΙΑ ΟΡΙΖΟΝΤΙΑ ΚΑΤΑΘΛΙΨΗ
ΜΕ ΚΑΤΑΚΟΡΥΦΗ ΕΞΑΓΩΓΗ
164
630
187
614
613
538
280
407
164
7 IM 5RTBR-0710(2)-GR.indd 3
7 IM 5RTBR-0710(2)-GR.indd 3
1/12/11 8:57:37 AM
1/12/11 8:57:37 AM












