Кондиционеры Daikin UATYQ-CY1 - инструкция пользователя по применению, эксплуатации и установке на русском языке. Мы надеемся, она поможет вам решить возникшие у вас вопросы при эксплуатации техники.
Если остались вопросы, задайте их в комментариях после инструкции.
"Загружаем инструкцию", означает, что нужно подождать пока файл загрузится и можно будет его читать онлайн. Некоторые инструкции очень большие и время их появления зависит от вашей скорости интернета.

14
Q
SECTION X-X
41.5
C
X
Z
B
M
SECTION Y-Y
SECTION Z-Z
O
25
52
N
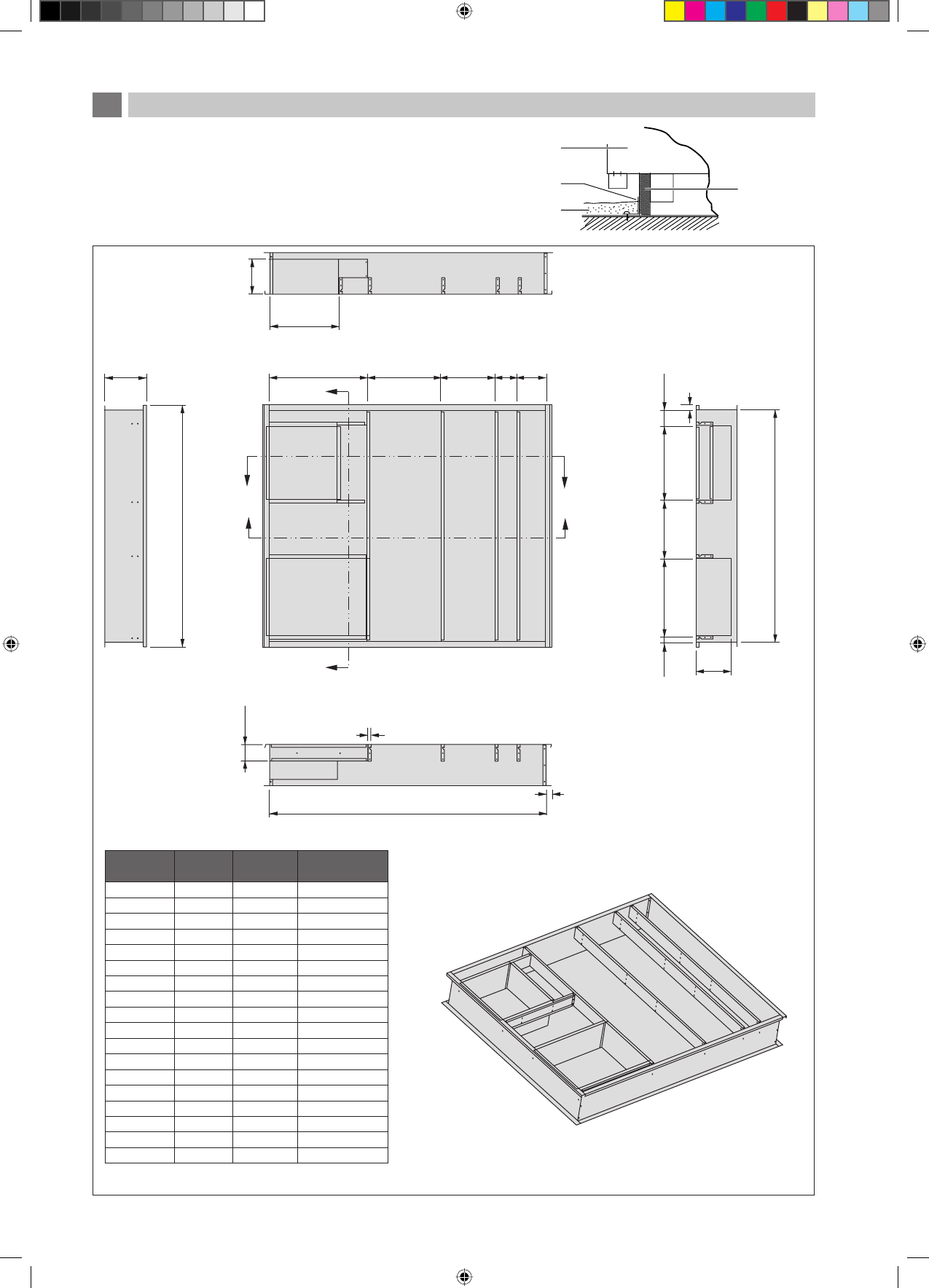
The fi gure shows the use of the roof curb for mounting
these units.
The curb should be sealed and fi xed to the roof by
weather stripping. A suggested means of sealing the
unit and roof curb as shown in the right.
Recommended roof curb dimension is shown below.
l
l
l
Roof deck
Seal with tar
Roof curb
Unit
Note:
All dimensions are in mm
C
Unit Support (For down throw unit only)
Model
(UATYQ)
250
350/450
550/600/700
A
355
355
355
B
1506
2081
2081
C
840
700
840
D
315
410
625
E
315
410
462
F
0
0
190
G
314
287
248
H
0
131
131
I
607
600
646
J
322
544
495
K
540
682
676
L
0
42
51
M
300
300
300
N
141
141
141
O
1784
1807
2365
P
300
300
300
Q
481
477
590
R
1469
1998
1998
P
H
Y
A
D
E
F
G
X
Z
I
K
L
R
J
Y
1 IM 5RTBR-0710(3)DK(denv)-EN.in14 14
1 IM 5RTBR-0710(3)DK(denv)-EN.in14 14
4/6/12 4:37:11 PM
4/6/12 4:37:11 PM












