Кондиционеры Daikin UATYQ-CY1 - инструкция пользователя по применению, эксплуатации и установке на русском языке. Мы надеемся, она поможет вам решить возникшие у вас вопросы при эксплуатации техники.
Если остались вопросы, задайте их в комментариях после инструкции.
"Загружаем инструкцию", означает, что нужно подождать пока файл загрузится и можно будет его читать онлайн. Некоторые инструкции очень большие и время их появления зависит от вашей скорости интернета.

3
DEUTSCH
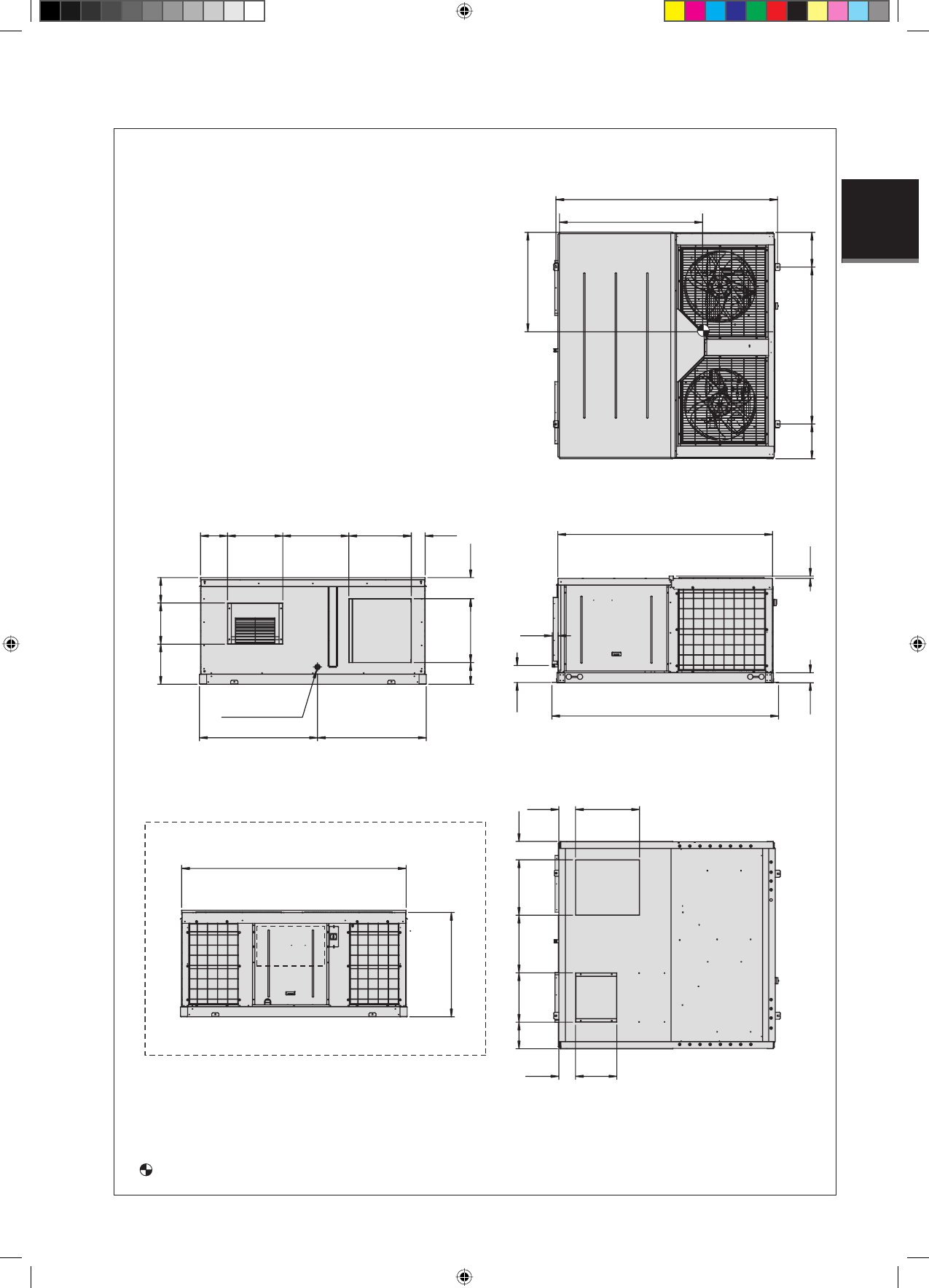
Modell: UATYQ350
Alle Dimensionen sind in mm
SCHWERPUNKT
ABFLUSSROHR Ø 1"
RÜCKLUFT
VERTIKALE
RÜCKLUFT
342
342
1546
22
99
2113
2230
58
207
213
630
265
544
651
614
136
250
395
405
1161
1070
164
630
187
614
613
538
280
407
164
VERTIKALE
LUFTVER-
SORGUNG
2180
168
1000
1410
ZULUFT
Rückansicht des Geräts:
2209
1028
STEUER-
KASTEN
FÜR HORIZONTALENTLADUNG
FÜR VERTIKALENTLADUNG
2 IM 5RTBR-0710(2)-DE.indd 3
2 IM 5RTBR-0710(2)-DE.indd 3
1/10/11 3:48:32 PM
1/10/11 3:48:32 PM












