Кондиционеры Daikin UATYQ-CY1 - инструкция пользователя по применению, эксплуатации и установке на русском языке. Мы надеемся, она поможет вам решить возникшие у вас вопросы при эксплуатации техники.
Если остались вопросы, задайте их в комментариях после инструкции.
"Загружаем инструкцию", означает, что нужно подождать пока файл загрузится и можно будет его читать онлайн. Некоторые инструкции очень большие и время их появления зависит от вашей скорости интернета.

9
DEUTSCH
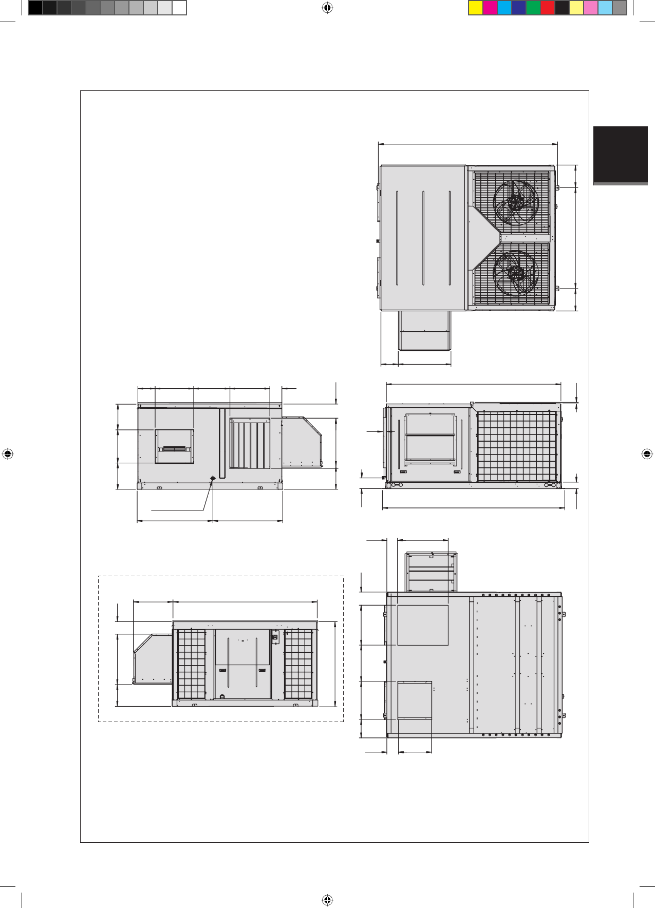
Alle Dimensionen sind in mm
ABFLUSSROHR Ø 1"
ZULUFT
FÜR HORIZONTALENTLADUNG
FÜR VERTIKALENTLADUNG
2739
342
1547
342
806
269
2670
2789
23
99
48
168
210
187
610
558
1161
1069
2209
1302
607
187
771
344
586
268
387
509
405
770
322
RÜCKLUFT
AUSSENLUFT
AUSSENLUFT
770
172
201
610
560
581
281
179
509
STEUER-
KASTEN
Modell: UATYQ600 MIT DER OPTION WÄRMETAUSCHER
Rückansicht des Geräts:
VERTIKALE
RÜCKLUFT
VERTIKALE
LUFTVER-
SORGUNG
2 IM 5RTBR-0710(2)-DE.indd 9
2 IM 5RTBR-0710(2)-DE.indd 9
1/10/11 3:49:25 PM
1/10/11 3:49:25 PM












