Кондиционеры Daikin UATYQ-CY1 - инструкция пользователя по применению, эксплуатации и установке на русском языке. Мы надеемся, она поможет вам решить возникшие у вас вопросы при эксплуатации техники.
Если остались вопросы, задайте их в комментариях после инструкции.
"Загружаем инструкцию", означает, что нужно подождать пока файл загрузится и можно будет его читать онлайн. Некоторые инструкции очень большие и время их появления зависит от вашей скорости интернета.

21
11
10
2
1
9
5
6
8
7
7
4
3
11
1
9
5
6
8
7
7
4
4
2
10
11
10
2
1
9
5
6
8
7
7
4
4
3
FRANÇAIS
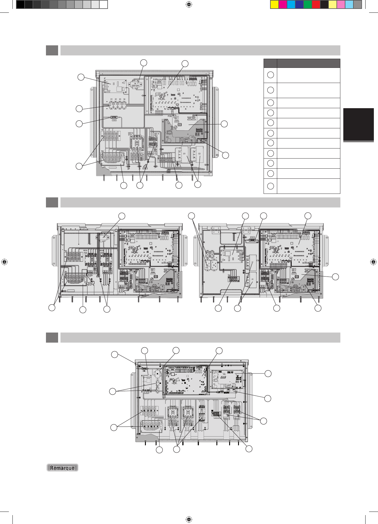
La disposition des borniers et des composants de la commande est indiquée ci-dessous :
(Niveau inférieur)
(Niveau supérieur)
N°
Description élément
1
Tableau principal de
commande
2
Tableau de commande
EXV
3
Condensateur
4
Contacteur
5
Protecteur de phase
6
Relais
7
Bornier
8
Fusible
9
Transformateur
10
Couvercle du bornier
11
Tableau de commande de
l
’
économiseur
A
Module de commande UATYQ250
C
Module de commande UATYQ600/700
B
Module de commande UATYQ350/450/550
L
’
élément 11 (tableau de commande de l
’
économiseur) sera utilisé en conjonction avec l
’
ensemble de l
’
économiseur
qui est fourni séparément en accessoire.
3 IM 5RTBR-0710(2)-FR.indd 21
3 IM 5RTBR-0710(2)-FR.indd 21
1/12/11 8:31:59 AM
1/12/11 8:31:59 AM












