Кондиционеры Daikin UATYQ-CY1 - инструкция пользователя по применению, эксплуатации и установке на русском языке. Мы надеемся, она поможет вам решить возникшие у вас вопросы при эксплуатации техники.
Если остались вопросы, задайте их в комментариях после инструкции.
"Загружаем инструкцию", означает, что нужно подождать пока файл загрузится и можно будет его читать онлайн. Некоторые инструкции очень большие и время их появления зависит от вашей скорости интернета.

14
Q
QUERSCHNITT X-X
41,5
C
X
Z
B
M
QUERSCHNITT Y-Y
QUERSCHNITT Z-Z
O
25
52
N
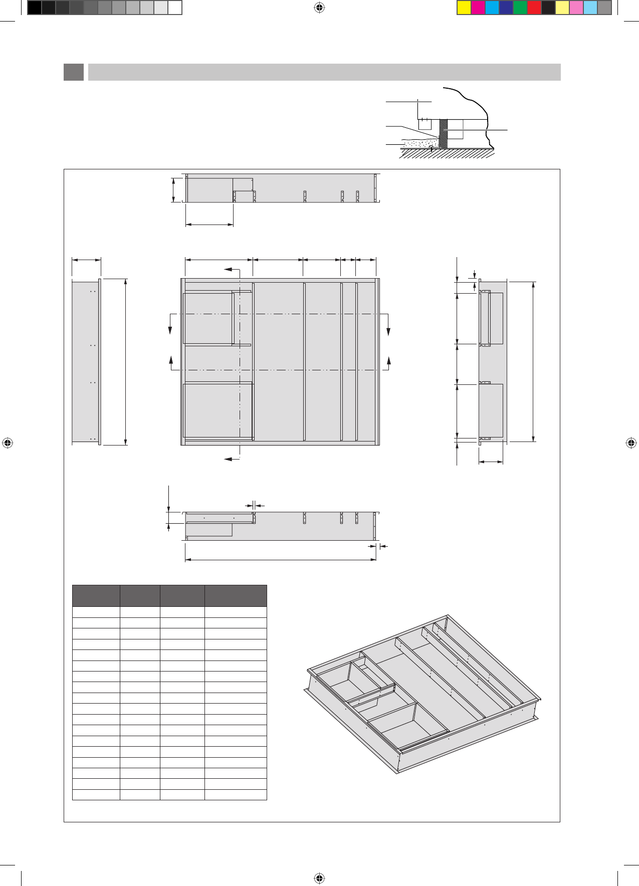
Die Darstellung zeigt die Verwendung ders Roof Curbs
für die Befestigung dieser Geräte.
Die Kante muss abgedichtet werden und mit dem Dach
durch Dichtungsleisten fi xiert werden. Ein Vorschlag
zur Abdichtung des Geräts und des Roof Curbs sind
rechts abgebildet.
Die empfohlene Abmessung des Roof Curbs ist unten
dargestellt.
l
l
l
Dachterrasse
Mit Teer
abdichten
Roof Curb
Gerät
Hinweis:
Alle Dimensionen sind in mm
C
Gerätunterstützung (nur für Unterstellgeräte)
Modell
(UATYQ)
250
350/450
550/600/700
A
355
355
355
B
1506
2081
2081
C
840
700
840
D
315
410
625
E
315
410
462
F
0
0
190
G
314
287
248
H
0
131
131
I
607
600
646
J
322
544
495
K
540
682
676
L
0
42
51
M
300
300
300
N
141
141
141
O
1784
1807
2365
P
300
300
300
Q
481
477
590
R
1469
1998
1998
P
H
Y
A
D
E
F
G
X
Z
I
K
L
R
J
Y
2 IM 5RTBR-0710(3)DK(denv)-DE.in14 14
2 IM 5RTBR-0710(3)DK(denv)-DE.in14 14
4/10/12 2:56:42 PM
4/10/12 2:56:42 PM












