Кондиционеры Daikin UATYQ-CY1 - инструкция пользователя по применению, эксплуатации и установке на русском языке. Мы надеемся, она поможет вам решить возникшие у вас вопросы при эксплуатации техники.
Если остались вопросы, задайте их в комментариях после инструкции.
"Загружаем инструкцию", означает, что нужно подождать пока файл загрузится и можно будет его читать онлайн. Некоторые инструкции очень большие и время их появления зависит от вашей скорости интернета.

9
NEDERLANDS
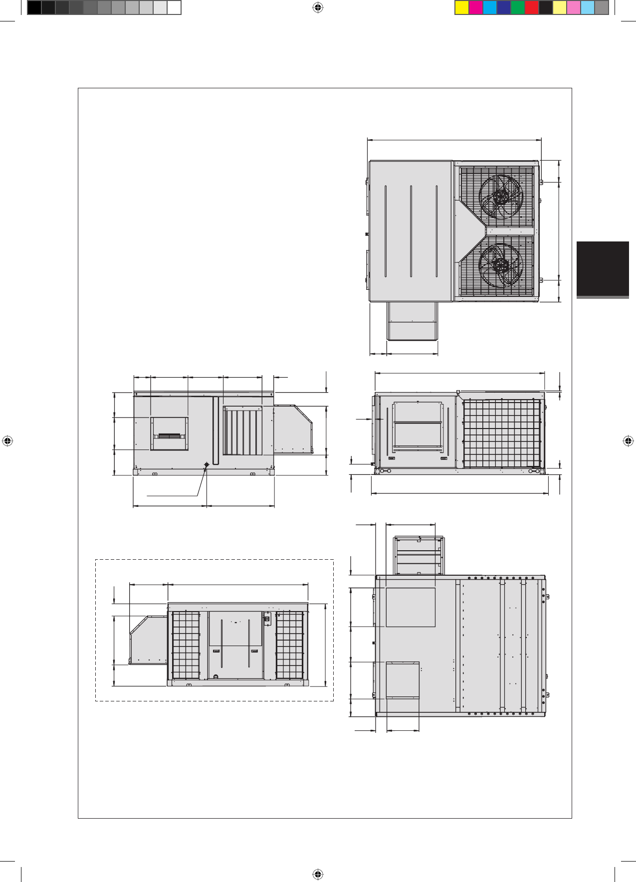
Alle afmetingen zijn in mm
AFTAPLEIDING Ø 1"
TOEVOERLUCHT
VOOR HORIZONTALE UITSTOOT
VOOR VERTICALE UITSTOOT
2739
342
1547
342
806
269
2670
2789
23
99
48
168
210
187
610
558
1161
1069
2209
1302
607
187
771
344
586
268
387
509
405
770
322
RETOURLUCHT
LUCHT BUITENSHUIS
LUCHT BUITENSHUIS
770
172
201
610
560
581
281
179
509
REGELKAST
Model: UATYQ600 MET MOGELIJKHEID VAN ZUINIG WERKEN
Achteraanzicht van de eenheid:
VERTICALE
RETOURLUCHT
VERTICALE
TOEVOER-
LUCHT
4 IM 5RTBR-0710(2)-NL.indd 9
4 IM 5RTBR-0710(2)-NL.indd 9
1/12/11 8:35:41 AM
1/12/11 8:35:41 AM












