Кондиционеры Daikin UATYQ-CY1 - инструкция пользователя по применению, эксплуатации и установке на русском языке. Мы надеемся, она поможет вам решить возникшие у вас вопросы при эксплуатации техники.
Если остались вопросы, задайте их в комментариях после инструкции.
"Загружаем инструкцию", означает, что нужно подождать пока файл загрузится и можно будет его читать онлайн. Некоторые инструкции очень большие и время их появления зависит от вашей скорости интернета.

4
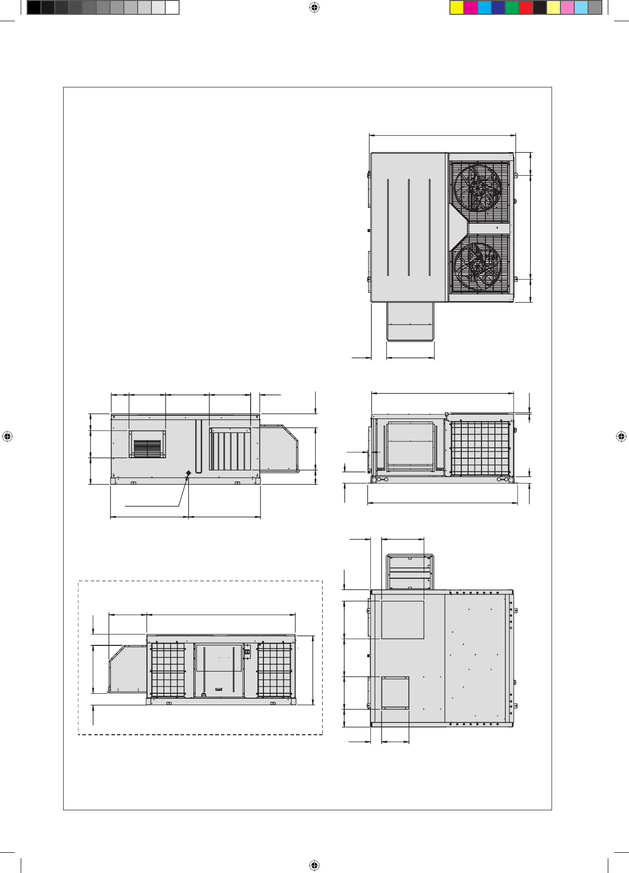
TAHLİYE BORUSU
ø
1"
HAVA BESLEMES
Modeller: EKONOMİZÖRLÜ UATYQ350
Tüm boyutlar mm olarak verilmiştir
YATAY BOŞALTMA İÇİN
DİKEY BOŞALTMA İÇİN
2180
342
1546
342
709
223
2113
2230
22
99
58
168
207
136
614
651
1161
1069
2209
1028
562
166
710
175
544
265
250
405
395
630
213
HAVA GERİ DÖNÜŞÜ
DIŞ MEKAN HAVASI
DIŞ MEKAN HAVASI
630
164
187
614
DİKEY HAVA GERİ
DÖNÜŞÜ
DİKEY HAVA
BESLEMESİ
613
538
280
164
407
KONTROL
KUTUSU
Ünitenin arkadan görünümü:
11 IM 5RTBR-0710(2)-TR.indd 4
11 IM 5RTBR-0710(2)-TR.indd 4
1/12/11 9:58:31 AM
1/12/11 9:58:31 AM












