Кондиционеры Daikin UATYQ-CY1 - инструкция пользователя по применению, эксплуатации и установке на русском языке. Мы надеемся, она поможет вам решить возникшие у вас вопросы при эксплуатации техники.
Если остались вопросы, задайте их в комментариях после инструкции.
"Загружаем инструкцию", означает, что нужно подождать пока файл загрузится и можно будет его читать онлайн. Некоторые инструкции очень большие и время их появления зависит от вашей скорости интернета.

9
TÜRK
ÇE
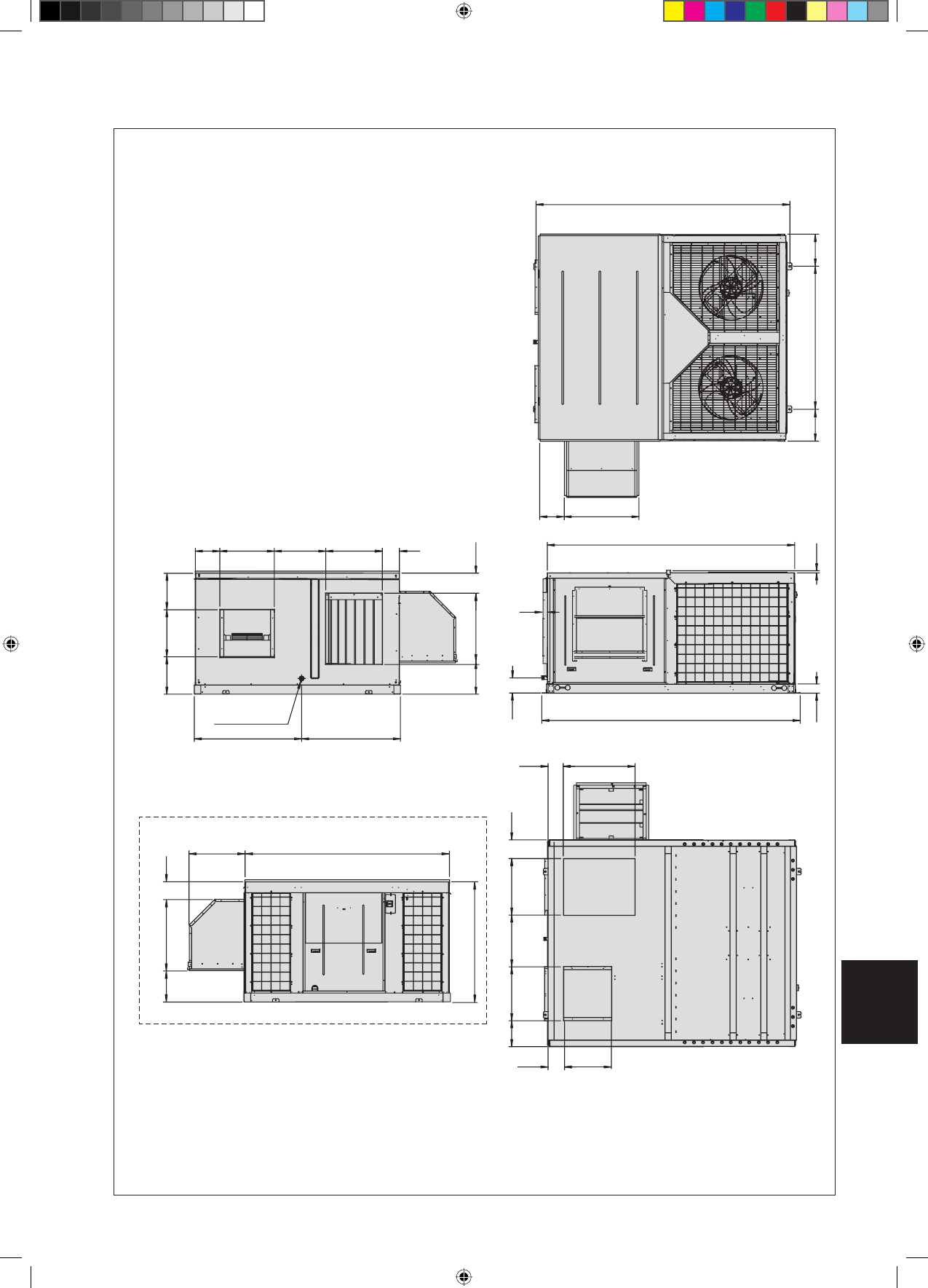
TAHLİYE BORUSU
ø
1"
HAVA BESLEMES
Tüm boyutlar mm olarak verilmiştir
YATAY BOŞALTMA İÇİN
DİKEY BOŞALTMA İÇİN
2739
342
1547
342
806
269
2670
2789
23
99
48
168
210
187
610
558
1161
1069
2209
1302
607
187
771
344
586
268
387
509
405
770
322
HAVA GERİ DÖNÜŞÜ
DIŞ MEKAN HAVASI
DIŞ MEKAN HAVASI
770
172
201
610
560
581
281
179
509
KONTROL
KUTUSU
Modeller: EKONOMİZÖRLÜ UATYQ600
Ünitenin arkadan görünümü:
DİKEY HAVA GERİ
DÖNÜŞÜ
DİKEY HAVA
BESLEMESİ
11 IM 5RTBR-0710(2)-TR.indd 9
11 IM 5RTBR-0710(2)-TR.indd 9
1/12/11 9:58:49 AM
1/12/11 9:58:49 AM












