Кондиционеры Daikin UATYQ-CY1 - инструкция пользователя по применению, эксплуатации и установке на русском языке. Мы надеемся, она поможет вам решить возникшие у вас вопросы при эксплуатации техники.
Если остались вопросы, задайте их в комментариях после инструкции.
"Загружаем инструкцию", означает, что нужно подождать пока файл загрузится и можно будет его читать онлайн. Некоторые инструкции очень большие и время их появления зависит от вашей скорости интернета.

3
TÜRK
ÇE
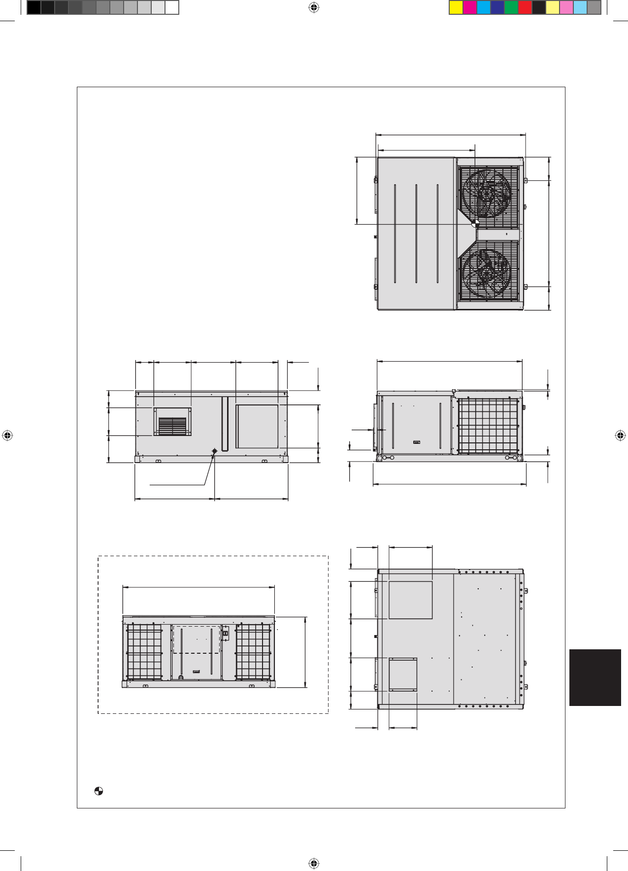
Modeller: UATYQ350
Tüm boyutlar mm olarak verilmiştir
AĞIRLIK MERKEZİ
TAHLİYE BORUSU
ø
1"
HAVA GERİ
DÖNÜŞÜ
DİKEY
HAVA GERİ
DÖNÜŞÜ
342
342
1546
22
99
2113
2230
58
207
213
630
265
544
651
614
136
250
395
405
1161
1070
164
630
187
614
613
538
280
407
164
DİKEY HAVA
BESLEMESİ
2180
168
1000
1410
HAVA BESLEMES
Ünitenin arkadan görünümü:
2209
1028
KONTROL
KUTUSU
YATAY BOŞALTMA İÇİN
DİKEY BOŞALTMA İÇİN
11 IM 5RTBR-0710(2)-TR.indd 3
11 IM 5RTBR-0710(2)-TR.indd 3
1/12/11 9:58:27 AM
1/12/11 9:58:27 AM












