Кондиционеры Daikin UATYQ-CY1 - инструкция пользователя по применению, эксплуатации и установке на русском языке. Мы надеемся, она поможет вам решить возникшие у вас вопросы при эксплуатации техники.
Если остались вопросы, задайте их в комментариях после инструкции.
"Загружаем инструкцию", означает, что нужно подождать пока файл загрузится и можно будет его читать онлайн. Некоторые инструкции очень большие и время их появления зависит от вашей скорости интернета.

21
11
10
2
1
9
5
6
8
7
7
4
3
11
10
2
1
9
5
6
8
7
7
4
4
3
11
1
9
5
6
8
7
7
4
4
2
10
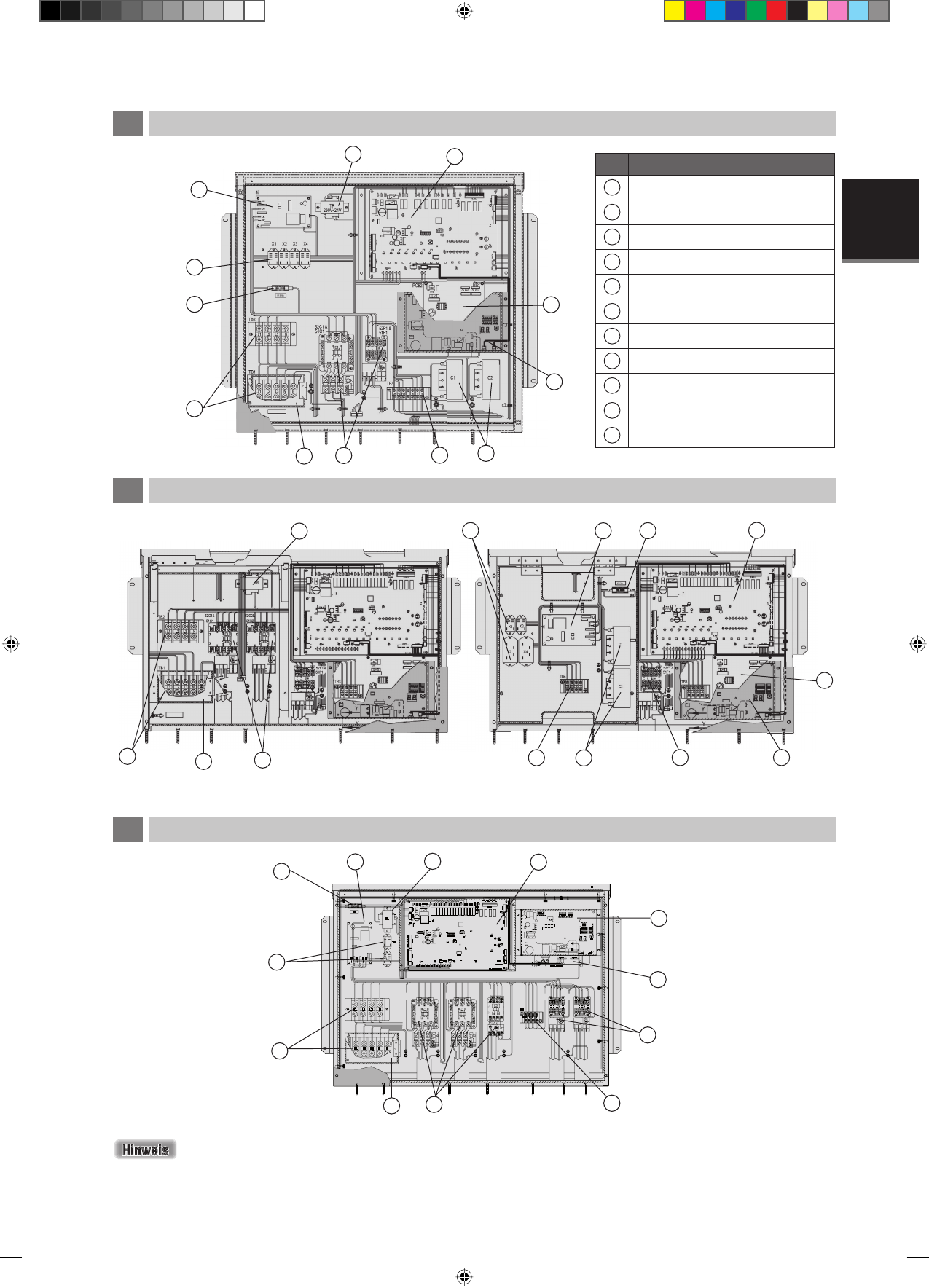
DEUTSCH
Die Anordnung der Klemmblöcke und Komponenteen für den Kontroller sind unten aufgeführt:
(Bodenschicht) (Oberschicht)
Nr
Beschreibung der Bestandteile
1
Controller Mainboard
2
EXV Controller Board
3
Kondensator
4
Schaltschütz
5
Phasenschutz
6
Relais
7
Klemmblock
8
Sicherung
9
Transformator
10
Abdeckung der Klemmenleiste
11
Steuerungseinheit des Economisers
A
Steuermodul UATYQ250
C
Steuermodul UATYQ600/700
B
Steuermodul UATYQ350/450/550
Teile-Nr. 11 (Schalttafel des Wärmetauschers) ist im Zusammenhang mit dem Economizer-Set zu verwenden, das
separat als Zubehör angeboten wird.
2 IM 5RTBR-0710(2)-DE.indd 21
2 IM 5RTBR-0710(2)-DE.indd 21
1/10/11 3:50:29 PM
1/10/11 3:50:29 PM












