Кондиционеры Daikin UATYQ-CY1 - инструкция пользователя по применению, эксплуатации и установке на русском языке. Мы надеемся, она поможет вам решить возникшие у вас вопросы при эксплуатации техники.
Если остались вопросы, задайте их в комментариях после инструкции.
"Загружаем инструкцию", означает, что нужно подождать пока файл загрузится и можно будет его читать онлайн. Некоторые инструкции очень большие и время их появления зависит от вашей скорости интернета.

21
11
10
2
1
9
5
6
8
7
7
4
3
11
10
2
1
9
5
6
8
7
7
4
4
3
11
1
9
5
6
8
7
7
4
4
2
10
IT
ALIANO
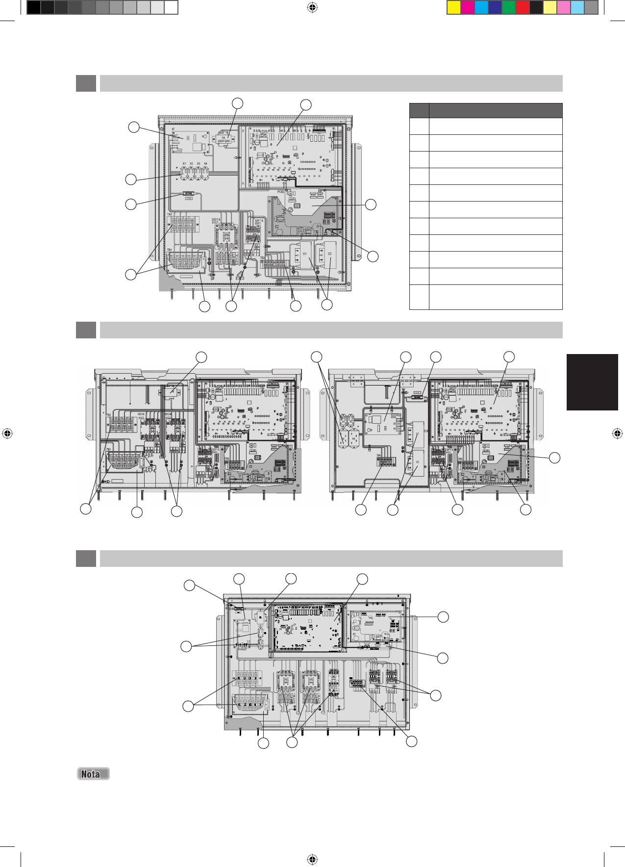
La disposizione dei blocchi terminali e dei componenti del telecomando è mostrata di seguito:
(Strato inferiore)
(Strato superiore)
N.
Descrizione parte
1
Scheda principale di controllo
2
Scheda di controllo EXV
3
Condensatore
4
Contattore
5
Protezione Di Fase
6
Relè
7
Blocco Terminale
8
Fusibile
9
Trasformatore
10
Coperchio del Blocco Terminale
11
Scheda di controllo
Economizzatore
A
Modulo di controllo UATYQ250
C
Modulo di controllo UATYQ600/700
B
Modulo di controllo UATYQ350/450/550
Articolo 11 (Scheda di controllo economizzatore) da usare assieme al kit economizzatore fornito separatamente
come accessorio.
6 IM 5RTBR-0710(2)-IT.indd 21
6 IM 5RTBR-0710(2)-IT.indd 21
1/12/11 8:40:36 AM
1/12/11 8:40:36 AM












