Кондиционеры Daikin UATYQ-CY1 - инструкция пользователя по применению, эксплуатации и установке на русском языке. Мы надеемся, она поможет вам решить возникшие у вас вопросы при эксплуатации техники.
Если остались вопросы, задайте их в комментариях после инструкции.
"Загружаем инструкцию", означает, что нужно подождать пока файл загрузится и можно будет его читать онлайн. Некоторые инструкции очень большие и время их появления зависит от вашей скорости интернета.

5
SVENSKA
342
2180
1546
342
22
2113
99
58
168
2230
630
164
407
164
187
614
613
538
280
2209
1130
265
544
651
614
136
235
630
264
1161
1069
328
405
395
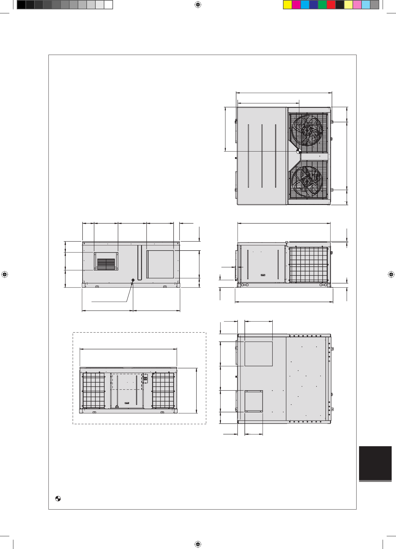
Enheten bakifrån:
1385
1000
Modell: UATYQ450
TYNGDMITTPUNKT
FÖR HORISONTELLT UTSLÄPP
FÖR VERTIKALT UTSLÄPP
DRÄNERINGSRÖR Ø 1"
LUFTTILLFÖRSEL
RETURLUFT
VERTIKAL
RETURLUFT
VERTIKAL
LUFTTILL-
FÖRSEL
STYRLÅDA
Alla mått är i mm
12 IM 5RTBR-0710(2)-SE.indd 5
12 IM 5RTBR-0710(2)-SE.indd 5
1/12/11 10:05:27 AM
1/12/11 10:05:27 AM












