Кондиционеры Daikin UATYQ-CY1 - инструкция пользователя по применению, эксплуатации и установке на русском языке. Мы надеемся, она поможет вам решить возникшие у вас вопросы при эксплуатации техники.
Если остались вопросы, задайте их в комментариях после инструкции.
"Загружаем инструкцию", означает, что нужно подождать пока файл загрузится и можно будет его читать онлайн. Некоторые инструкции очень большие и время их появления зависит от вашей скорости интернета.

5
Р
У
ССКИЙ
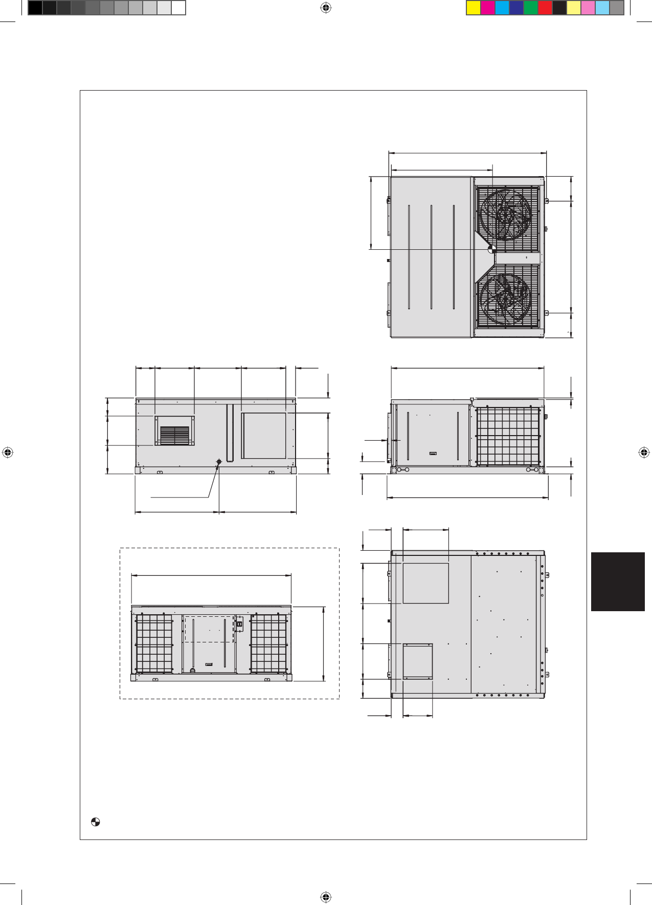
342
2180
1546
342
22
2113
99
58
168
2230
630
164
ВЕРТИКАЛЬНЫЙ
ВОЗВРАТ
ВОЗДУХА
ВЕРТИКАЛЬНАЯ
ПОДАЧА
ВОЗДУХА
407
164
187
614
613
538
280
2209
1130
265
544
651
614
136
ДРЕНАЖНЫЙ ШЛАНГ
ø
1"
235
630
264
1161
1069
328
405
395
БЛОК
УПРАВЛЕНИЯ
ПОДАВАЕМЫЙ ВОЗДУХ
ВОЗВРАТНЫЙ
ВОЗДУХ
Вид блока сзади:
1385
1000
Модель: UATYQ450
Все размеры указаны в мм
ЦЕНТР ТЯЖЕСТИ
ДЛЯ ГОРИЗОНТАЛЬНОГО ВЫПУСКА
ДЛЯ ВЕРТИКАЛЬНОГО ВЫПУСКА
9 IM 5RTBR-0710(2)_RU.indd 5
9 IM 5RTBR-0710(2)_RU.indd 5
1/12/11 9:28:37 AM
1/12/11 9:28:37 AM












