Кондиционеры Daikin UATYQ-CY1 - инструкция пользователя по применению, эксплуатации и установке на русском языке. Мы надеемся, она поможет вам решить возникшие у вас вопросы при эксплуатации техники.
Если остались вопросы, задайте их в комментариях после инструкции.
"Загружаем инструкцию", означает, что нужно подождать пока файл загрузится и можно будет его читать онлайн. Некоторые инструкции очень большие и время их появления зависит от вашей скорости интернета.

5
TÜRK
ÇE
342
2180
1546
342
22
2113
99
58
168
2230
630
164
DİKEY
HAVA GERİ
DÖNÜŞÜ
DİKEY HAVA
BESLEMESİ
407
164
187
614
613
538
280
2209
1130
265
544
651
614
136
TAHLİYE BORUSU
ø
1"
235
630
264
1161
1069
328
405
395
KONTROL
KUTUSU
HAVA BESLEMES
HAVA GERİ
DÖNÜŞÜ
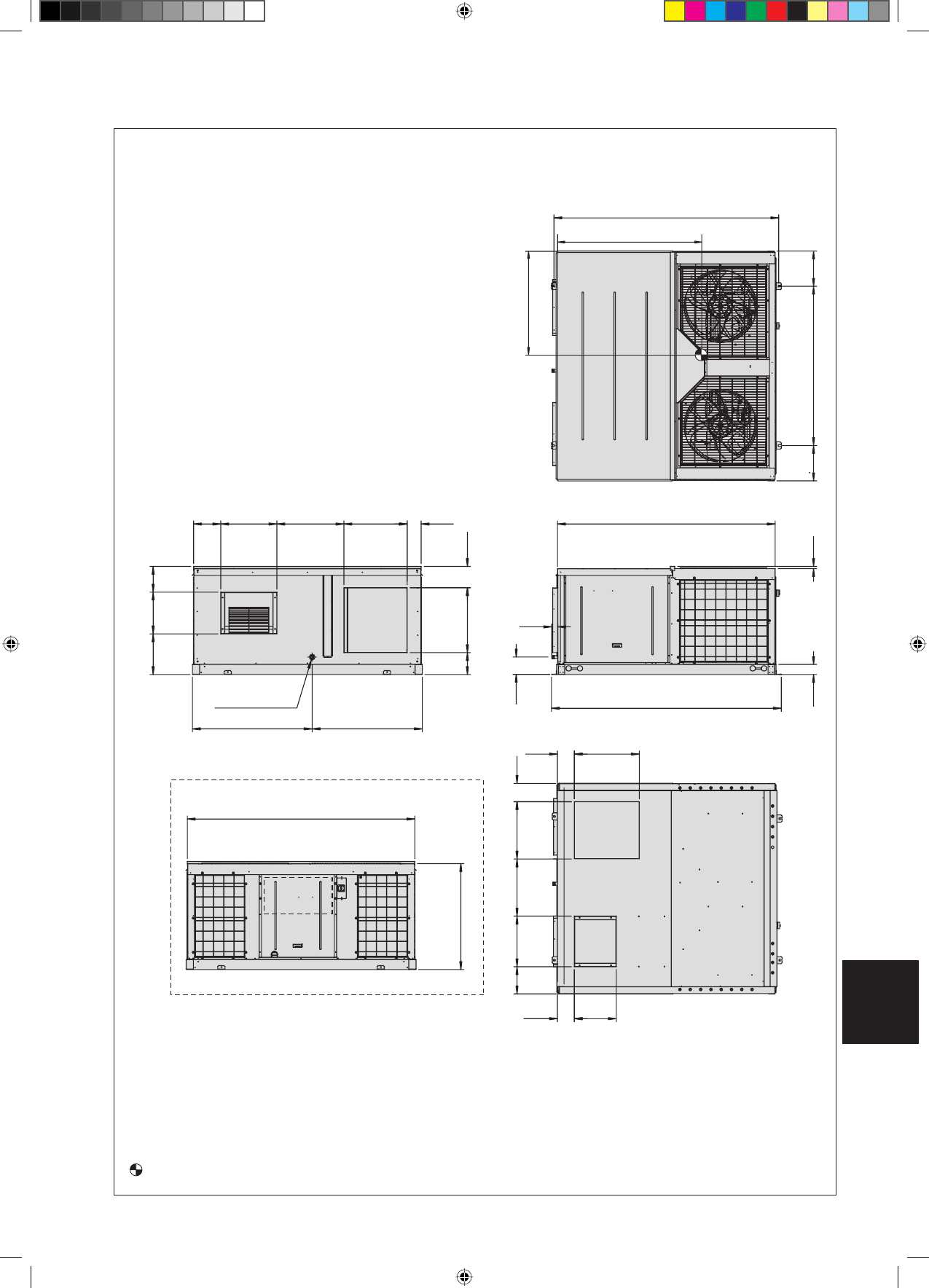
Ünitenin arkadan görünümü:
1385
1000
Modeller: UATYQ450
Tüm boyutlar mm olarak verilmiştir
AĞIRLIK MERKEZİ
YATAY BOŞALTMA İÇİN
DİKEY BOŞALTMA İÇİN
11 IM 5RTBR-0710(2)-TR.indd 5
11 IM 5RTBR-0710(2)-TR.indd 5
1/12/11 9:58:35 AM
1/12/11 9:58:35 AM












