Кондиционеры Daikin UATYQ-CY1 - инструкция пользователя по применению, эксплуатации и установке на русском языке. Мы надеемся, она поможет вам решить возникшие у вас вопросы при эксплуатации техники.
Если остались вопросы, задайте их в комментариях после инструкции.
"Загружаем инструкцию", означает, что нужно подождать пока файл загрузится и можно будет его читать онлайн. Некоторые инструкции очень большие и время их появления зависит от вашей скорости интернета.

5
NEDERLANDS
342
2180
1546
342
22
2113
99
58
168
2230
630
164
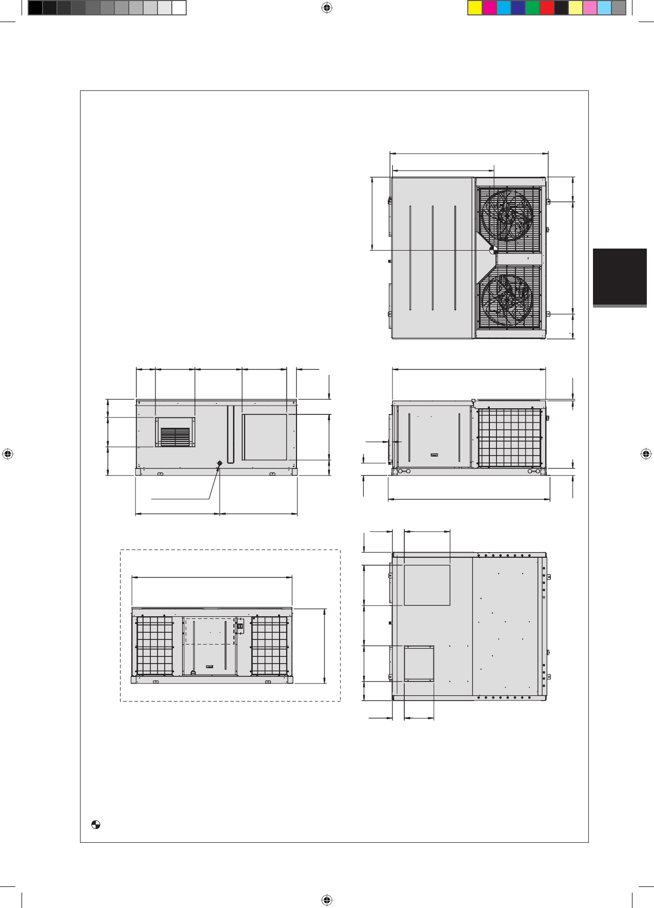
VERTICALE
RETOURLUCHT
407
164
187
614
613
538
280
2209
1130
265
544
651
614
136
AFTAPLEIDING Ø 1"
235
630
264
1161
1069
328
405
395
REGELKAST
TOEVOERLUCHT
RETOURLUCHT
Achteraanzicht van de eenheid:
1385
1000
Model: UATYQ450
Alle afmetingen zijn in mm
ZWAARTEPUNT
VOOR HORIZONTALE UITSTOOT
VOOR VERTICALE UITSTOOT
VERTICALE
TOEVOER-
LUCHT
4 IM 5RTBR-0710(2)-NL.indd 5
4 IM 5RTBR-0710(2)-NL.indd 5
1/12/11 8:35:29 AM
1/12/11 8:35:29 AM












