Кондиционеры Daikin UATYQ-CY1 - инструкция пользователя по применению, эксплуатации и установке на русском языке. Мы надеемся, она поможет вам решить возникшие у вас вопросы при эксплуатации техники.
Если остались вопросы, задайте их в комментариях после инструкции.
"Загружаем инструкцию", означает, что нужно подождать пока файл загрузится и можно будет его читать онлайн. Некоторые инструкции очень большие и время их появления зависит от вашей скорости интернета.

11
13
12
10
11
14
15
16
17
4
3
3
2
9
8
1
5
7
6
7
POLSKI
Model: UATYQ 250
,
350
,
450
,
550
,
600 & 700
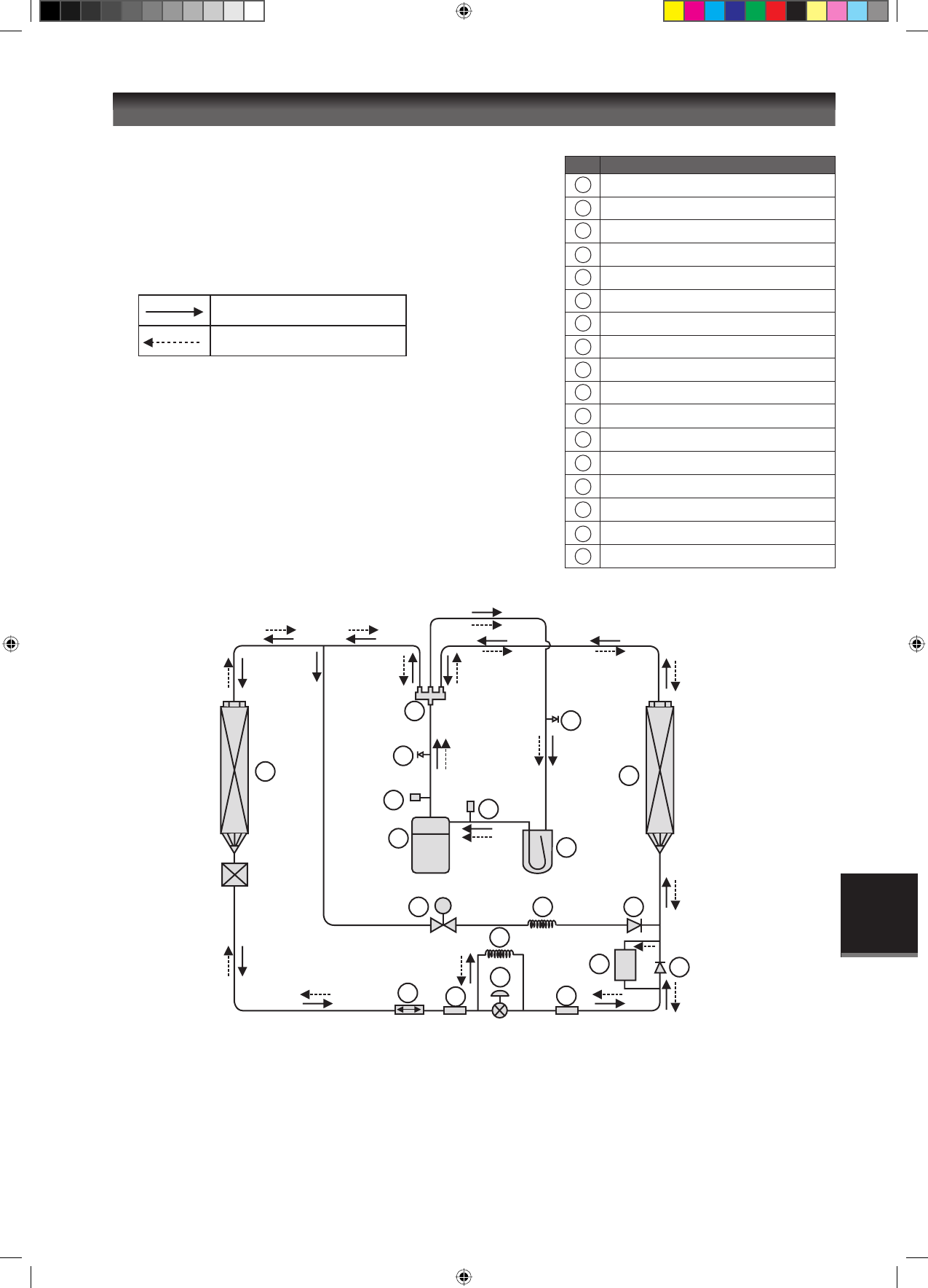
Proces chłodzenia
Proces nagrzewania
Nr
Opis elementów
1
Sprężarka
2
Przełącznik wysokiego ciśnienia
3
Zawór dostępowy
4
Zawór 4-drożny
5
Osuszacz fi ltr
6
Elektroniczny zawór rozprężny
7
Sitko
8
Akumulator
9
Przełącznik niskiego ciśnienia
10
Zawór elektromagnetyczny
11
Rurka kapilarna obejściowa
12
Wewnętrzny wymiennik ciepła
13
Zewnętrzny wymiennik ciepła
14
Zawór kontrolny 1
15
Zawór kontrolny 2
16
Sprężarka
17
Rurka kapilarna
SCHEMAT OBIEGU CZYNNIKA CHŁODNICZEGO
Uwaga:
(a) Model UATYQ350
,
450
,
550
,
600 & 700 zawiera 2 obwody w systemie.
(b) Pozycje nr 15 i 16 mają zastosowanie tylko dla modelu UATYQ350.
(c) Pozycje nr 17 mają zastosowanie tylko dla modelu UATYQ700.
10 IM 5RTBR-0710(2)-PL.indd 11
10 IM 5RTBR-0710(2)-PL.indd 11
1/12/11 9:53:49 AM
1/12/11 9:53:49 AM












