Кондиционеры Daikin UATYQ-CY1 - инструкция пользователя по применению, эксплуатации и установке на русском языке. Мы надеемся, она поможет вам решить возникшие у вас вопросы при эксплуатации техники.
Если остались вопросы, задайте их в комментариях после инструкции.
"Загружаем инструкцию", означает, что нужно подождать пока файл загрузится и можно будет его читать онлайн. Некоторые инструкции очень большие и время их появления зависит от вашей скорости интернета.

5
DEUTSCH
342
2180
1546
342
22
2113
99
58
168
2230
630
164
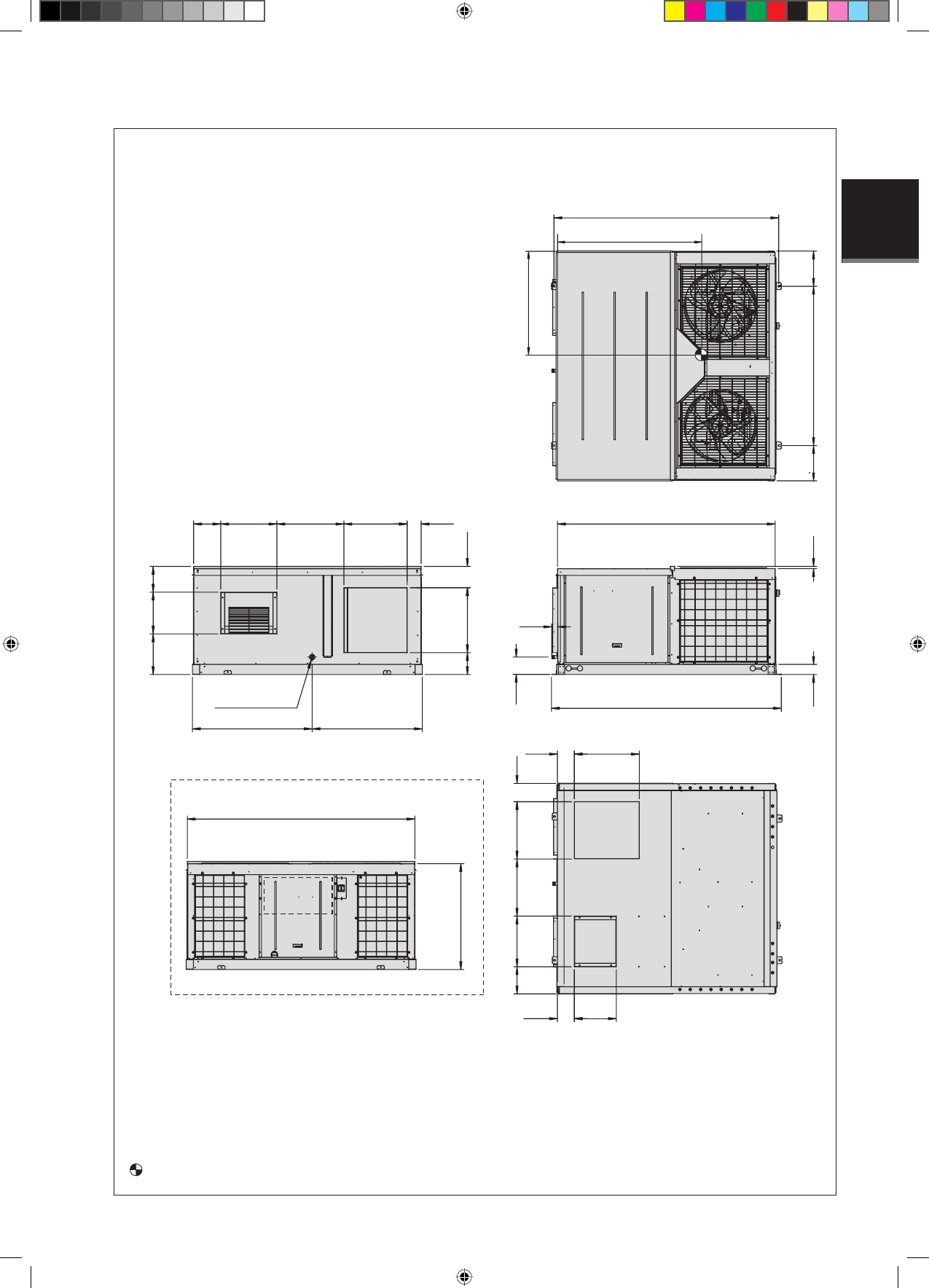
VERTIKALE
RÜCKLUFT
VERTIKALE
LUFTVER-
SORGUNG
407
164
187
614
613
538
280
2209
1130
265
544
651
614
136
ABFLUSSROHR Ø 1"
235
630
264
1161
1069
328
405
395
STEUER-
KASTEN
ZULUFT
RÜCKLUFT
Rückansicht des Geräts:
1385
1000
Modell: UATYQ450
Alle Dimensionen sind in mm
SCHWERPUNKT
FÜR HORIZONTALENTLADUNG
FÜR VERTIKALENTLADUNG
2 IM 5RTBR-0710(2)-DE.indd 5
2 IM 5RTBR-0710(2)-DE.indd 5
1/10/11 3:48:47 PM
1/10/11 3:48:47 PM












