Кондиционеры Daikin UATYQ-CY1 - инструкция пользователя по применению, эксплуатации и установке на русском языке. Мы надеемся, она поможет вам решить возникшие у вас вопросы при эксплуатации техники.
Если остались вопросы, задайте их в комментариях после инструкции.
"Загружаем инструкцию", означает, что нужно подождать пока файл загрузится и можно будет его читать онлайн. Некоторые инструкции очень большие и время их появления зависит от вашей скорости интернета.

14
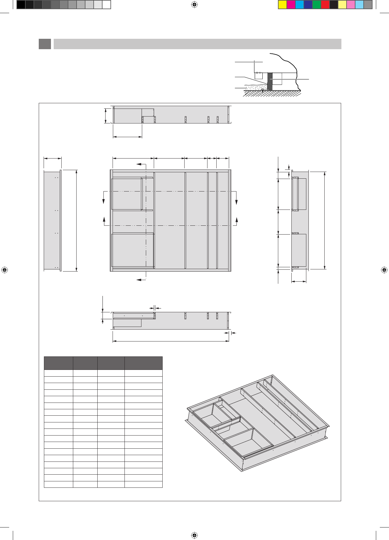
Bilden visar hur du använder tak anordningen för
monteringen av dessa enheter på ovansidan av tak.
Anordningen bör vara förseglad och fäst mot taket
med tätningslist. Ett föreslaget sätt att försegla mellan
enheten och takanordningen visas till höger.
Rekommenderade takanordningsmått visas nedan.
l
l
l
Takklädsel
Försegla med tjära
Takanord-
ning
Enhet
C
Enhetsstöd (För nedsänkt enhet endast)
Q
DEL X-X
41,5
C
X
Z
B
M
DEL Y-Y
DEL Z-Z
O
25
52
N
Obs:
Alla mått är i mm
Modell
(UATYQ)
250
350/450
550/600/700
A
355
355
355
B
1506
2081
2081
C
840
700
840
D
315
410
625
E
315
410
462
F
0
0
190
G
314
287
248
H
0
131
131
I
607
600
646
J
322
544
495
K
540
682
676
L
0
42
51
M
300
300
300
N
141
141
141
O
1784
1807
2365
P
300
300
300
Q
481
477
590
R
1469
1998
1998
P
H
Y
A
D
E
F
G
X
Z
I
K
L
R
J
Y
12 IM 5RTBR-0710(3)DK(denv)-SE.i14 14
12 IM 5RTBR-0710(3)DK(denv)-SE.i14 14
4/10/12 3:11:13 PM
4/10/12 3:11:13 PM












