Кондиционеры Daikin UATYQ-CY1 - инструкция пользователя по применению, эксплуатации и установке на русском языке. Мы надеемся, она поможет вам решить возникшие у вас вопросы при эксплуатации техники.
Если остались вопросы, задайте их в комментариях после инструкции.
"Загружаем инструкцию", означает, что нужно подождать пока файл загрузится и можно будет его читать онлайн. Некоторые инструкции очень большие и время их появления зависит от вашей скорости интернета.

14
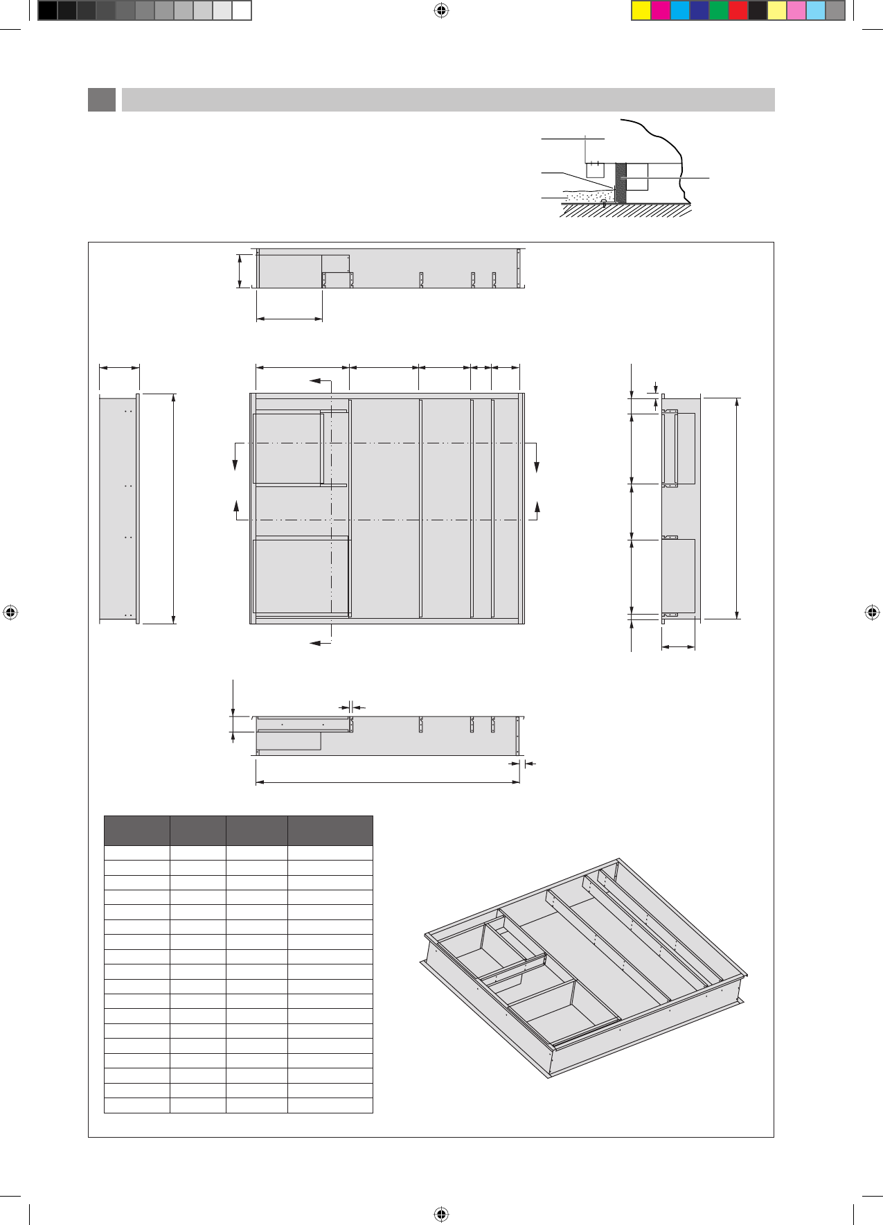
Το σχήμα δείχνει τη χρήση κράσπεδου στέγης για τη
συναρμολόγηση αυτών των μονάδων.
Το κράσπεδο θα πρέπει να στεγανοποιείται και
να στερεώνεται στη στέγη με ανθεκτικό στις
καιρικές συνθήκες υλικό. Στα δεξιά φαίνεται ένας
προτεινόμενος τρόπος στεγανοποίησης της μονάδας
και του κράσπεδου στέγης.
Οι συνιστώμενες διαστάσεις του κράσπεδου στέγης
φαίνονται πιο κάτω.
l
l
l
Σημειωση:
Όλες οι διαστάσεις είναι σε mm
C
Στήριξη της μονάδας (Μόνο για μονάδα "down throw")
Μοντέλο
(UATYQ)
250
350/450
550/600/700
A
355
355
355
B
1506
2081
2081
C
840
700
840
D
315
410
625
E
315
410
462
F
0
0
190
G
314
287
248
H
0
131
131
I
607
600
646
J
322
544
495
K
540
682
676
L
0
42
51
M
300
300
300
N
141
141
141
O
1784
1807
2365
P
300
300
300
Q
481
477
590
R
1469
1998
1998
Επιφανειακό
στρώμα στέγης
Στεγανοποίηση
με πίσσα
Κράσπεδο
στέγης
Μονάδα
Q
ΤΟΜΉ X-X
41
,
5
C
X
Z
B
M
ΤΟΜΉ Y-Y
ΤΟΜΉ Z-Z
O
25
52
N
P
H
Y
A
D
E
F
G
X
Z
I
K
L
R
J
Y
7 IM 5RTBR-0710(3)DK(denv)-GR.in14 14
7 IM 5RTBR-0710(3)DK(denv)-GR.in14 14
4/10/12 3:04:28 PM
4/10/12 3:04:28 PM












