Кондиционеры Daikin UATYQ-CY1 - инструкция пользователя по применению, эксплуатации и установке на русском языке. Мы надеемся, она поможет вам решить возникшие у вас вопросы при эксплуатации техники.
Если остались вопросы, задайте их в комментариях после инструкции.
"Загружаем инструкцию", означает, что нужно подождать пока файл загрузится и можно будет его читать онлайн. Некоторые инструкции очень большие и время их появления зависит от вашей скорости интернета.

8
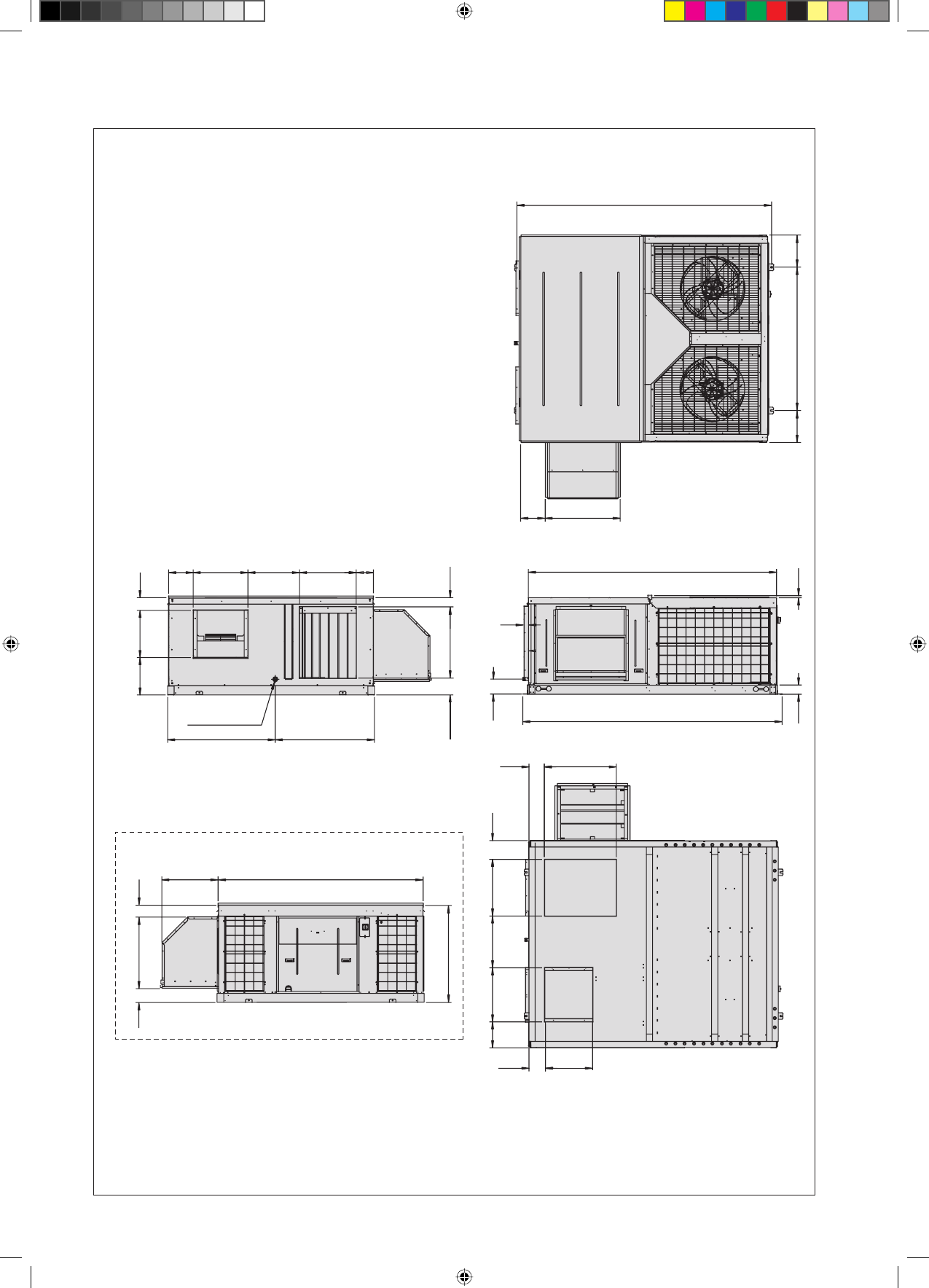
CONDOTTO DI SCARICO
ø
1"
ALIMENTAZIONE
Tutte le dimensioni sono in mm
PER LO SCARICO ORIZZONTALE
PER LO SCARICO VERTICALE
2739
342
1547
342
806
269
2670
2789
23
99
48
168
96
187
610
558
1161
1069
2209
1048
607
128
771
149
586
268
134
509
405
770
182
ARIA DI RECUPERO
ARIA ESTERNA
ARIA ESTERNA
770
172
201
610
560
581
281
179
509
SCATOLA DI
CONTROLLO
Modello: UATYQ550 CON OPZIONE DELL
’
ECONOMIZZATORE
Panoramica dal lato posteriore dell
’
unità:
ARIA DI
RECUPERO
VERTICALE
ARIA DI
ALIMENTAZIONE
VERTICALE
6 IM 5RTBR-0710(2)-IT.indd 8
6 IM 5RTBR-0710(2)-IT.indd 8
1/12/11 8:40:16 AM
1/12/11 8:40:16 AM












