Кондиционеры Daikin UATYQ-CY1 - инструкция пользователя по применению, эксплуатации и установке на русском языке. Мы надеемся, она поможет вам решить возникшие у вас вопросы при эксплуатации техники.
Если остались вопросы, задайте их в комментариях после инструкции.
"Загружаем инструкцию", означает, что нужно подождать пока файл загрузится и можно будет его читать онлайн. Некоторые инструкции очень большие и время их появления зависит от вашей скорости интернета.

5
Ε
Λ
ΛΗΝΙΚΆ
342
2180
1546
342
22
2113
99
58
168
2230
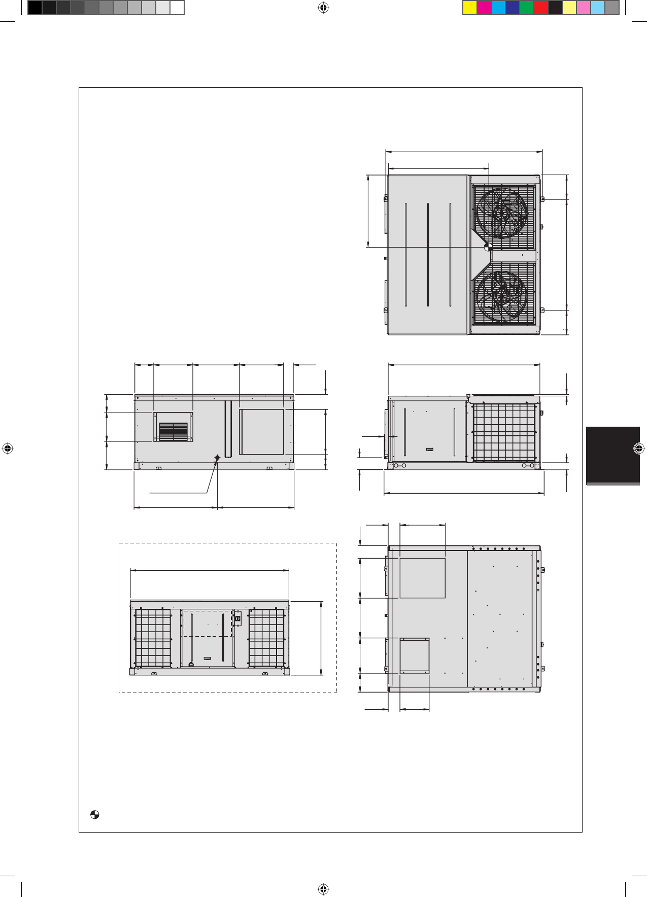
ΑΕΡΑΣ
ΕΠΙΣΤΡΟΦΗΣ
ΚΑΤΑΚΟΡΥΦΑ
ΑΕΡΑΣ
ΠΑΡΟΧΗΣ
ΚΑΤΑΚΟΡΥΦΑ
2209
1130
265
544
651
614
136
ΣΩΛΗΝΑΣ
ΑΠΟΣΤΡΑΓΓΙΣΗΣ ø 1
"
235
630
264
1161
1069
328
405
395
ΚΙΒΩΤΙΟ
ΕΛΕΓΧΟΥ
ΑΕΡΑΣ ΠΑΡΟΧΗΣ
ΑΕΡΑΣ
ΕΠΙΣΤΡΟΦΗΣ
Πίσω όψη μονάδας:
1385
1000
Μοντέλο: UATYQ450
Όλες οι διαστάσεις είναι σε mm
ΚΕΝΤΡΟ ΒΑΡΟΥΣ
ΓΙΑ ΟΡΙΖΟΝΤΙΑ ΚΑΤΑΘΛΙΨΗ
ΜΕ ΚΑΤΑΚΟΡΥΦΗ ΕΞΑΓΩΓΗ
630
164
407
164
187
614
613
538
280
7 IM 5RTBR-0710(2)-GR.indd 5
7 IM 5RTBR-0710(2)-GR.indd 5
1/12/11 8:57:45 AM
1/12/11 8:57:45 AM












