Кондиционеры Daikin UATYQ-CY1 - инструкция пользователя по применению, эксплуатации и установке на русском языке. Мы надеемся, она поможет вам решить возникшие у вас вопросы при эксплуатации техники.
Если остались вопросы, задайте их в комментариях после инструкции.
"Загружаем инструкцию", означает, что нужно подождать пока файл загрузится и можно будет его читать онлайн. Некоторые инструкции очень большие и время их появления зависит от вашей скорости интернета.

6
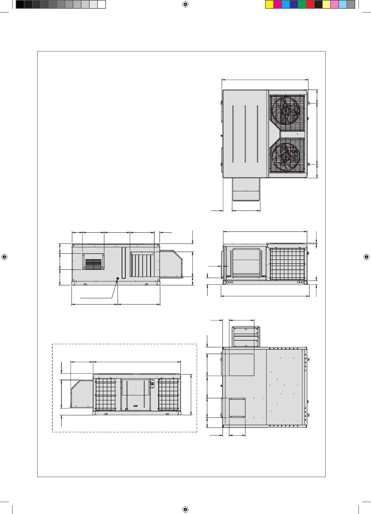
Alle afmetingen zijn in mm
AFTAPLEIDING Ø 1"
TOEVOERLUCHT
VOOR HORIZONTALE UITSTOOT
VOOR VERTICALE UITSTOOT
2180
342
1546
342
709
223
2113
2230
22
99
58
168
235
136
614
651
1161
1069
2209
1130
562
207
710
237
544
265
328
405
395
630
264
RETOURLUCHT
LUCHT BUITENSHUIS
LUCHT BUITENSHUIS
630
164
187
614
VERTICALE
RETOURLUCHT
613
538
280
164
407
REGELKAST
Model: UATYQ450 MET MOGELIJKHEID VAN ZUINIG WERKEN
Achteraanzicht van de unit:
VERTICALE
TOEVOER-
LUCHT
4 IM 5RTBR-0710(2)-NL.indd 6
4 IM 5RTBR-0710(2)-NL.indd 6
1/12/11 8:35:32 AM
1/12/11 8:35:32 AM












