Кондиционеры Daikin UATYQ-CY1 - инструкция пользователя по применению, эксплуатации и установке на русском языке. Мы надеемся, она поможет вам решить возникшие у вас вопросы при эксплуатации техники.
Если остались вопросы, задайте их в комментариях после инструкции.
"Загружаем инструкцию", означает, что нужно подождать пока файл загрузится и можно будет его читать онлайн. Некоторые инструкции очень большие и время их появления зависит от вашей скорости интернета.

14
Y
Q
SECTIE X-X
41,5
C
X
Z
B
M
SECTIE Y-Y
SECTIE Z-Z
O
25
52
N
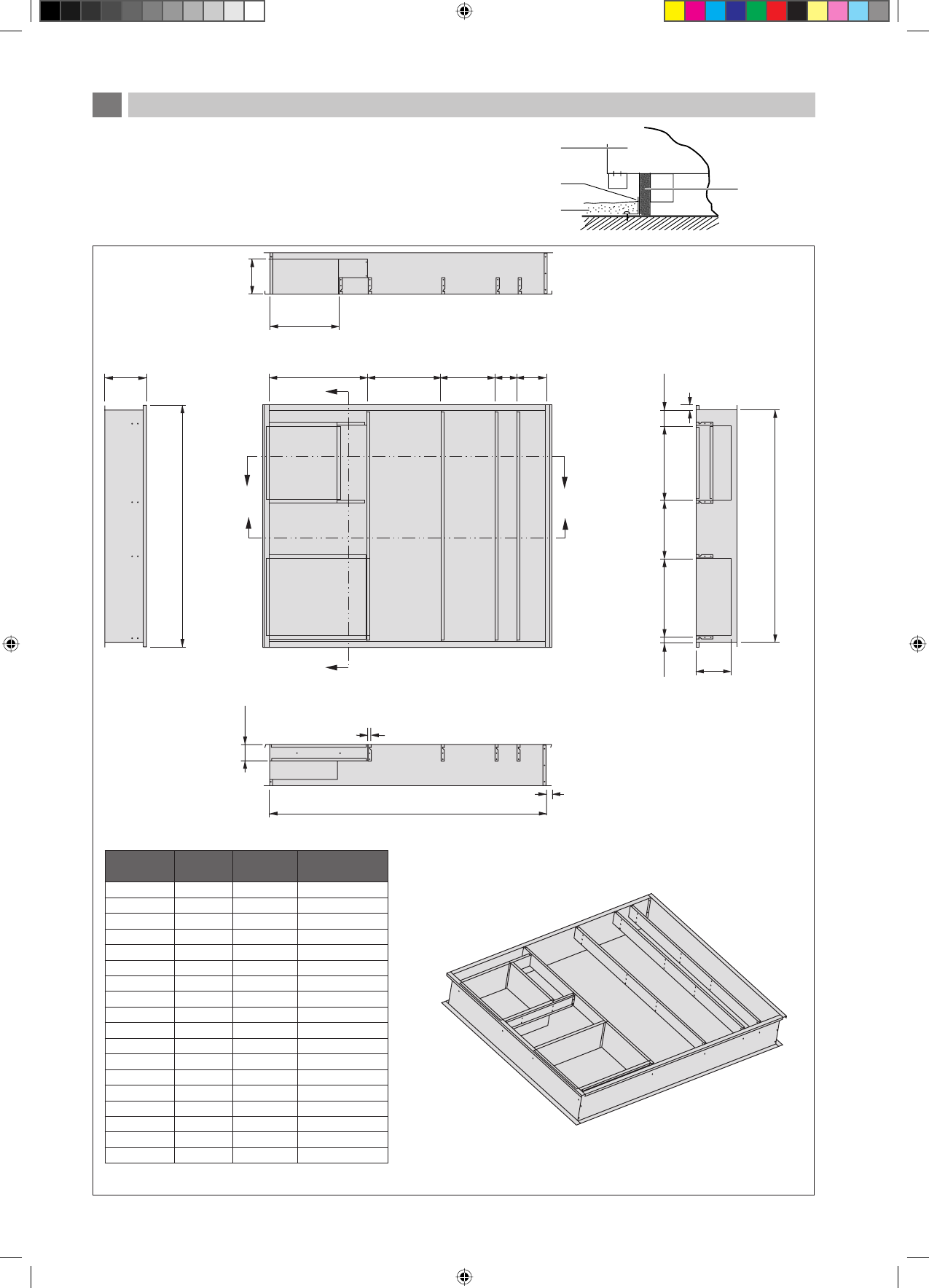
De afbeelding toont het gebruik van de dakrand voor het
monteren van deze units.
De rand moet worden gekit en aan het dak worden
bevestigd met behulp van weersbestendig materiaal. Een
voorstel voor het afdichten van de unit en dakrand wordt
rechts getoond.
Aanbevolen afmeting voor dakrand wordt hieronder
getoond.
l
l
l
Dakvlak
Afdichten met
bitumen
Dakrand
Unit
Opmerking:
Alle afmetingen zijn in mm
C
Ondersteuning van unit (Alleen voor neerwaarts gerichte unit)
Model
(UATYQ)
250
350/450
550/600/700
A
355
355
355
B
1506
2081
2081
C
840
700
840
D
315
410
625
E
315
410
462
F
0
0
190
G
314
287
248
H
0
131
131
I
607
600
646
J
322
544
495
K
540
682
676
L
0
42
51
M
300
300
300
N
141
141
141
O
1784
1807
2365
P
300
300
300
Q
481
477
590
R
1469
1998
1998
P
H
Y
A
D
E
F
G
X
Z
I
K
L
R
J
4 IM 5RTBR-0710(3)DK(denv)-NL.in14 14
4 IM 5RTBR-0710(3)DK(denv)-NL.in14 14
4/10/12 2:59:51 PM
4/10/12 2:59:51 PM












