Кондиционеры Daikin UATYQ-CY1 - инструкция пользователя по применению, эксплуатации и установке на русском языке. Мы надеемся, она поможет вам решить возникшие у вас вопросы при эксплуатации техники.
Если остались вопросы, задайте их в комментариях после инструкции.
"Загружаем инструкцию", означает, что нужно подождать пока файл загрузится и можно будет его читать онлайн. Некоторые инструкции очень большие и время их появления зависит от вашей скорости интернета.

14
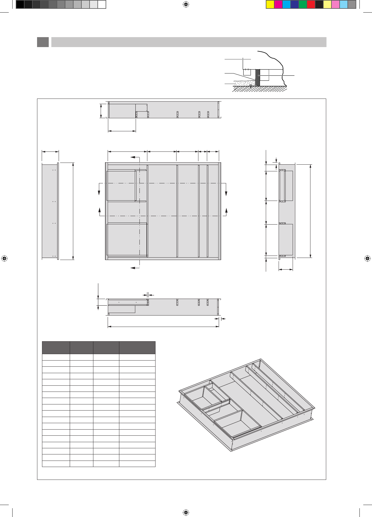
La fi gura mostra l
’
uso della struttura di tenuta a soffi
tto per
il montaggio di queste unità.
Tale struttura dovrebbe essere sigillata e fi ssata al soffi
tto
da una guarnizione di tenuta. Un mezzo suggerito per la
guarnizione dell
’
unità e la struttura di tenuta a soffi
tto come
mostrato a destra.
Le dimensioni della struttura di tenuta raccomandate sono
mostrate di seguito.
l
l
l
Pedana a
soffi
tto
Sigillare con
catrame
Pedana a
soffi
tto
Unità
C
Supporto unità (Solo per l
’
unità a gettito verso il basso)
Nota:
Tutte le dimensioni sono in mm
Modello
(UATYQ)
250
350/450
550/600/700
A
355
355
355
B
1506
2081
2081
C
840
700
840
D
315
410
625
E
315
410
462
F
0
0
190
G
314
287
248
H
0
131
131
I
607
600
646
J
322
544
495
K
540
682
676
L
0
42
51
M
300
300
300
N
141
141
141
O
1784
1807
2365
P
300
300
300
Q
481
477
590
R
1469
1998
1998
Q
SEZIONE X-X
41
,
5
C
X
Z
B
M
SEZIONE Y-Y
SEZIONE Z-Z
O
25
52
N
P
H
Y
A
D
E
F
G
X
Z
I
K
L
R
J
Y
6 IM 5RTBR-0710(3)DK(denv)-IT.in14 14
6 IM 5RTBR-0710(3)DK(denv)-IT.in14 14
4/10/12 3:02:57 PM
4/10/12 3:02:57 PM












