Кондиционеры Daikin UATYQ-CY1 - инструкция пользователя по применению, эксплуатации и установке на русском языке. Мы надеемся, она поможет вам решить возникшие у вас вопросы при эксплуатации техники.
Если остались вопросы, задайте их в комментариях после инструкции.
"Загружаем инструкцию", означает, что нужно подождать пока файл загрузится и можно будет его читать онлайн. Некоторые инструкции очень большие и время их появления зависит от вашей скорости интернета.

19
POLSKI
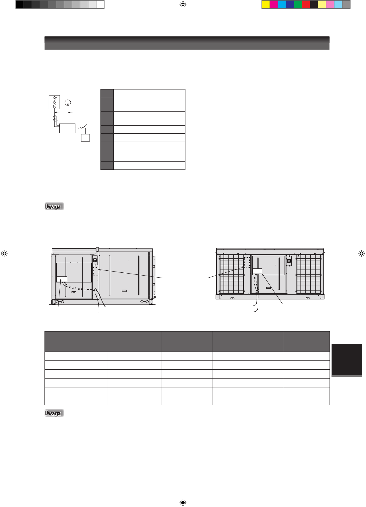
Zalecane
położenie puszki
przełącznika
Listwa
zaciskowa
Listwa zaciskowa
Kabel zasilania (zaślep otwory na
przewody po instalacji)
CZŁON
STERUJĄCY
CZŁON
STERUJĄCY
Kabel kontrolny
Kabel zasilania
Kabel
kontrolny
Podczas instalowania wyłącznika automatycznego (bezpiecznika) w urządzeniu należy upewnić się
,
że wkręty nie uszkodziły komponentów
(np. cewki) wewnątrz urządzenia.
Puszka przełącznika również może być instalowana bez mocowania do urządzenia.
Wyłamywane otwory na przewody znajdują się wyłącznie w modelu UATYQ250; model UATYQ350
,
UATYQ450
,
UATYQ550
,
UATYQ600 &
UATYQ700 dostarczany jest z otworem na kabel zasilania.
Przełącznik główny lub inne środki odłączające
,
mające wyłącznik wielobiegunowy
,
muszą być umieszczone w instalacji stałej
zgodnie z miejscowym i krajowym prawem.
Urządzenie jest połączone przewodem bezpośrednio z elektrycznej tablicy rozdzielczej albo przez wyłącznik automatyczny
(rozwiązanie preferowane) albo przez bezpiecznik HRC.
Przymocować przewód zasilania do modułu sterowania. Podłączyć przewód sterowania do listwy zaciskowej sterowania
poprzez otwór członu sterującego.
Musi być podłączony przewód uziemiający.
Kabel zasilania musi być równoważny H07RN-F
,
co jest minimalnym wymaganiem
,
oraz musi być używany w rurce
zabezpieczającej.
Wszystkie styki sieci energetycznej muszą być odłączone z wyłącznikiem wielobiegunowym z przynajmniej 3mm.
ü
ü
ü
ü
ü
UATYQ250
UATYQ350
,
450
,
550
,
600 & 700
Przykład instalacji elektrycznej i wybór bezpiecznika
Model
Kabel zasilania
(mm
2
)
Zdolność
wyłączania
bezpiecznika (A)
Przełącznik
zabezpieczenia
nadprądowego (A)
Kabel
uziemienia
(mm
2
)
UATYQ250
4
32
32
4
UATYQ350
6
40
40
6
UATYQ450
10
40
40
10
UATYQ550
10
50
50
10
UATYQ600
16
63
63
16
UATYQ700
25
80
80
25
Wszystkie roboty elektryczne muszą być wykonywane przez wykwalifi kowanych elektryków i zgodnie z miejscowymi wymaganiami i
stosowanym prawem.
l
Łączenie przewodu elektrycznego
Przed podłączeniem przewodu należy skonsultować się z właściwym przedsiębiorstwem energetycznym.
1. Cały schemat elektryczny urządzenia
PE
a
b
c
d
g
e
f
a
Zasilanie
b
Przełącznik główny/
bezpiecznik (pole zasilania)
c
Instalacja zasilająca
urządzenie
d
Urządzenie
e
Zdalne sterowanie
f
Podłączenie instalacji
elektrycznej do urządzenia i
zdalne sterowanie
g
Uziemienie
2.Podłączenie instalacji elektrycznej do urządzenia
Przeprowadź przewody zasilające i przewód sterujący poprzez wyłamywane otwory oraz otwory na przewody w urządzeniu.
Zdjąć poszycia obsługowe i podłączyć przewody zasilające urządzenia do listwy zaciskowej wewnątrz członu sterującego
,
jak pokazano.
W celu poprawnego zamontowania przewodów elektrycznych skorzystaj ze zwalnianych przez nacisk zacisków zlokalizowanych u
spodu terminalu.
POŁĄCZENIA KABLOWE
10 IM 5RTBR-0710(2)-PL.indd 19
10 IM 5RTBR-0710(2)-PL.indd 19
1/12/11 9:54:05 AM
1/12/11 9:54:05 AM












