Кондиционеры Daikin UATYQ-CY1 - инструкция пользователя по применению, эксплуатации и установке на русском языке. Мы надеемся, она поможет вам решить возникшие у вас вопросы при эксплуатации техники.
Если остались вопросы, задайте их в комментариях после инструкции.
"Загружаем инструкцию", означает, что нужно подождать пока файл загрузится и можно будет его читать онлайн. Некоторые инструкции очень большие и время их появления зависит от вашей скорости интернета.

8
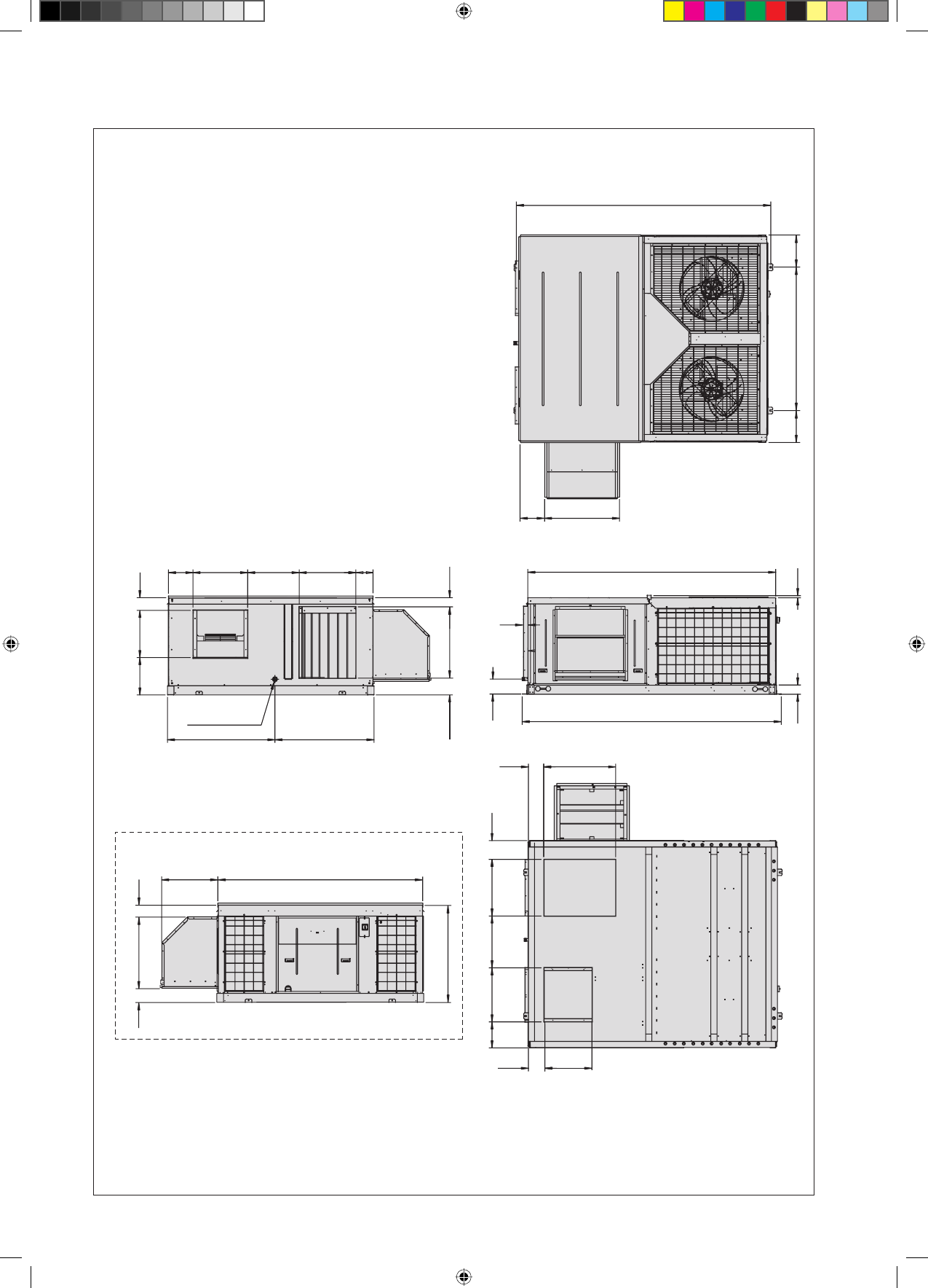
All dimensions are in mm
DRAIN PIPE
ø
1"
SUPPLY AIR
All dimensions are in mm
FOR HORIZONTAL DISCHARGE
FOR VERTICAL DISCHARGE
2739
342
1547
342
806
269
2670
2789
23
99
48
168
96
187
610
558
1161
1069
2209
1048
607
128
771
149
586
268
134
509
405
770
182
RETURN AIR
OUTDOOR AIR
OUTDOOR AIR
770
172
201
610
560
581
281
179
509
CONTROL
BOX
Model: UATYQ550 WITH ECONOMIZER OPTION
Back view of the unit:
VERTICAL
RETURN AIR
VERTICAL
SUPPLY
AIR
1 IM 5RTBR-0710(2)-EN.indd 8
1 IM 5RTBR-0710(2)-EN.indd 8
1/10/11 3:38:13 PM
1/10/11 3:38:13 PM












