Кондиционеры Daikin UATYQ-CY1 - инструкция пользователя по применению, эксплуатации и установке на русском языке. Мы надеемся, она поможет вам решить возникшие у вас вопросы при эксплуатации техники.
Если остались вопросы, задайте их в комментариях после инструкции.
"Загружаем инструкцию", означает, что нужно подождать пока файл загрузится и можно будет его читать онлайн. Некоторые инструкции очень большие и время их появления зависит от вашей скорости интернета.

5
POLSKI
342
2180
1546
342
22
2113
99
58
168
2230
630
164
PRZEWÓD
PIONOWY
POWIETRZA
POWROTNEGO
PRZEWÓD
PIONOWY
POWIETRZA
NAWIEWANEGO
407
164
187
614
613
538
280
2209
1130
265
544
651
614
136
RURA ŚCIEKOWA
ø
1"
235
630
264
1161
1069
328
405
395
CZŁON
STERUJĄCY
POWIETRZE NAWIEWNE
POWIETRZE
POWROTNE
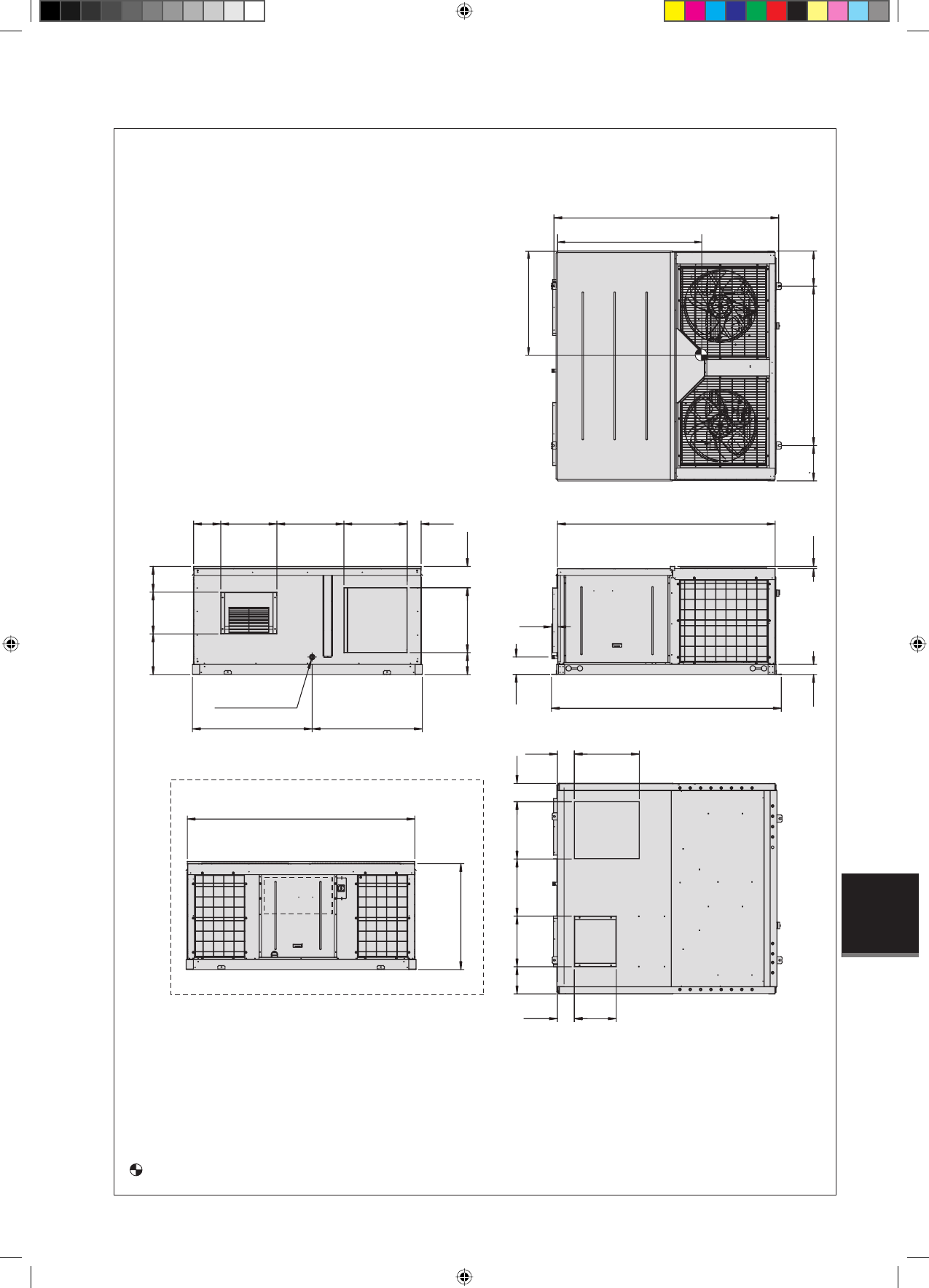
Widok z tyłu urządzenia:
1385
1000
Model: UATYQ450
Wszystkie wymiary w mm
ŚRODEK CIĘŻKOŚCI
DO POZIOMEGO PRZEWODU TŁOCZNEGO
DO PIONOWEGO PRZEWODU TŁOCZNEGO
10 IM 5RTBR-0710(2)-PL.indd 5
10 IM 5RTBR-0710(2)-PL.indd 5
1/12/11 9:53:33 AM
1/12/11 9:53:33 AM












