Кондиционеры Daikin FWG-AT - инструкция пользователя по применению, эксплуатации и установке на русском языке. Мы надеемся, она поможет вам решить возникшие у вас вопросы при эксплуатации техники.
Если остались вопросы, задайте их в комментариях после инструкции.
"Загружаем инструкцию", означает, что нужно подождать пока файл загрузится и можно будет его читать онлайн. Некоторые инструкции очень большие и время их появления зависит от вашей скорости интернета.

6-14
C ) ALTRI
Il pannello del dispositivo di controllo contiene altre opzioni.
Modo Disponibile
Se il contatto a secco è chiuso, verrà attivato il Modo Disponibile, e viceversa. Se viene attivato il Timer, l’impianto tornerà
in Modo Occupato.
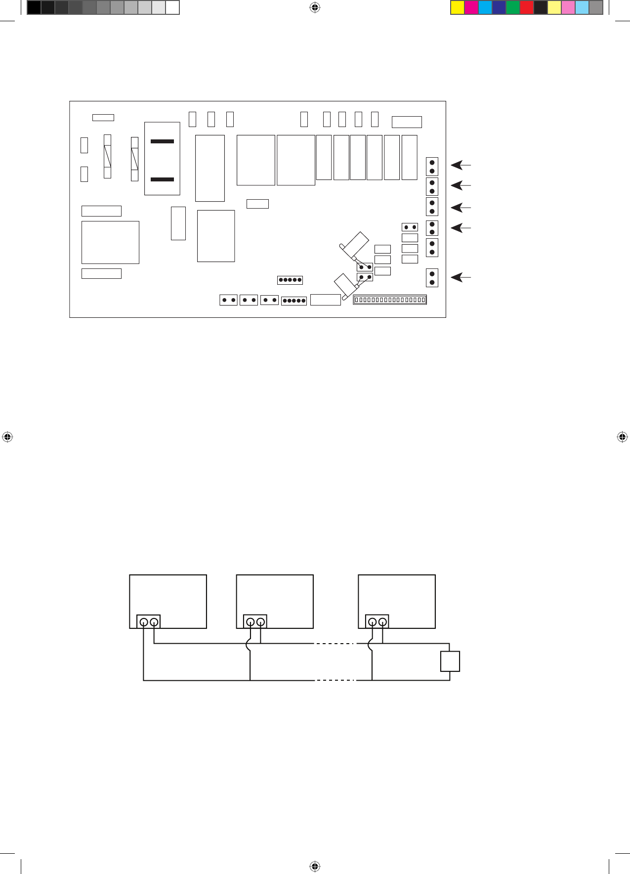
È possibile collegare in parallelo i punti di connessione del contatto a secco e i pannelli delle altre unità fan-coil (FCU). Se il
contatto a secco è chiuso. Il Modo Disponibile verrà attivato in tutte le FCU collegate in parallelo, come indicato nella figura
qui sopra.
Modo Anticongelamento
La funzione Anticongelamento ha la priorità su tutte le modalità di funzionamento dell’unità. Essa sarà attivato solo se il
contatto a secco è chiuso, e viceversa.
Modo Apri Finestra
È possibile collegare in parallelo i punti di connessione del contatto a secco e i pannelli delle altre unità fan-coil (FCU). Se il
contatto a secco è chiuso, il Modo Apri finestra verrà attivato in tutte le FCU collegate in parallelo, come indicato nella figura
qui di seguito.
Modo Distacco di carico
È possibile collegare in parallelo i punti di connessione del contatto a secco e i pannelli delle altre unità fan-coil (FCU). Se il
contatto a secco è chiuso, il Modo Distacco di carico verrà attivato in tutte le FCU collegate in parallelo, come indicato nella
figura qui di seguito.
i)
ii)
iii)
iv)
SW
FCU1
FCU2
FCU3
È inoltre possibile attivare il Modo Disponibile globale, Apri finestra globale, e Distacco di carico globale, tramite la linea di
comunicazione in rete, utilizzando il dispositivo di controllo principale, con o senza le connessioni descritte in precedenza.
(Dipende da disponibilità per questa caratteristica.)
Nota:
Il Modo Ventilazione automatica è disponibile soltanto nel modello 3. (Solo Raffreddamento con La Caldaia).
Il Modo Ventilazione non è disponibile con il controllo senza valvole.
Il ricevitore cablato è dotato di un sensore della temperatura ambiente interna. Non sistemare il ricevitore in luoghi isolati
in cui la lettura verrà eseguita in maniera errata.
i)
ii)
iii)
Modo Disponibile
Modo Anticongelamento
Collegamento all’
interruttore a livello
Modo Distacco di carico
HTR
L
N2
LIVE
N1
HI
MED
LOW
CN_TW
CN_PGRM
CN_WIR
ROOM
CN_STP
C_SEN
H_SEN
HEA
T
VA
LV
E
CN_DSP
SHED
M4
M3
M2
M1
TFULL
A_FRZ
W_OPEN
UNOCP
SLIENT
CVL
V
HVL
V
WTP
AS
CN_DRY
Modo Apri Finestra
CO_DRAFT
INTERRUTTORE
GLOBALE
6 IM-CKEW(DC)-1013(1)DAIKIN-IT.i14 14
6 IM-CKEW(DC)-1013(1)DAIKIN-IT.i14 14
7/1/14 2:40:37 PM
7/1/14 2:40:37 PM
Содержание
- 132 МЕРЫ ПРЕДОСТОРОЖНОСТИ; ВHИMAHИE; Удостоверьтесь, что сливные трубы соединены надлежащим образом.; Если сливные трубы не соединены надлежащим образом, это может; Остерегайтесь контакта с этими местами.; Если этого не сделать, при включении питания вентиляторы; РУКОВОДСТВО ПО УСТАНОВКЕ; ПPEДУПPEЖДEHИE
- 133 РИСУНОК УСТАНОВКИ; Убедитесь, что место установки отвечает следующим требованиям:; Предварительный осмотр места установки; Трубы системы
- 134 Обязательно обсудите сверлильные потолочные
- 135 Подсоединение Водопровода; Водоприемник 1
- 136 ПРИМЕЧАНИЕ
- 139 должны быть не менее 3мм.
- 140 Эксплуатационные ограничения:
- 141 Характеристика короткой вентиляционной трубы
- 142 ПОКАЗАНИЯ ИНДИКАТОРОВ; Действие; УСТАНОВКА ПАНЕЛИ УПРАВЛЕНИЯ ВЕНТИЛЯТОРНОГО ДОВОДЧИКА; Модель M3
- 143 ВОЗДУХА; Катушка 1; Катушка 2
- 145 ОCTOPOЖHO; Узлы
- 146 МЕРЫ ПО УСТРАНЕНИЮ; Неисправность












