Кондиционеры Daikin FWG-AT - инструкция пользователя по применению, эксплуатации и установке на русском языке. Мы надеемся, она поможет вам решить возникшие у вас вопросы при эксплуатации техники.
Если остались вопросы, задайте их в комментариях после инструкции.
"Загружаем инструкцию", означает, что нужно подождать пока файл загрузится и можно будет его читать онлайн. Некоторые инструкции очень большие и время их появления зависит от вашей скорости интернета.

10-14
C) DİĞERLERİ
Denetleyici kurulu diğer seçeneği ile geliyor.
Boş Modu
Kuru kontak kapalı ise, ekonomi modu etkinleştirildiğinde ve bunun tersi olabilir. Timer On etkin olduğunda, sistem işgal
moduna geri döner.
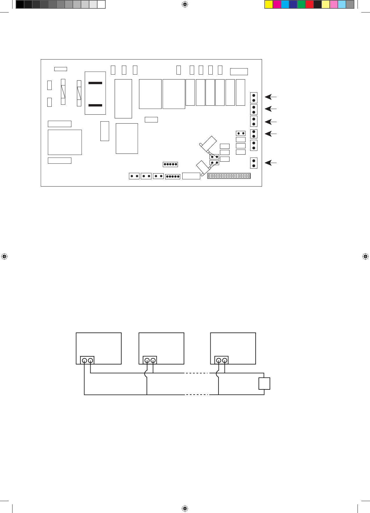
Kuru kontak bağlantı noktaları diğer fan coil ünitesi (FCU) kurulları ile paralel bağlanabilir. Kuru kontak kapalı ise. Ekonomi
modu yukarıdaki resimde gösterildiği gibi paralel bağlı olan tüm fan coil üniteleri devreye girecektir.
Anti-Freeze Modu
Anti-Freeze işlem tüm ünite çalışması arasında en yüksek önceliğe sahiptir. Anti-Freeze işlemi kuru kontak kapalı ise sadece
aktif ve tam tersi olacaktır.
Pencere Aç Modu
Kuru kontak bağlantı noktaları diğer fan coil ünitesi (FCU) kurulları ile paralel bağlanabilir. Kuru kontak kapalı ise, Pencere
açık modunda aşağıdaki resimde gösterildiği gibi paralel bağlı olan tüm fan coil üniteleri devreye girecektir.
Atma yükleyin
Kuru kontak bağlantı noktaları diğer fan coil ünitesi (FCU) kurulları ile paralel bağlanabilir. Kuru kontak kapalı ise, mod
aşağıdaki resimde gösterildiği gibi paralel bağlı olan tüm fan coil üniteleri aktive edilecek yük atma.
i)
ii)
iii)
iv)
SW
FCU1
FCU2
FCU3
Küresel Kullanılmayan alanlarda, Küresel Pencere Aç ve operasyon Atma Yük Global ayrıca yukarıda bağlantısı olan
veya olmayan master kontrolör ile ağ iletişimi otobüs hattı vasıtasıyla devreye sokulabilir. (Bu özellik için bulunmasına
bağlıdır.)
Not:
Otomatik Fan Mode model sadece 3 geçerlidir. (Sadece Kazan ile Soğutma).
Fan modu supapsız kontrolü mevcut değildir.
Kablolu telefon kapalı oda sensörü var. Oda sıcaklığında okuma yanlış olacaktır izole yerlerde kablolu yakışıklı bulma
kaçının.
i)
ii)
iii)
Boş Modu
Anti-Freeze Modu
Seviye Şalteri bağlan
Mod Atma yükleyin
HTR
L
N2
LIVE
N1
HI
MED
LO
W
CN_TW
CN_PGRM
CN_WIR
ROOM
CN_STP
C_SEN
H_SEN
HEA
T
VA
LV
E
CN_DSP
SHED
M4
M3
M2
M1
TFULL
A_FRZ
W_OPEN
UNOCP
SLIENT
CV
LV
HVL
V
WT
P
AS
CN_DRY
Pencere Aç Modu
CO
_DRAFT
GLOBAL
ŞALTERİ
10 IM-CKEW(DC)-1013(1)DAIKIN-TR.14 14
10 IM-CKEW(DC)-1013(1)DAIKIN-TR.14 14
7/1/14 2:41:50 PM
7/1/14 2:41:50 PM
Содержание
- 132 МЕРЫ ПРЕДОСТОРОЖНОСТИ; ВHИMAHИE; Удостоверьтесь, что сливные трубы соединены надлежащим образом.; Если сливные трубы не соединены надлежащим образом, это может; Остерегайтесь контакта с этими местами.; Если этого не сделать, при включении питания вентиляторы; РУКОВОДСТВО ПО УСТАНОВКЕ; ПPEДУПPEЖДEHИE
- 133 РИСУНОК УСТАНОВКИ; Убедитесь, что место установки отвечает следующим требованиям:; Предварительный осмотр места установки; Трубы системы
- 134 Обязательно обсудите сверлильные потолочные
- 135 Подсоединение Водопровода; Водоприемник 1
- 136 ПРИМЕЧАНИЕ
- 139 должны быть не менее 3мм.
- 140 Эксплуатационные ограничения:
- 141 Характеристика короткой вентиляционной трубы
- 142 ПОКАЗАНИЯ ИНДИКАТОРОВ; Действие; УСТАНОВКА ПАНЕЛИ УПРАВЛЕНИЯ ВЕНТИЛЯТОРНОГО ДОВОДЧИКА; Модель M3
- 143 ВОЗДУХА; Катушка 1; Катушка 2
- 145 ОCTOPOЖHO; Узлы
- 146 МЕРЫ ПО УСТРАНЕНИЮ; Неисправность