Кондиционеры Daikin FWG-AT - инструкция пользователя по применению, эксплуатации и установке на русском языке. Мы надеемся, она поможет вам решить возникшие у вас вопросы при эксплуатации техники.
Если остались вопросы, задайте их в комментариях после инструкции.
"Загружаем инструкцию", означает, что нужно подождать пока файл загрузится и можно будет его читать онлайн. Некоторые инструкции очень большие и время их появления зависит от вашей скорости интернета.

8-14
C) OUTROS
O quadro controlador é fornecido com outra opção.
Modo Desocupado
Se o contacto seco estiver fechado, o modo Desocupado é activado e vice-versa. Quando a função de Activação do temporizador
está activada, o sistema passa para o modo Ocupado.
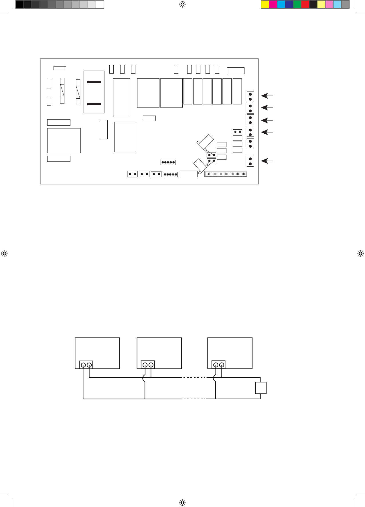
Os pontos de ligação do contacto seco podem ser ligados em paralelo com outros quadros da unidade da bobina da ventoinha
(FCU). Se o contacto seco estiver fechado. O modo Desocupado é activado em todas as unidades da bobina da ventoinha que
se encontram ligadas em paralelo conforme indicado na
fi
gura anterior.
Modo Anti-congelamento
A função anti-congelamento tem a maior prioridade de todas as operações da unidade. A função anti-congelamento só é activada
se o contacto seco estiver fechado e vice-versa.
Modo Janela abertas
Os pontos de ligação do contacto seco podem ser ligados em paralelo com outros quadros da unidade da bobina da ventoinha
(FCU). Se o contacto seco estiver fechado, o modo Janelas abertas é activado em todas as unidades da bobina da ventoinha
que se encontram ligadas em paralelo conforme indicado na figura a seguir.
Libertação da carga
Os pontos de ligação do contacto seco podem ser ligados em paralelo com outros quadros da unidade da bobina da ventoinha
(FCU). Se o contacto seco estiver fechado, o modo Libertação da carga é activado em todas as unidades da bobina da ventoinha
que se encontram ligadas em paralelo conforme indicado na figura a seguir.
i)
ii)
iii)
iv)
SW
FCU1
FCU2
FCU3
As funções Desocupado global, Janelas abertas global e Libertação da carga global também podem ser activadas através
linha de alimentação das comunicações da rede através do controlador principal com ou sem a anterior ligação. (depend
disponibilidade para este característica.)
Nota:
O modo Ventoinha automática só é aplicável no modelo 3. (Com Arrefecimento Apenas com Caldeira).
O modo Ventoinha não se encontra disponível no controlo sem válvula.
O controlo de mão com fios tem um sensor da divisão interior. Evite instalar o controlo de mão com fios em locais isolados
onde a leitura da temperatura da divisão seja imprecisa.
i)
ii)
iii)
Modo Desocupado
Modo Anti-congelamento
Ligar à Chave de Nível
Modo Libertação da Carga
HTR
L
N2
LIVE
N1
HI
MÉDIO
BAIXO
CN_TW
CN_PGRM
CN_WIR
ROOM
CN_STP
C_SEN
H_SEN
AQUECIMENT
O
VÁL
VULA
CN_DSP
SHED
M4
M3
M2
M1
TFULL
A_FRZ
W_OPEN
UNOCP
SLIENT
CVL
V
HVL
V
WTP
AS
CN_DRY
Modo Janelas abertas
CO_DRAFT
CHAVE DE
NÍVEL
8 IM-CKEW(DC)-1013(1)DAIKIN-PT.i14 14
8 IM-CKEW(DC)-1013(1)DAIKIN-PT.i14 14
7/1/14 2:41:13 PM
7/1/14 2:41:13 PM
Содержание
- 132 МЕРЫ ПРЕДОСТОРОЖНОСТИ; ВHИMAHИE; Удостоверьтесь, что сливные трубы соединены надлежащим образом.; Если сливные трубы не соединены надлежащим образом, это может; Остерегайтесь контакта с этими местами.; Если этого не сделать, при включении питания вентиляторы; РУКОВОДСТВО ПО УСТАНОВКЕ; ПPEДУПPEЖДEHИE
- 133 РИСУНОК УСТАНОВКИ; Убедитесь, что место установки отвечает следующим требованиям:; Предварительный осмотр места установки; Трубы системы
- 134 Обязательно обсудите сверлильные потолочные
- 135 Подсоединение Водопровода; Водоприемник 1
- 136 ПРИМЕЧАНИЕ
- 139 должны быть не менее 3мм.
- 140 Эксплуатационные ограничения:
- 141 Характеристика короткой вентиляционной трубы
- 142 ПОКАЗАНИЯ ИНДИКАТОРОВ; Действие; УСТАНОВКА ПАНЕЛИ УПРАВЛЕНИЯ ВЕНТИЛЯТОРНОГО ДОВОДЧИКА; Модель M3
- 143 ВОЗДУХА; Катушка 1; Катушка 2
- 145 ОCTOPOЖHO; Узлы
- 146 МЕРЫ ПО УСТРАНЕНИЮ; Неисправность