Кондиционеры Daikin FWG-AT - инструкция пользователя по применению, эксплуатации и установке на русском языке. Мы надеемся, она поможет вам решить возникшие у вас вопросы при эксплуатации техники.
Если остались вопросы, задайте их в комментариях после инструкции.
"Загружаем инструкцию", означает, что нужно подождать пока файл загрузится и можно будет его читать онлайн. Некоторые инструкции очень большие и время их появления зависит от вашей скорости интернета.

4-14
C) ANDERS
Het besturingsbord komt met andere opties.
Niet-bezet modus
Indien het droge contact gesloten is, is de niet-bezet modus geactiveerd. en vise versa. Wanneer de uitschakeltimer actief is,
gaat het systeem terug naar de bezet-modus.
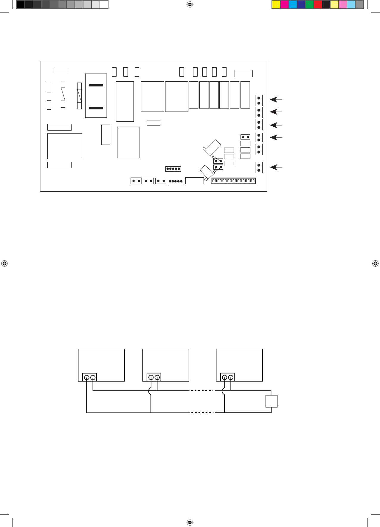
De verbindingspunten van het droge contact kunnen parallel verbonden worden met de schakelborden van andere
ventilatorluchtkoelers (FCU's). Indien het droge contact gesloten is. Indien het droge contact gesloten is, wordt de niet-bezet
modus geactiveerd voor alle ventilatorluchtkoelers, die parallel verbonden, zijn zoals hierboven geïllustreerd.
Antivriesmodus
De antivriesmodus heeft de hoogste prioriteit van alle airconditionerfuncties De antivriesmodus wordt alleen geactiveerd,
indien het droge contact gesloten is en omgekeerd.
Open venster modus
De verbindingspunten van het droge contact kunnen parallel verbonden worden met de schakelborden van andere
ventilatorluchtkoelers (FCU's). Indien het droge contact gesloten is, wordt de open venster modus geactiveerd voor alle
ventilatorluchtkoelers, die parallel verbonden zijn, zoals hieronder geïIlustreerd.
Ontlastingsmodus
De verbindingspunten van het droge contact kunnen parallel verbonden worden met de schakelborden van andere
ventilatorluchtkoelers (FCU's). Indien het droge contact gesloten is, wordt de ontlasting geactiveerd voor alle ventilatorluchtkoelers,
die parallel verbonden zijn, zoals hieronder geïIlustreerd.
i)
ii)
iii)
iv)
SW
FCU1
FCU2
FCU3
Via de ingangsbus van de netwerkcommunicatie kunnen globaal niet-bezet, globaal open venster en globale ontlasting, met
of zonder de bovengenoemde verbindingen, ook geactiveerd worden door de hoofdbesturing. (Hangt van beschikbaarheid
voor deze eigenschap af.)
Opmerking:
De automatische ventilatormodus is alleen beschikbaar voor model 3. (Alleen koeling met boiler).
De ventilatormodus is niet beschikbaar bij ventielloze besturing.
De bedrade afstandsbediening heeft een sensor voor de binnentemperatuur. Installeer de bedrade afstandsbediening niet
op geïsoleerde plaatsen, waar de kamertemperatuur niet correct afgelezen kan worden.
i)
ii)
iii)
Niet-bezet modus
Antivriesmodus
Verbindt met niveauschakelaar
Ontlastingsmodus
HTR
L
N2
LIVE
N1
HI
MED
LOW
CN_TW
CN_PGRM
CN_WIR
ROOM
CN_STP
C_SEN
H_SEN
WARMTE
AFSLUITER
CN_DSP
SHED
M4
M3
M2
M1
TFULL
A_FRZ
W_OPEN
UNOCP
SLIENT
CVL
V
HVL
V
WTP
AS
CN_DRY
Open venster modus
CO_DRAFT
GLOBALE
SCHAKELAAR
4 IM-CKEW(DC)-1013(1)DAIKIN-NL.i14 14
4 IM-CKEW(DC)-1013(1)DAIKIN-NL.i14 14
7/1/14 2:39:58 PM
7/1/14 2:39:58 PM
Содержание
- 132 МЕРЫ ПРЕДОСТОРОЖНОСТИ; ВHИMAHИE; Удостоверьтесь, что сливные трубы соединены надлежащим образом.; Если сливные трубы не соединены надлежащим образом, это может; Остерегайтесь контакта с этими местами.; Если этого не сделать, при включении питания вентиляторы; РУКОВОДСТВО ПО УСТАНОВКЕ; ПPEДУПPEЖДEHИE
- 133 РИСУНОК УСТАНОВКИ; Убедитесь, что место установки отвечает следующим требованиям:; Предварительный осмотр места установки; Трубы системы
- 134 Обязательно обсудите сверлильные потолочные
- 135 Подсоединение Водопровода; Водоприемник 1
- 136 ПРИМЕЧАНИЕ
- 139 должны быть не менее 3мм.
- 140 Эксплуатационные ограничения:
- 141 Характеристика короткой вентиляционной трубы
- 142 ПОКАЗАНИЯ ИНДИКАТОРОВ; Действие; УСТАНОВКА ПАНЕЛИ УПРАВЛЕНИЯ ВЕНТИЛЯТОРНОГО ДОВОДЧИКА; Модель M3
- 143 ВОЗДУХА; Катушка 1; Катушка 2
- 145 ОCTOPOЖHO; Узлы
- 146 МЕРЫ ПО УСТРАНЕНИЮ; Неисправность