Кондиционеры Daikin FWG-AT - инструкция пользователя по применению, эксплуатации и установке на русском языке. Мы надеемся, она поможет вам решить возникшие у вас вопросы при эксплуатации техники.
Если остались вопросы, задайте их в комментариях после инструкции.
"Загружаем инструкцию", означает, что нужно подождать пока файл загрузится и можно будет его читать онлайн. Некоторые инструкции очень большие и время их появления зависит от вашей скорости интернета.

1-14
C) OTHERS
The controller board comes with other option.
Unoccupied Mode
If the dry contact is closed, the Unoccupied mode is activated and vice versa. When Timer On is active, system goes back to
Occupied mode.
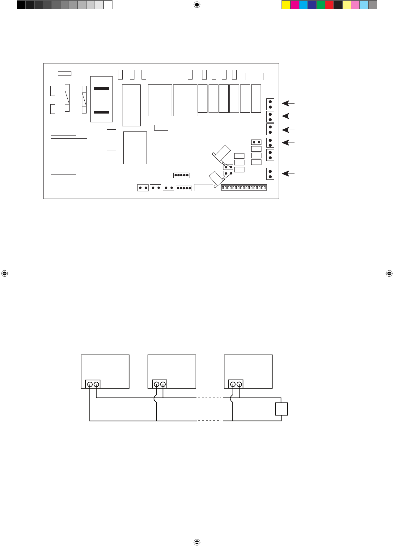
The dry contact connection points can be connected in parallel with other fan coil unit (FCU) boards. If the dry contact is closed.
Unoccupied mode will be activated on all the fan coil units which are connected in parallel as shown in figure above.
Anti Freeze Mode
Anti Freeze operation has the highest priority among all unit operation. Anti Freeze operation will be activated only if dry
contact is closed and vice versa.
Window Open Mode
The dry contact connection points can be connected in parallel with other fan coil unit (FCU) boards. If the dry contact is closed,
Window open mode will be activated on all the fan coil units which are connected in parallel as shown in figure below.
Load Shedding
The dry contact connection points can be connected in parallel with other fan coil unit (FCU) boards. If the dry contact is closed,
load shedding mode will be activated on all the fan coil units which are connected in parallel as shown in figure below.
i)
ii)
iii)
iv)
SW
FCU1
FCU2
FCU3
Global Unoccupied, Global Window Open and Global Load Shedding operation could also be activated via the network
communication bus line by the master controller with or without the above connection. (Depends on availability for this
feature.)
Note:
Auto Fan Mode is only applicable in model 3 only. (Cooling only with Boiler).
Fan mode is not available in valveless control.
Wired handset has an indoor room sensor. Avoid locating the wired handset at isolated places where room temperature
reading will be inaccurate.
i)
ii)
iii)
Unoccupied Mode
Anti Freeze Mode
Connect to Level Switch
Load Shedding Mode
HTR
L
N2
LIVE
N1
HI
MED
LOW
CN_TW
CN_PGRM
CN_WIR
ROOM
CN_STP
C_SEN
H_SEN
HEA
T
VA
LV
E
CN_DSP
SHED
M4
M3
M2
M1
TFULL
A_FRZ
W_OPEN
UNOCP
SLIENT
CVL
V
HVL
V
WTP
AS
CN_DRY
Windows Open Mode
CO_DRAFT
GLOBAL
SWITCH
1 IM-CKEW(DC)-1013(1)DAIKIN-EN.i14 14
1 IM-CKEW(DC)-1013(1)DAIKIN-EN.i14 14
7/1/14 2:39:07 PM
7/1/14 2:39:07 PM
Содержание
- 132 МЕРЫ ПРЕДОСТОРОЖНОСТИ; ВHИMAHИE; Удостоверьтесь, что сливные трубы соединены надлежащим образом.; Если сливные трубы не соединены надлежащим образом, это может; Остерегайтесь контакта с этими местами.; Если этого не сделать, при включении питания вентиляторы; РУКОВОДСТВО ПО УСТАНОВКЕ; ПPEДУПPEЖДEHИE
- 133 РИСУНОК УСТАНОВКИ; Убедитесь, что место установки отвечает следующим требованиям:; Предварительный осмотр места установки; Трубы системы
- 134 Обязательно обсудите сверлильные потолочные
- 135 Подсоединение Водопровода; Водоприемник 1
- 136 ПРИМЕЧАНИЕ
- 139 должны быть не менее 3мм.
- 140 Эксплуатационные ограничения:
- 141 Характеристика короткой вентиляционной трубы
- 142 ПОКАЗАНИЯ ИНДИКАТОРОВ; Действие; УСТАНОВКА ПАНЕЛИ УПРАВЛЕНИЯ ВЕНТИЛЯТОРНОГО ДОВОДЧИКА; Модель M3
- 143 ВОЗДУХА; Катушка 1; Катушка 2
- 145 ОCTOPOЖHO; Узлы
- 146 МЕРЫ ПО УСТРАНЕНИЮ; Неисправность