Кондиционеры Daikin EWAQ-F-SL - инструкция пользователя по применению, эксплуатации и установке на русском языке. Мы надеемся, она поможет вам решить возникшие у вас вопросы при эксплуатации техники.
Если остались вопросы, задайте их в комментариях после инструкции.
"Загружаем инструкцию", означает, что нужно подождать пока файл загрузится и можно будет его читать онлайн. Некоторые инструкции очень большие и время их появления зависит от вашей скорости интернета.

D-EIMAC00804-14EU – 90/209
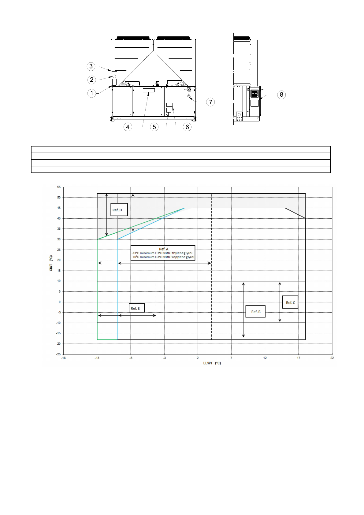
Определение
ярлыков
Рису
Замечание
Вышеприведённый
график
даёт
ориентировочные
пределы
рабочих
условий
.
Реальные
эксплуатационные
пределы
в
определённых
рабочих
условиях
для
агрегатов
разных
размеров
приведены
в
программном
обеспечении
выбора
чиллера
(CSS).
Условные
обозначения
CIAT =
Температура
воздуха
на
входе
в
конденсатор
(°C)
ELWT =
Температура
воздуха
на
выходе
из
испарителя
(°C)
A =
Работа
с
гликолем
(
темп
.
воды
на
выходе
из
испарителя
ниже
4°C)
B =
регулировка
скорости
вентилятора
или
необходимый
speedtroll (
температура
конденсирующего
воздуха
ниже
10°C )
С
=
регулировка
скорости
вентилятора
или
необходимый
speedtroll (
температура
конденсирующего
воздуха
между
10°C
и
-10°C)*
*
только
для
агрегатов
с
4, 5, 6
вентиляторями
D =
в
данной
зоне
агрегат
может
функционировать
частично
E =
в
данной
зоне
минимальная
мощность
агрегата
может
превышать
значение
,
указанное
в
таблице
технических
данных
F =
стандартная
эффективность
(
стандартный
уровень
шума
)
G =
высокая
эффективность
(
стандартный
уровень
шума
)
1 –
Обозначение
невоспламеняющегося
газа
5 –
Предупреждение
замыкание
проводов
2 –
Тип
газа
6 –
Предупреждение
опасное
напряжение
3 –
Данные
опознавательной
таблички
агрегата
7 –
Обозначение
электрической
опасности
4 –
Логотип
изготовителя
8 –
Инструкции
по
подъёму