Кондиционеры Daikin EWAQ-F-SL - инструкция пользователя по применению, эксплуатации и установке на русском языке. Мы надеемся, она поможет вам решить возникшие у вас вопросы при эксплуатации техники.
Если остались вопросы, задайте их в комментариях после инструкции.
"Загружаем инструкцию", означает, что нужно подождать пока файл загрузится и можно будет его читать онлайн. Некоторые инструкции очень большие и время их появления зависит от вашей скорости интернета.

D-EIMAC00804-14EU – 110/209
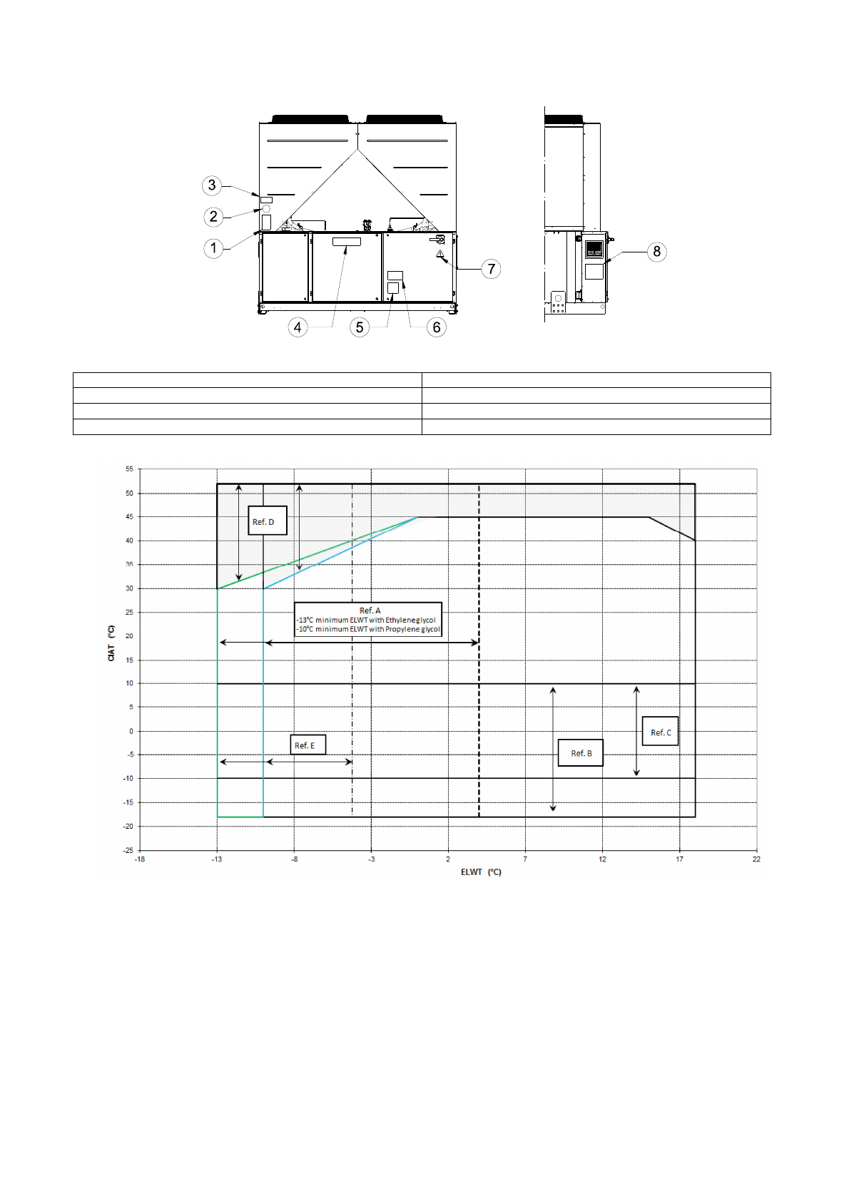
Identifisering av Etikett
Figur 2 - Belastningskapasitet
Merknad
Tegningen ovenfor representerer retningslinjer for belastningskapasiteten til rekken. Vennligst referer til Chiller Selection Software
(CSS) for driftstilstandens reelle belastningskapasitet for hver størrelse.
Tegnforklaring
CIAT = Lufttemperatur Innløp Kondensator (°C)
ELWT = Vanntemperatur Utløp Evaporator (°C)
A = Drift med Glykol (4°C under Evap LWT)
B = Viftehastighet modulering eller Behov for Speedtroll (under 10°C Kondens. Luft Temp.)
C = Viftehastighet modulering eller Behov for Speedtroll (under 10°C og opp til -10°C Kondens. Luft Temp.)*
*Gjelder kun enheter med 4-5-6 vifter
D = I dette området kan enheter fungere med delvis belastning
E = I dette området kan enhetens minste kapasitet være høyere enn verdien som vises i tabellen Tekniske egenskaper
F = Standard Virkningsgrad (standard lyd)
G = Høy Virkningsgrad (standard lyd)
1 - Symbol for ikke-brennbar gass
5 – Advarsel om stramming av kabler
2 – Type gass
6 – Advarsel om farlig spenning
3 – Data for enhetens navneplate
7 – Symbol for elektrisk fare
4 – Produsentens logo
8 – Løfteinstruksjoner