Кондиционеры Daikin EWAQ-F-SL - инструкция пользователя по применению, эксплуатации и установке на русском языке. Мы надеемся, она поможет вам решить возникшие у вас вопросы при эксплуатации техники.
Если остались вопросы, задайте их в комментариях после инструкции.
"Загружаем инструкцию", означает, что нужно подождать пока файл загрузится и можно будет его читать онлайн. Некоторые инструкции очень большие и время их появления зависит от вашей скорости интернета.

D-EIMAC00804-14EU – 120/209
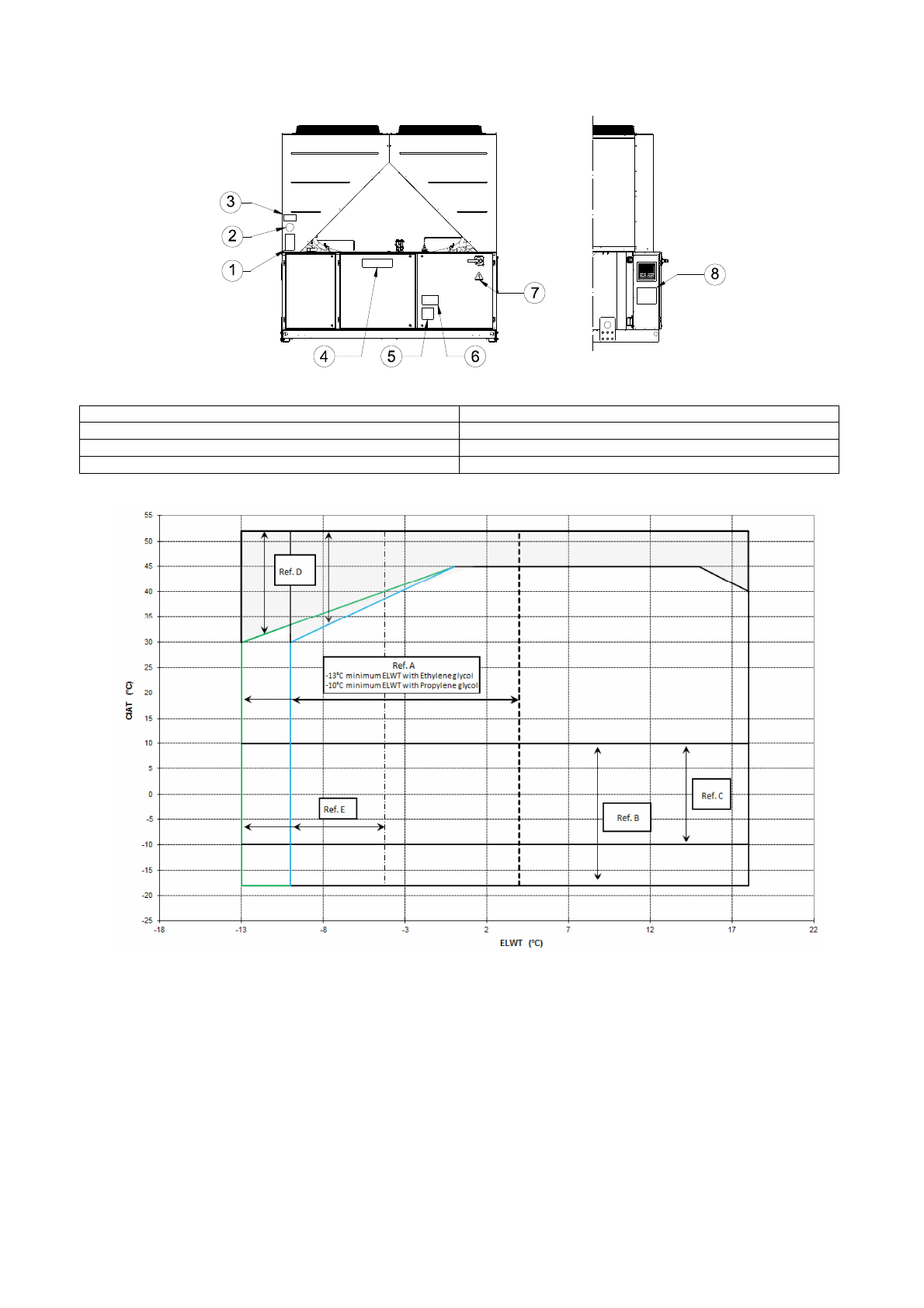
Tarran sisällön kuvaus
Kuva 2 - Käyttörajat
Huomautus
Edellä annetussa graafisessa esityksessä annetaan ohjeet liittyen toimintarajoihin. Viittaa jäähdyttimen CSS-valintaohjelmaan
(Chiller Selection Software) todellisia toimintarajoja varten jokaista kokoa kohden.
Selite
CIAT = Lauhduttimen ilman ottolämpötila (°C)
ELWT = Haihduttimesta poistuvan veden lämpötila (°C)
A = Käyttö glykolilla (alle 4°C haihd.LWT)
B = Puhaltimen nopeuden modulaatio tai Speedtrollia vaaditaan (alle 10°C lauhd. ilman lämp.)
C = Puhaltimen nopeuden modulaatio tai Speedtrollia vaaditaan (alle 10°C ja -10°C asti lauhd. ilman lämp.)*
*Viittaa vain yksiköihin, joissa on 4-5-6 puhallinta
D = Tällä alueella yksiköt voivat työskennellä osittaisella kuormituksella
E = Tällä alueella yksikön minimi kapasiteetti voi olla korkeampi kuin tekniset ominaisuudet sisältävässä taulukossa annettu arvo
F = Standardi tehokkuus (standardi meluääni)
G = Korkea tehokkuus (standardi meluääni)
1 – Ei syttyvän kaasun symboli
5 – Kaapelien kiristykseen liittyvä varoitus
2 – Kaasutyyppi
6 – Vaarallisen jännitteen varoitus
3 – Yksikön tyyppikilven tiedot
7 – Sähkövaaran symboli
4 – Valmistajan merkki
8 – Nosto-ohjeet