Кондиционеры Daikin EWAQ-F-SL - инструкция пользователя по применению, эксплуатации и установке на русском языке. Мы надеемся, она поможет вам решить возникшие у вас вопросы при эксплуатации техники.
Если остались вопросы, задайте их в комментариях после инструкции.
"Загружаем инструкцию", означает, что нужно подождать пока файл загрузится и можно будет его читать онлайн. Некоторые инструкции очень большие и время их появления зависит от вашей скорости интернета.

D-EIMAC00804-14EU – 140/209
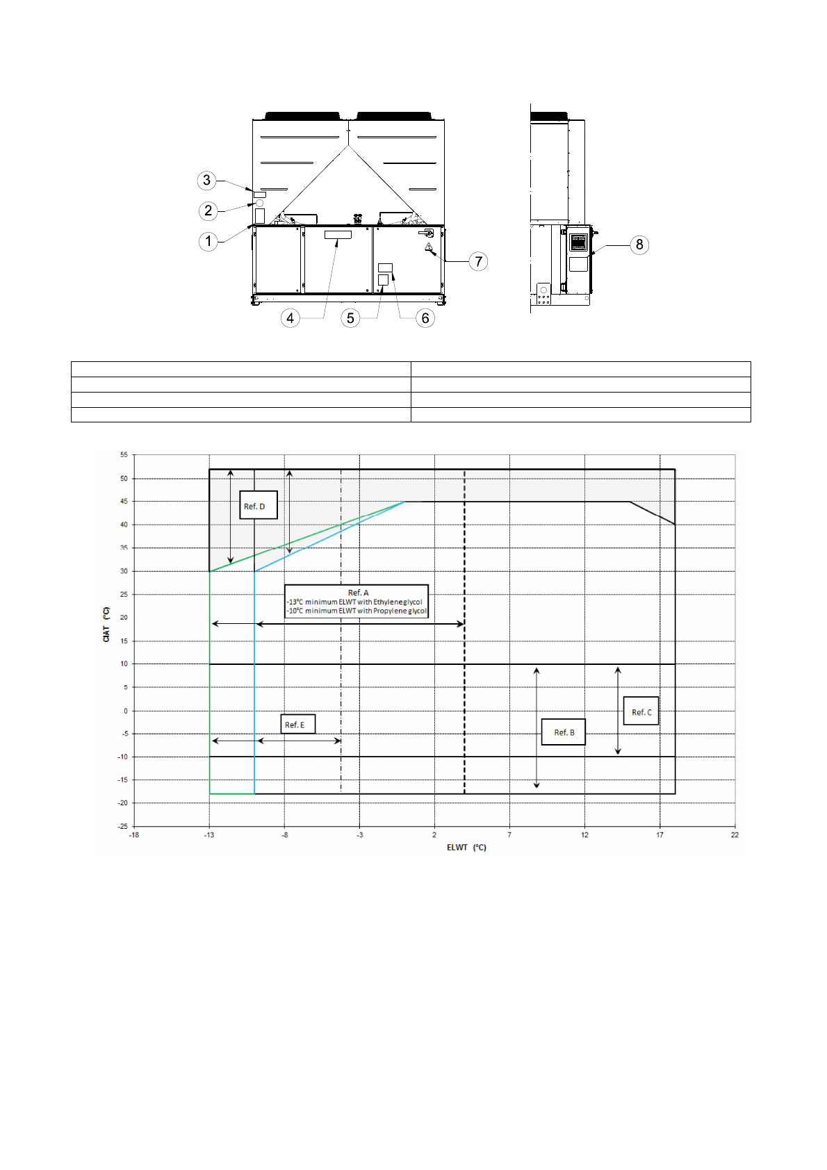
Identifikace štítku
Obrázek 2 - Provozní limity
Poznámka
Graf nahoru uvádí p
ř
ibližný údaj o provozním omezení rozsahu. Konzultujte software p
ř
íslušného chilleru (CSS) vztahující se k
provozním limit
ů
m v reálných pracovních podmínkách pro každou dimenzi za
ř
ízení.
Vysv
ě
tlivky
CIAT = Teplota vzduchu na vstupu kondenzátoru (°C)
ELWT = Teplota vody na výstupu výparníku (°C)
A = Fungování s glykolem (tepl. vody na výstupu výparníku nižší než 4°C)
B = nastavení pot
ř
ebné rychlosti ventilátoru nebo speedtroll (tepl. vzduchu kondenzace nižší než 10°C )
C = nastavení pot
ř
ebné rychlosti ventilátoru nebo speedtroll (tepl. vzduchu kondenzace mezi 10°C a -10°C)
*
*pouze v p
ř
ípad
ě
jednotek vybavených 4-5-6 ventilátory
D = v této zón
ě
mohou jednotky pracovat p
ř
i
č
áste
č
ném zatížení
E = v této zón
ě
minimální kapacita jednotky m
ů
že být v
ě
tší, než je uvedeno v tabulce technických specifikací
F = standardní výkonnost (standardní zvuková emise)
G = vysoká výkonnost (standardní zvuková emise)
1 – Symbol neho
ř
lavého plynu
5 – Upozorn
ě
ní o utažení kabel
ů
2 – Typ plynu
6 – Upozorn
ě
ní o nebezpe
č
ném nap
ě
tí
3 – Údaje identifika
č
ního štítku za
ř
ízení
7 – Symbol elektrického nebezpe
č
í
4 – Logo výrobce
8 – Pokyny ke zvedání