Кондиционеры Daikin EWAQ-F-SL - инструкция пользователя по применению, эксплуатации и установке на русском языке. Мы надеемся, она поможет вам решить возникшие у вас вопросы при эксплуатации техники.
Если остались вопросы, задайте их в комментариях после инструкции.
"Загружаем инструкцию", означает, что нужно подождать пока файл загрузится и можно будет его читать онлайн. Некоторые инструкции очень большие и время их появления зависит от вашей скорости интернета.

D-EIMAC00804-14EU – 40/209
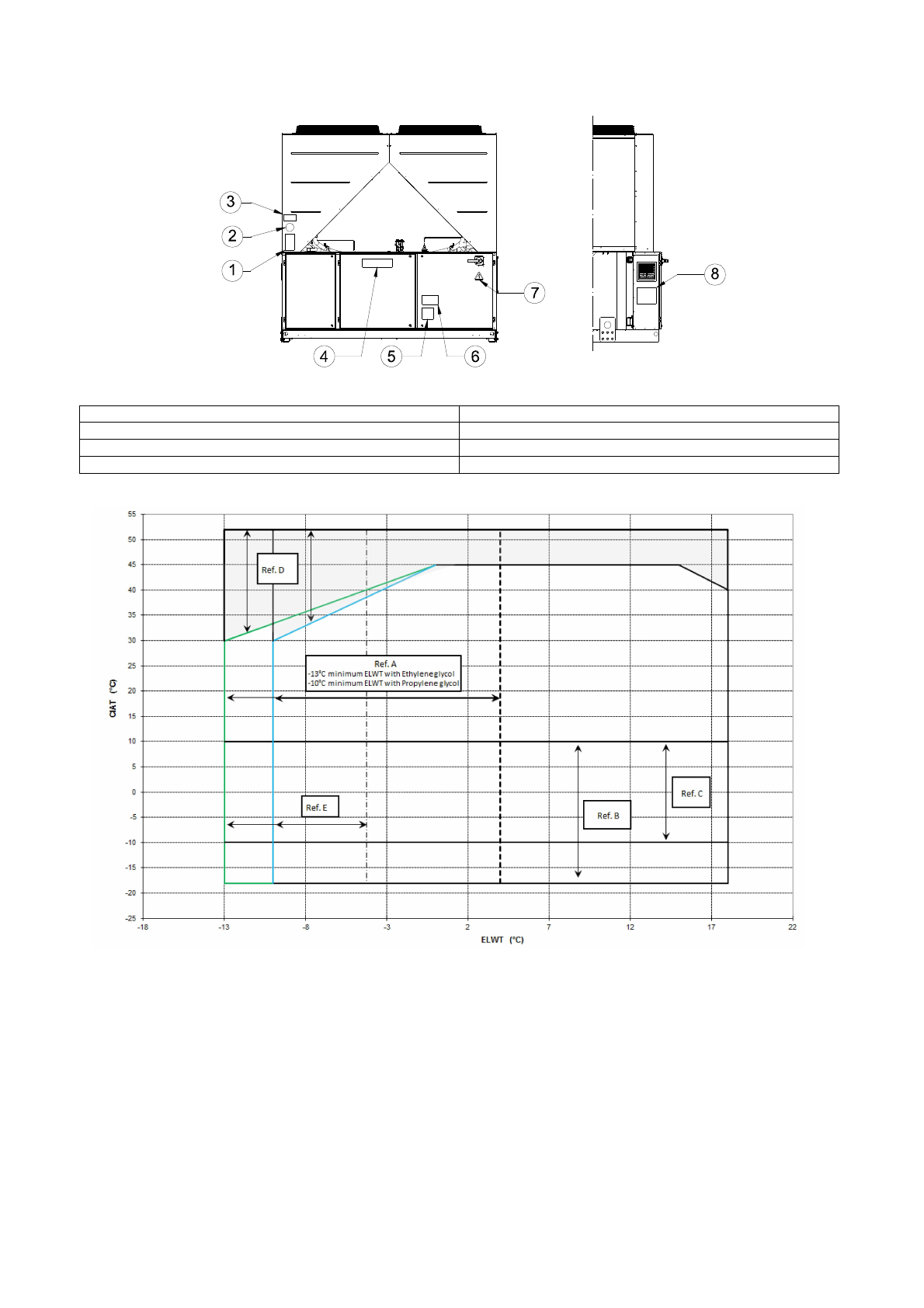
Identificatie Etiket
Figuur 2 - Bedrijfslimieten
Opmerking
Het bovenstaand schema geeft richtlijnen voor de bedrijfslimieten. Raadpleeg de Chiller Selection Software (CSS) voor de reële
bedrijfslimieten voor elke grootte.
Legende
CIAT = Temperatuur inlaatlucht condensator (°C)
ELWT = Temperatuur uitstromend water verdamper (°C)
A = Werking met glycol (onder de 4°C Evap LWT)
B = Modulatie ventilatorsnelheid of nodige Speedtroll (onder de 10°C Temp. condensatielucht)
C = Modulatie ventilatorsnelheid of nodige Speedtroll (onder de 10°C en tot -10°C Temp. condensatielucht)*
*Alleen voor eenheden met with 4-5-6 ventilators
D = In deze zone kunnen de eenheden werken met deellast
E = In deze zone kan de minimale capaciteit van de eenheid hoger zijn dan de waarde aangegeven in de table met technische
kenmerken
F = Standaardefficiëntie (standaardgeluid)
G = Hoge efficiëntie (standaardgeluid)
1 – Symbool niet-ontvlambaar gas
5 – Waarschuwing bevestiging kabel
2 – Gastype
6 – Waarschuwing gevaarlijke spanning
3 – Gegevens naamplaatje eenheid
7 – Symbool elektrisch gevaar
4 – Logo fabrikant
8 – Hefinstructies