Кондиционеры Daikin EWAQ-F-SL - инструкция пользователя по применению, эксплуатации и установке на русском языке. Мы надеемся, она поможет вам решить возникшие у вас вопросы при эксплуатации техники.
Если остались вопросы, задайте их в комментариях после инструкции.
"Загружаем инструкцию", означает, что нужно подождать пока файл загрузится и можно будет его читать онлайн. Некоторые инструкции очень большие и время их появления зависит от вашей скорости интернета.

D-EIMAC00804-14EU – 199/209
SLOVENŠ
Č
INA – PREVOD IZVIRNIH NAVODIL V ANGLEŠ
Č
INI
Ta priro
č
nik je namenjen usposobljenemu osebju kot pomembna pomo
č
, ne more pa nadomestiti takega osebja.
Hvala za nakup tega hladilnega agregata.
TA PRIRO
Č
NIK PRED NAMEŠ
Č
ANJEM IN ZAGONOM
ENOTE NATAN
Č
NO PREBERITE.
Z NAPA
Č
NIM NAMEŠ
Č
ANJEM LAHKO PRIDE DO UDARA
ELEKTRIKE, KRATKEGA STIKA, PUŠ
Č
ANJA, POŽARA ALI
DRUGE ŠKODE NA OPREMI IN POŠKODB LJUDI.
ENOTO MORA NAMESTITI PROFESIONALNI STROJNIK
OZIROMA TEHNIK.
ENOTO
MORA
ZAGNATI
POOBLAŠ
Č
ENI
IN
USPOSOBLJENI STROKOVNJAK.
VSE DEJAVNOSTI JE TREBA IZVAJATI V SKLADU Z
LOKALNIMI ZAKONI IN PREDPISI.
Č
E KATERO KOLI OD NAVODIL V TEM PRIRO
Č
NIKU NI
JASNO,
JE
ENOTO
STROGO
PREPOVEDANO
NAMEŠ
Č
ATI IN ZAGANJATI.
Č
E IMATE POMISLEKE, SE ZA NASVET IN INFORMACIJE
OBRNITE NA PREDSTAVNIKA PROIZVAJALCA.
Opis
Enota, ki ste jo kupili, je zra
č
no hlajeni hladilni agregat. To je
naprava, ki hladi vodo (ali mešanico vode in glikola) v okviru
temperaturnih meja, opisanih v nadaljevanju. Delovanje enote
temelji na stiskanju in kondenzaciji pare ter uparevanju v skladu s
Carnotovim krožnim procesom. Glavni sestavni deli so:
-
spiralni kompresor, ki zviša tlak pare hladilnega sredstva z
uparjalnega na kondenzacijski tlak,
-
uparjalnik, v katerem teko
č
e hladilno sredstvo pod nizkim
tlakom izpari in tako hladi vodo,
-
kondenzator, v katerem para pod visokim tlakom kondenzira in
prek zra
č
no hlajenega izmenjevalnika toplote odda toploto iz
ohlajene vode v okolico,
-
ekspanzijski ventil, ki zniža tlak kondenzirane teko
č
ine s
kondenzacijskega na uparjalni tlak.
Splošne informacije
Vsem enotam so priložene vezalne sheme, certificirane
risbe, napisne ploš
č
ice in izjave o skladnosti (DOC –
Declaration Of Conformity); v teh dokumentih so vsi
tehni
č
ni podatki o enoti, ki ste jo kupili, in so KLJU
Č
NI
DOKUMENTI TEGA PRIRO
Č
NIKA.
Č
e opazite neskladje med podatki v tem priro
č
niku in dokumenti
opreme, se zanašajte na dokumente, priložene opremi.
Č
e imate
kakršne koli pomisleke, se obrnite na predstavnika proizvajalca.
Namen tega priro
č
nika je izvajalcu namestitve in usposobljenemu
vzdrževalcu omogo
č
iti pravilno namestitev, usposobitev za zagon in
vzdrževanje enote, tako da pri tem ni nevarnosti poškodb ljudi, živali
in/ali predmetov.
Prejem enote
Tik pred namestitvijo na kon
č
no mesto morate pregledati, ali je
enota kakor koli poškodovana. Pregledati in preveriti morate vse
sestavne dele, opisane v beležki, ki jo prejmete ob dostavi.
Č
e je enota poškodovana, poškodovanega materiala ne
odstranjujte; škodo takoj prijavite transportnemu podjetju in
zahtevajte, naj enoto pregledajo.
Škodo takoj prijavite predstavniku proizvajalca. Pri dolo
č
anju
odgovornosti pomaga,
č
e naredite serijo posnetkov.
Preden poškodb ne pregleda predstavnik transportnega podjetja, jih
ni dovoljeno popravljati.
Pred namestitvijo enote preverite, ali sta model ter napajalna
napetost, ki sta navedena na napisni ploš
č
ici, pravilna. Po sprejetju
enote proizvajalcu ni mogo
č
e pripisati odgovornosti za morebitne
poškodbe.
Meje delovanja
Skladiš
č
enje
Okoljski pogoji morajo biti v naslednjih okvirih:
Najnižja temperatura okolja
:
–20 °C
Najvišja temperatura okolja
:
+42 °C
Najve
č
ja relativna vlažnost
:
95 %, brez kondenzacije
Č
e enoto skladiš
č
ite pri temperaturi pod najnižjo, se sestavni deli
lahko poškodujejo.
Č
e enoto skladiš
č
ite pri temperaturi nad najvišjo,
se varnostni ventili za
č
no odpirati.
Č
e enoto skladiš
č
ite v ozra
č
ju, v
katerem vlaga za
č
enja kondenzirati, se elektronski sestavni deli
lahko poškodujejo.
Delovanje
Č
e enota deluje izven omenjenih meja, se lahko poškoduje.
Č
e imate pomisleke, se obrnite na predstavnika proizvajalca.
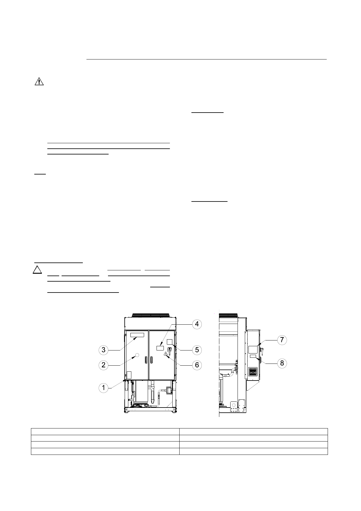
Slika 1 – Opis oznak na elektri
č
ni omarici
Opis oznak
1 – znak za nevnetljivi plin
5 – opozorilo glede zatezovanja kablov
2 – vrsta plina
6 – znak za nevarnost elektri
č
nega udara
3 – logotip proizvajalca
7 – navodila za dvigovanje
4 – opozorilo za nevarno napetost
8 – podatki na napisni ploš
č
ici