Кондиционеры Daikin EWAQ-F-SL - инструкция пользователя по применению, эксплуатации и установке на русском языке. Мы надеемся, она поможет вам решить возникшие у вас вопросы при эксплуатации техники.
Если остались вопросы, задайте их в комментариях после инструкции.
"Загружаем инструкцию", означает, что нужно подождать пока файл загрузится и можно будет его читать онлайн. Некоторые инструкции очень большие и время их появления зависит от вашей скорости интернета.

D-EIMAC00804-14EU – 20/209
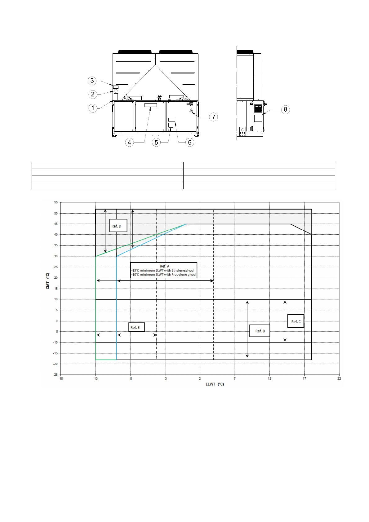
Schilder-Anordnung
Ab bildung 2 - Einsatzgrenzen
Anmerkung
The obere Graphik zeigt die Grenzlinien des Einsatzbereichs. Bitte in der Kaltwassersatz Auswahlsoftware (CSS) für die reellen
Betriebsgrenzen der Arbeitsbedingungen für jede Größe nach.
Zeichenerklärung
CIAT = Condenser Inlet Air Temperature (°C) (Verflüssiger Luftzuströmtemperatur (°C))
ELWT = Evaporator Leaving Water Temperature (°C) (Verdampfer-Auslass-Wassertemperatur (°C))
A = Betrieb mit Glykol (unter 4°C Verdampfer-AWT)
B = Einstellung der Gebläsegeschwindigkeit oder Geschwindigkeitskontrolle erforderlich (unter 10°C Kondens. Lufttemp.)
C = Einstellung der Gebläsegeschwindigkeit oder Geschwindigkeitskontrolle erforderlich (unter 10°C und bis tu -10 °C Kondens. Lufttemp.)*
*Nur für Einheiten mit 4-5-6 Gebläsen
D = In diesem Bereich können Einheiten mit Teillast arbeiten
E = In diesem Bereich sollte die Mindestleistung der Einheit höher als der in der Tabelle mit den Technischen Spezifikationen
F = Standardeffizienz (Standardgeräusch)
G = Hocheffizienz (Standardgeräusch)
1 – Symbol für nicht entflammbare Gase
5 – Warnhinweis zur Kabelbefestigung
2 – Gasart
6 – Warnhinweis vor gefährlicher Spannung
3 – Typenschild der Einheit
7 – Warnzeichen vor elektrischen Gefahren
4 – Herstellerlogo
8 – Hebeanweisungen