Кондиционеры Daikin EWAQ-F-SL - инструкция пользователя по применению, эксплуатации и установке на русском языке. Мы надеемся, она поможет вам решить возникшие у вас вопросы при эксплуатации техники.
Если остались вопросы, задайте их в комментариях после инструкции.
"Загружаем инструкцию", означает, что нужно подождать пока файл загрузится и можно будет его читать онлайн. Некоторые инструкции очень большие и время их появления зависит от вашей скорости интернета.

D-EIMAC00804-14EU – 30/209
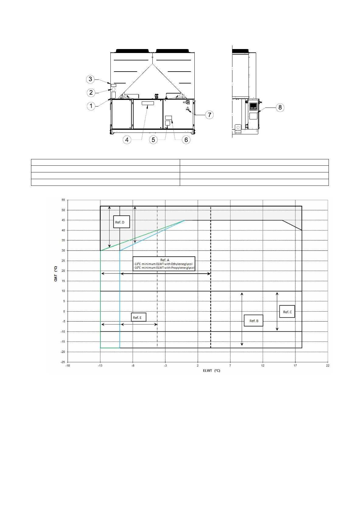
Identification de l'étiquette
Figure 2 – Limites de fonctionnement
Remarque
Le graphique en haut fournit une information indicative des limites de fonctionnement de l'intervalle. Consulter le logiciel de
sélection du chiller (CSS) pour les limites de fonctionnement dans les conditions de travail pour chaque dimension.
Légende
CIAT = Température d'entrée de l'air dans le condensateur (°C)
ELWT = Température de l'eau à la sortie de l'évaporateur (°C)
A = fonctionnement avec glycol (temp. eau sortie évap. inférieure à 4°C)
B = réglage de la vitesse du ventilateur ou régulateur de vitesse nécessaire (temp. air condensation inférieure à 10°C)
C = réglage de la vitesse du ventilateur ou régulateur de vitesse nécessaire (temp. air condensation entre 10°C et -10°C)*
*seulement en cas d'unités équipées de 4-5-6 ventilateurs
D = dans cette zone, les unités peuvent fonctionner à charge partielle
E = dans cette zone, la capacité minimale de l'unité peut être supérieure à la valeur indiquée dans le tableau des caractéristiques techniques
F = efficacité standard (émission acoustique standard)
G = efficacité élevée (émission acoustique standard)
1 – Symbole du gaz non inflammable
5 – Avertissement serrage des câbles
2 – Type de gaz
6 – Avertissement tension dangereuse
3 – Données de la plaque signalétique de l'unité
7 – Symbole indiquant un danger électrique
4 – Logo du fabricant
8 – Instructions de levage