Кондиционеры Daikin EWAQ-F-SL - инструкция пользователя по применению, эксплуатации и установке на русском языке. Мы надеемся, она поможет вам решить возникшие у вас вопросы при эксплуатации техники.
Если остались вопросы, задайте их в комментариях после инструкции.
"Загружаем инструкцию", означает, что нужно подождать пока файл загрузится и можно будет его читать онлайн. Некоторые инструкции очень большие и время их появления зависит от вашей скорости интернета.

D-EIMAC00804-14EU – 119/209
ALKUPERÄISET OHJEET ENGLANNIKSI
Tämä käyttöopas on ammattitaitoiselle henkilöstölle tarkoitettu tukiasiakirja, mutta sitä ei ole tarkoitettu kyseisen henkilöstön korvaamiseen.
Kiitos, että ostit tämän jäähdyttimen
LUE TÄMÄ KÄYTTÖOPAS HUOLELLISESTI LÄPI ENNEN
YKSIKÖN ASENNUSTA JA KÄYNNISTÄMISTÄ.
LAITTEEN
VÄÄRÄ
ASENNUS
VOI
AIHEUTTAA
SÄHKÖISKUN, OIKOSULUN, VUOTOJA, TULIPALON TAI
MUITA VAHINKOJA LAITTEELLE TAI HENKILÖVAHINKOJA.
YKSIKÖN
SAA
ASENTAA
AMMATTITAITOINEN
KÄYTTÄJÄ/TEKNIKKO.
YKSIKÖN
SAA
KÄYNNISTÄÄ
VALTUUTETTU
JA
KOULUTETTU ASIANTUNTIJA.
KAIKKI
TOIMENPITEET
TULEE
SUORITTAA
PAIKALLISTEN LAKIEN JA MÄÄRÄYSTEN MUKAISESTI.
YKSIKÖN
ASENNUS
JA
KÄYNNISTYS
ON
EHDOTTOMASTI KIELLETTY JOS KAIKKI OPPAASSA
ANNETUT OHJEET EIVÄT OLE SELVIÄ.
JOS EPÄSELVYYKSIÄ ESIINTYY, OTA YHTEYTTÄ
VALMISTAJAN EDUSTAJAAN OHJEITA JA TIETOJA
VARTEN.
Kuvaus
Hankkimasi yksikkö on "ilmajäähdytteinen jäähdytin", jonka
tarkoituksena on jäähdyttää vettä (tai vesiglykoliseosta) seuraavassa
kuvattujen rajojen sisällä. Yksikön toiminta perustuu höyryn
kompressioon,
lauhdutukseen
ja
haihdutukseen
Carnot'n
kiertoprosessin mukaisesti. Se koostuu seuraavista pääosista:
-
Scroll-kompressori jäähdyttävän höyrypaineen nostamiseksi
haihdutuspaineesta lauhdutuspaineeseen.
-
Haihdutuin, jossa alipaineinen jäähdyttävä neste haihtuu
jäähdyttäen näin vettä.
-
Lauhdutin, jossa korkeapaineinen höyry lauhtuu poistamalla
jäähdytetystä
vedestä
poistetun
lämmön
ympäristöön
ilmajäähdytetyn lämmönvaihtimen ansiosta.
-
Paisuntaventtiili, jonka avulla lauhdutetun nesteen painetta
saadaan vähennetyksi lauhdutetusta paineesta haihtuvaan
paineeseen.
Yleistä
Kaikki yksiköt toimitetaan kytkentäkaavioilla, sertifioiduilla
piirroksilla, arvokilvellä; ja DOC:lla
(Vaatimuksenmukaisuusvakuutuksella); nämä asiakirjat
sisältävät kaikki tekniset tiedot liittyen hankkimaasi yksikköön ja
NIITÄ TULEE PITÄÄ TÄHÄN KÄYTTÖOPPAASEEN
KUULUVINA OLEELLISINA ASIAKIRJOINA
Mikäli tämän oppaan ja laitteistojen asiakirjojen välillä esiintyy
eroavaisuuksia, viittaa koneessa oleviin asiakirjoihin. Mikäli epäilyksiä
esiintyy, ota yhteyttä valmistajan edustajaan.
Tämän käyttöoppaan tarkoituksena on tehdä yksikön asennus,
käyttöönotto ja huolto mahdolliseksi asentajalle ja ammattitaitoiselle
käyttäjälle aiheuttamatta riskejä henkilöille, eläimille ja/tai esineille.
Yksikön vastaanottaminen
Tarkista yksikkö välittömästi mahdollisten vahinkojen varalta kun se
vastaanotetaan. Kaikki lähetyslistalla olevat osat on tutkittava ja
tarkastettava.
Jos yksikössä esiintyy vahinkoja, älä irrota vahingoittunutta materiaalia
ja ilmoita vahingosta välittömästi kuljetusyritykselle ja pyydä heitä
tarkastamaan yksikkö.
Ilmoita vahingosta valmistajan edustajalle välittömästi. Ota sarja
valokuvia, sillä ne auttavat vastuun selvittämisessä.
Vahinkoa ei saa korjata ennen kuin yksikkö on tarkistettu
kuljetusliikkeen edustajan toimesta.
Ennen yksikön asentamista tarkista että arvokilvessä osoitettu
syöttövirta ja malli ovat oikeat. Mahdollisia yksikön hyväksynnän
jälkeen havaittuja vahinkoja ei voi pitää valmistajan vastuulla.
Käyttörajat
Säilytys
Ympäristöllisten olosuhteiden tulee olla seuraavien rajojen sisällä:
Ympäristölämpötila vähintään
:
-20°C
Ympäristölämpötila korkeintaan
:
+42°C
Suhteellinen kosteus korkeintaan
:
95% ei kondensoiva
Säilytys alle minimilämpötila voi vahingoittaa osia. Säilytys yli
maksimilämpötilan aiheuttaa turvaventtiilien aukeamisen. Yksikön
varastointi ympäristössä, jossa esiintyy lauhdevettä, vai vahingoittaa
elektronisia yksikköjä.
Toiminta
Yksikön käyttö mainittujen rajojen ulkopuolella voi vahingoittaa
yksikköä.
Jos epäilyksiä ilmenee ota yhteyttä valmistajan edustajaan.
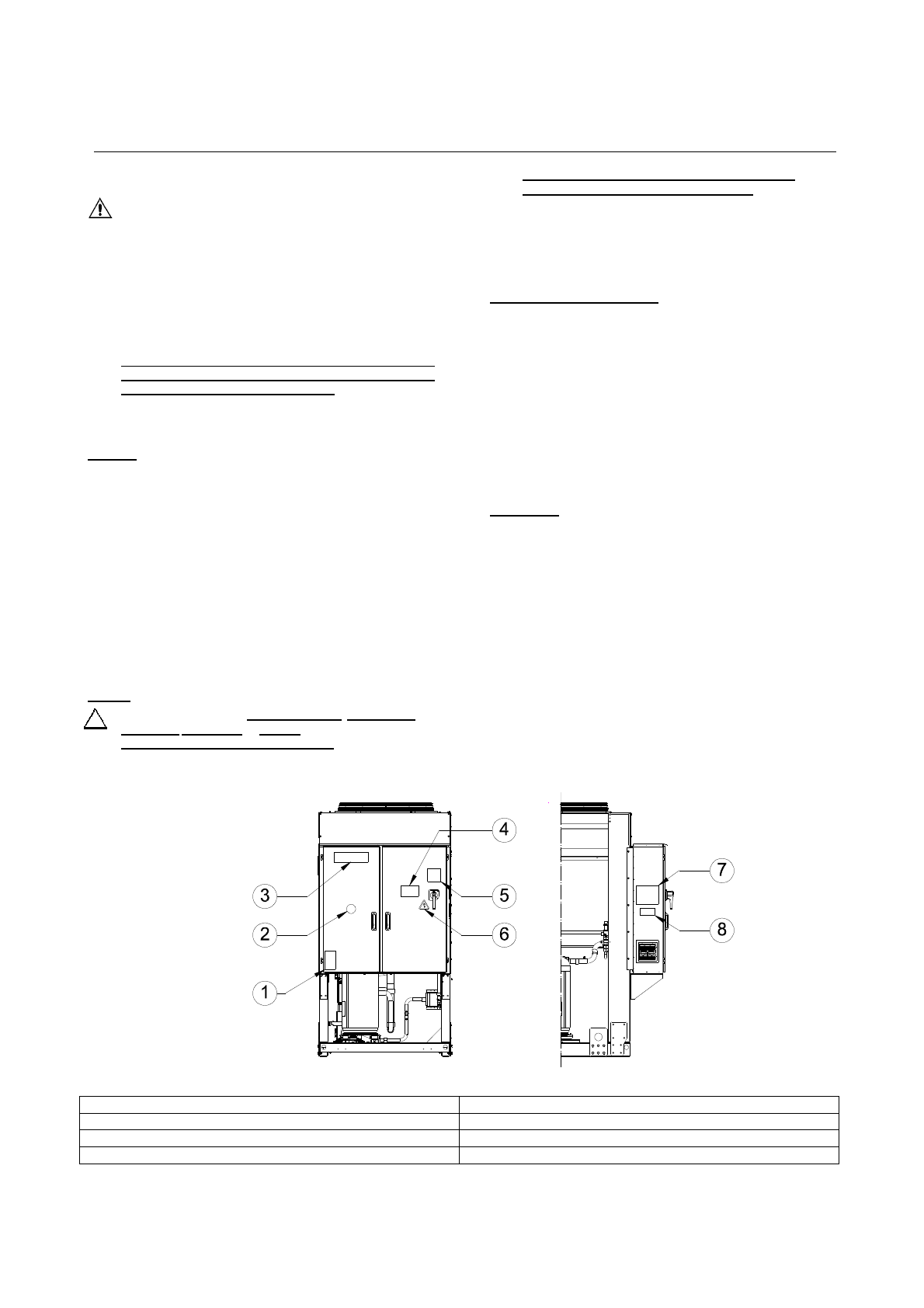
Kuva 1 - Sähkötauluun kiinnitettyjen tarrojen kuvaus
Tarran sisällön kuvaus
1 – Ei syttyvän kaasun symboli
5 – Kaapelien kiristykseen liittyvä varoitus
2 – Kaasutyyppi
6 – Sähkövaaran symboli
3 – Valmistajan merkki
7 – Nosto-ohjeet
4 – Vaarallisen jännitteen varoitus
8 – Yksikön tyyppikilven tiedot