Кондиционеры Daikin EWAQ-GZXR - инструкция пользователя по применению, эксплуатации и установке на русском языке. Мы надеемся, она поможет вам решить возникшие у вас вопросы при эксплуатации техники.
Если остались вопросы, задайте их в комментариях после инструкции.
"Загружаем инструкцию", означает, что нужно подождать пока файл загрузится и можно будет его читать онлайн. Некоторые инструкции очень большие и время их появления зависит от вашей скорости интернета.

D-EIMAC01109-14EU - 89/208
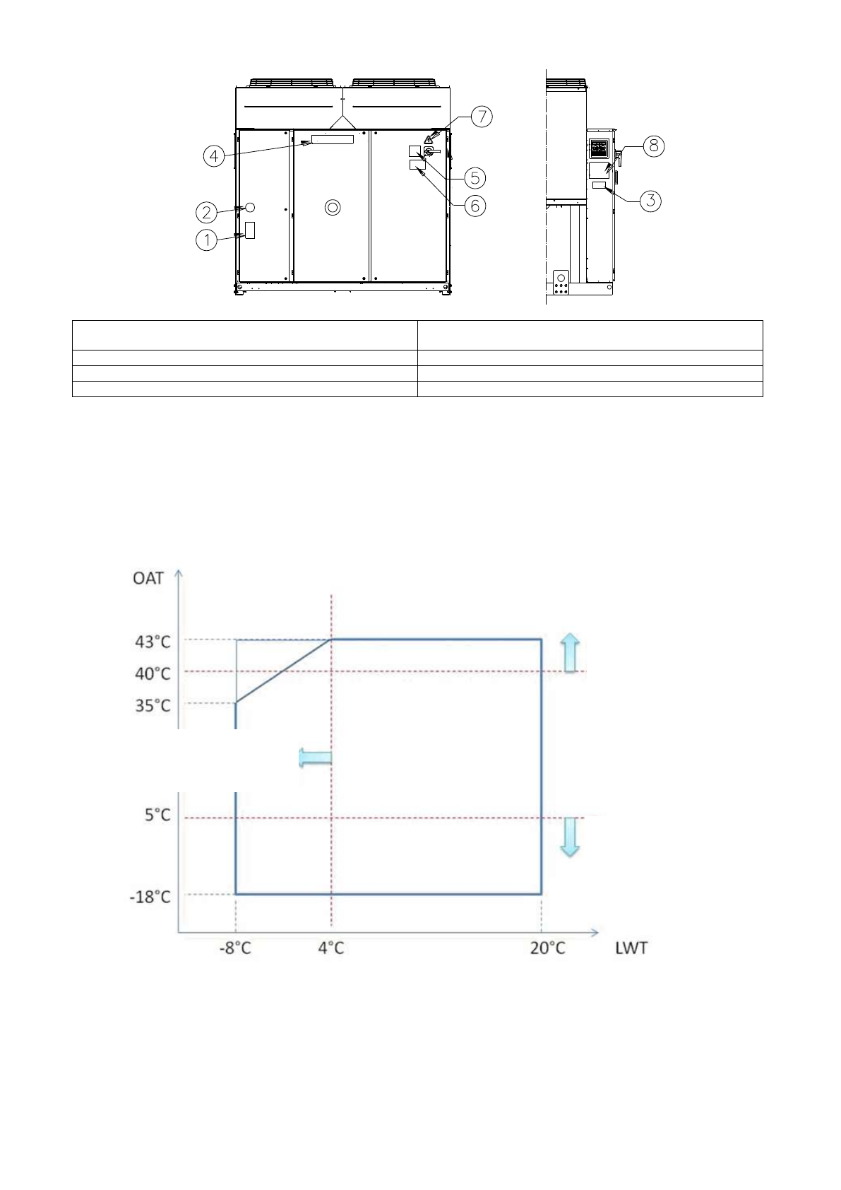
Идентификация табличек
Рисунок 2 - Предельные рабочие значения
Leaving Water temperature (°C)
Примечание
На вышеуказанных графиках представлены рекомендации по эксплуатационным ограничениям серии. В отношении реальных эксплуатационных ограничений в рабочих
условиях см. Программное обеспечение по выбору чиллеров (CSS).
Условные обозначения
Температура окружающей среды (°C)
=
температура воздуха на входе конденсатора (°C)
Температура воды на выходе (°C)
=
температура воды на выходе испарителя (°C)
1
– Символ "Невоспламеняющийся газ"
5
– Предупреждение о необходимости контроля
затягивания кабелей
2
– Тип газа
6
– Предупреждение о наличии опасного напряжения
3
– Табличка номинальных данных агрегата
7
– Предупреждение о наличии опасного напряжения
4
– Логотип компании-производителя
8
–
Указания по подъему агрегата
Те
мп
ер
ату
ра
окр
уж
аю
щ
ей
ср
ед
ы
(
°C)
Температура воды на выходе (°C)
В этой области чиллер может
работать
с
частичной
нагрузкой
Необходимо
использовать
версию для низкой наружной
температуры
Необходимо
использовать
версию с подачей
гликоля
Содержание
- 88 Описание; электрическими схемами, сертифицированными; При получении агрегата; Хранение; Идентификация табличек
- 89 Рисунок 2 - Предельные рабочие значения; частичной
- 90 Техника безопасности; Руководства по; Шум
- 91 Рисунок 3 - Подъем агрегата
- 92 : Указания по подъему агрегата
- 93 Монтажная позиция; Требования к месту установки
- 95 Рисунок 5 - Схема подключения гидравлических линий к испарителю; рекуперации тепла s; Обработка воды; Таблица 1 - Допустимое содержание примесей в воде
- 96 Электрическая система; Указания общего характера; Эксплуатация агрегата; Обязанности оператора; Сервисное и гарантийное обслуживание
- 97 Срок службы; Таблица 2 - График проведения планового техобслуживания; Операции; Информация об используемом хладагенте; Утилизация