Кондиционеры Daikin EWAQ-GZXR - инструкция пользователя по применению, эксплуатации и установке на русском языке. Мы надеемся, она поможет вам решить возникшие у вас вопросы при эксплуатации техники.
Если остались вопросы, задайте их в комментариях после инструкции.
"Загружаем инструкцию", означает, что нужно подождать пока файл загрузится и можно будет его читать онлайн. Некоторые инструкции очень большие и время их появления зависит от вашей скорости интернета.

D-EIMAC01109-14EU - 39/208
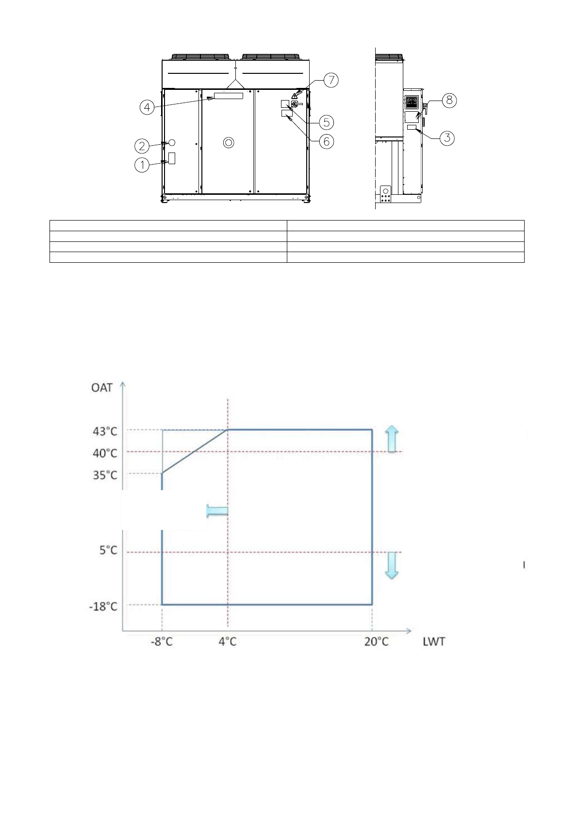
Identificatie van het etiket
Figuur 6 - Werkingslimieten
Leaving Water temperature (°C)
Opmerking
De bovenstaande grafische weergave vertegenwoordigt richtlijnen over de werkingslimieten van het gamma. Raadpleeg de
Chiller Selection Software (CSS) voor de echte bedrijfsomstandigheden van de werkingslimieten voor elke grootte.
Legend
Omgevingstemperatuur
(°C)
= Luchtinlaattemperatuur condensator(°C)
Watertemperatuur bij uitlaat
(°C)
= Wateruittredetemperatuur verdamper (°C)
1
– Symbool van niet-ontvlambaar gas
5
– Waarschuwing spanning van de kabels
2
– Type Gas
6
– Waarschuwing gevaarlijke spanning
3
– Gegevens identificatielabel van de groep
7
– Symbool voor elektrisch gevaar
4
– Logo van de fabrikant
8
– Instructies voor het optillen
O
mgev
ing
ste
mpera
tuu
r
(°C)
Watertemperatuur bij uitlaat (°C)
Optie
Glycol
vereist
Optie Belasting omgeving
vereist
De waterkoeler kan werken
met gedeeltelijke lading
Содержание
- 88 Описание; электрическими схемами, сертифицированными; При получении агрегата; Хранение; Идентификация табличек
- 89 Рисунок 2 - Предельные рабочие значения; частичной
- 90 Техника безопасности; Руководства по; Шум
- 91 Рисунок 3 - Подъем агрегата
- 92 : Указания по подъему агрегата
- 93 Монтажная позиция; Требования к месту установки
- 95 Рисунок 5 - Схема подключения гидравлических линий к испарителю; рекуперации тепла s; Обработка воды; Таблица 1 - Допустимое содержание примесей в воде
- 96 Электрическая система; Указания общего характера; Эксплуатация агрегата; Обязанности оператора; Сервисное и гарантийное обслуживание
- 97 Срок службы; Таблица 2 - График проведения планового техобслуживания; Операции; Информация об используемом хладагенте; Утилизация