Кондиционеры Daikin EWAQ-GZXR - инструкция пользователя по применению, эксплуатации и установке на русском языке. Мы надеемся, она поможет вам решить возникшие у вас вопросы при эксплуатации техники.
Если остались вопросы, задайте их в комментариях после инструкции.
"Загружаем инструкцию", означает, что нужно подождать пока файл загрузится и можно будет его читать онлайн. Некоторые инструкции очень большие и время их появления зависит от вашей скорости интернета.

D-EIMAC01109-14EU - 19/208
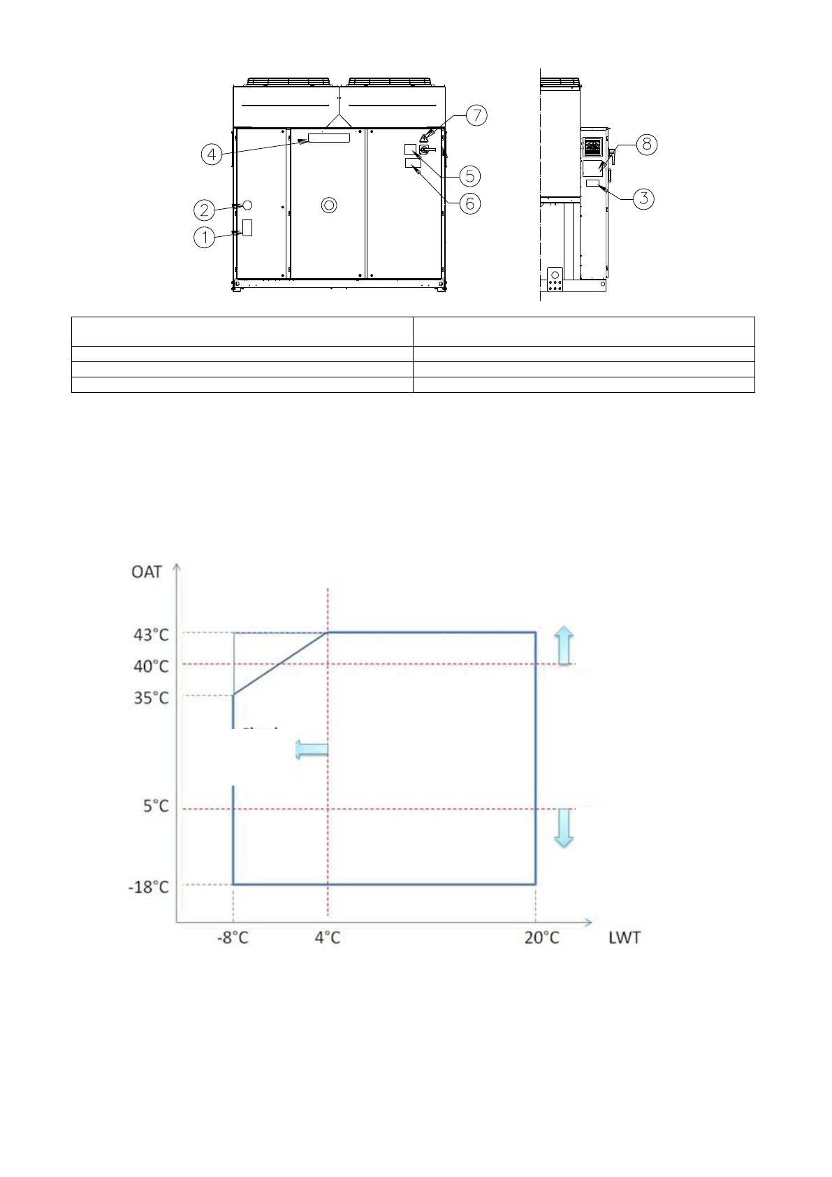
Angabe des Klebeschilds
Abbildung 2 - Betriebsgrenzen
Leaving Water temperature (°C)
Hinweis
Die obigen Grafiken sind ein Leitfaden zu den Betriebsgrenzbereichen. Bitte nehmen Sie für die realen Betriebsbedingungen der
Betriebsgrenzen für jede Größe Bezug auf die Chiller Selection Software (CSS).
Legende
Umgebungstemperatur (°C)
= (°C) = Lufteintrittstemperatur am Verdichter (°C)
Wasserauslauftemperatur (°C)
= Wasserauslauftemperatur am Verdampfer (°C)
1
– Symbol des nicht entzündlichen Gases
5
– Hinweis, dass der feste Sitz der Kabel kontrolliert
werden muss
2
– Gasart
6
– Warnung vor gefährlicher Spannung
3
– Typenschilddaten der Einheit
7
– Symbol für Stromschlaggefahr
4
– Logo des Herstellers
8
– Anweisungen zum Anheben
Umgebungste
mpe
ra
tur (°C
)
Wasserauslauftemperatur (°C)
Das Kühlaggregat kann unter Teillast
arbeiten
Glykoloption
erforderlich
Niedertemperaturoption
(Umgebung)
erforderlich
Содержание
- 88 Описание; электрическими схемами, сертифицированными; При получении агрегата; Хранение; Идентификация табличек
- 89 Рисунок 2 - Предельные рабочие значения; частичной
- 90 Техника безопасности; Руководства по; Шум
- 91 Рисунок 3 - Подъем агрегата
- 92 : Указания по подъему агрегата
- 93 Монтажная позиция; Требования к месту установки
- 95 Рисунок 5 - Схема подключения гидравлических линий к испарителю; рекуперации тепла s; Обработка воды; Таблица 1 - Допустимое содержание примесей в воде
- 96 Электрическая система; Указания общего характера; Эксплуатация агрегата; Обязанности оператора; Сервисное и гарантийное обслуживание
- 97 Срок службы; Таблица 2 - График проведения планового техобслуживания; Операции; Информация об используемом хладагенте; Утилизация