Кондиционеры Daikin EWAQ-GZXR - инструкция пользователя по применению, эксплуатации и установке на русском языке. Мы надеемся, она поможет вам решить возникшие у вас вопросы при эксплуатации техники.
Если остались вопросы, задайте их в комментариях после инструкции.
"Загружаем инструкцию", означает, что нужно подождать пока файл загрузится и можно будет его читать онлайн. Некоторые инструкции очень большие и время их появления зависит от вашей скорости интернета.

D-EIMAC01109-14EU - 189/208
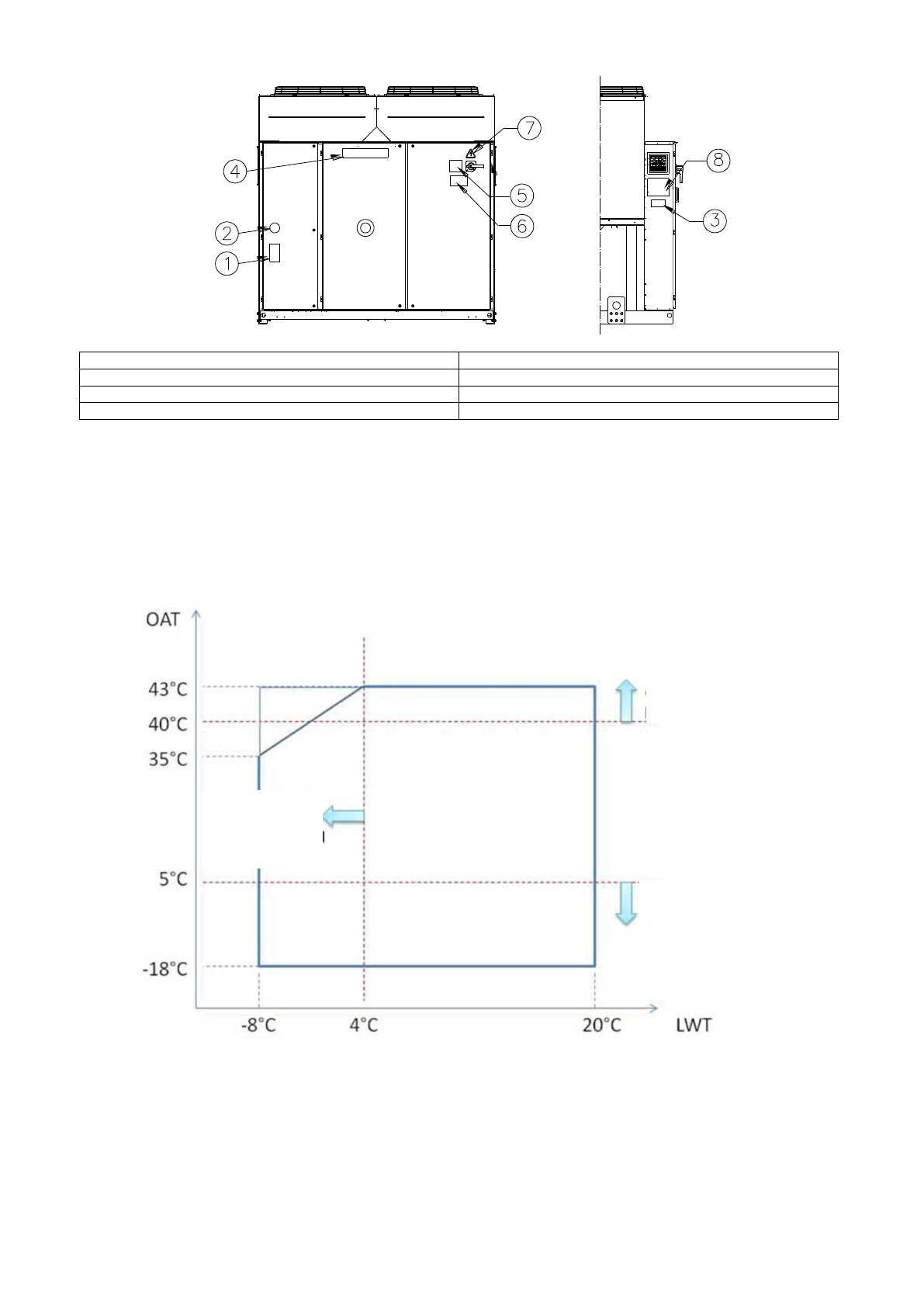
Обозначения на етикета
Инструкции за повдигане 2 - Работни ограничения
Leaving Water temperature (°C)
Забележка
Горните графики представляват насоки относно работните граници на обхвата. Моля, консултирайте Софтуер за Избор
на Охладител (CSS) за реалните работни граници в работни условия за всеки размер.
Легенда
Температура на среда (°C)
= Входна Температура на Въздух на Кондензатора (°C)
Температура на изходяща вода (°C)
= Температура на Изходяща Вода на Изпарител (°C)
1
– Символ за незапалим газ
5
– Указание за затягане на кабелите
2
– Вид на газа
6
– Указание за опасно напрежение
3
– Обозначителни данни на табелката на уреда
7
– Символ за електрическа опасност
4
– Лого на производителя
8
– Инструкции за повдигане
Темпера
ту
ра
н
а с
ре
д
а
(°
C)
Температура на изходяща вода (°C)
В тази зона охладителят може да
работи на частично натоварване
Изисква се опция зареждане в
атмосфера
Изисква се
опция гликол
Содержание
- 88 Описание; электрическими схемами, сертифицированными; При получении агрегата; Хранение; Идентификация табличек
- 89 Рисунок 2 - Предельные рабочие значения; частичной
- 90 Техника безопасности; Руководства по; Шум
- 91 Рисунок 3 - Подъем агрегата
- 92 : Указания по подъему агрегата
- 93 Монтажная позиция; Требования к месту установки
- 95 Рисунок 5 - Схема подключения гидравлических линий к испарителю; рекуперации тепла s; Обработка воды; Таблица 1 - Допустимое содержание примесей в воде
- 96 Электрическая система; Указания общего характера; Эксплуатация агрегата; Обязанности оператора; Сервисное и гарантийное обслуживание
- 97 Срок службы; Таблица 2 - График проведения планового техобслуживания; Операции; Информация об используемом хладагенте; Утилизация