Проекторы NEC PH1202HL - инструкция пользователя по применению, эксплуатации и установке на русском языке. Мы надеемся, она поможет вам решить возникшие у вас вопросы при эксплуатации техники.
Если остались вопросы, задайте их в комментариях после инструкции.
"Загружаем инструкцию", означает, что нужно подождать пока файл загрузится и можно будет его читать онлайн. Некоторые инструкции очень большие и время их появления зависит от вашей скорости интернета.

ix
Важная информация
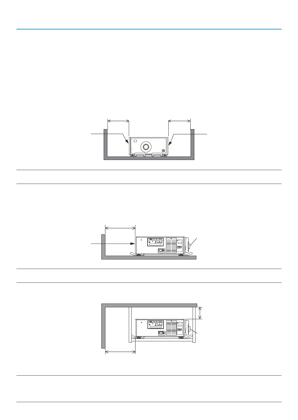
Свободное пространство для установки проектора
Обеспечьте достаточное свободное пространство вокруг проектора, как показано ниже.
Поток воздуха высокой температуры, выходящий из устройства, может быть затянут в устройство снова.
Не устанавливайте проектор в местах, где движение воздуха из СОВК направлено на проектор.
Горячий воздух, поступающий из СОВК, может быть затянут отверстием забора воздуха проектора. Если это произой-
дет, температура внутри проектора поднимется слишком высоко, что вызовет автоматическое выключение питания
проектора функцией защиты от перегрева.
• Перед установкой проектора в портретную ориентацию прочтите страницу
, Портретная проекция(вертикальная
ориентация).
Пример 1 – Если с обеих сторон проектора находятся стены.
30 см/11,8" или больше
30 см/11,8" или больше
Отверстие забора воздуха
Отверстие забора воздуха
ПРИМЕЧАНИЕ:
Иллюстрация показывает нужные размеры свободного пространства, требуемого для передней, нижней и верхней сторон проектора.
Пример 2 – Если сзади проектора находится стена.
(1) Для напольной установки:
70 см/27,6" или больше
Объектив
Выпускное отверстие
ПРИМЕЧАНИЕ:
Иллюстрация показывает нужные размеры свободного пространства, требуемого для задней, правой, левой и верхней стороны проектора.
(2) Для потолочного монтажа:
30 см/12" или больше
70 см/27,6" или больше
Объектив
ПРИМЕЧАНИЕ:
1. Иллюстрация показывает нужные размеры свободного пространства, требуемого для передней, правой, левой, задней и нижней стороны проектора.
2. При подвешивании проектора в пределах диапазона 30 см/12 дюймов от потолка обеспечьте достаточное свободное пространство для всех четырех
сторон и снизу проектора.
Содержание
- 3 Важная информация; Предостережения относительно безопасности; Меры предосторожности; ВНИМАНИЕ; Утилизация бывшего в использовании изделия; ПРЕДУПРЕЖДЕНИЕ
- 4 ii; • Не размещайте проектор в следующих условиях:
- 5 iii; ix
- 6 iv; и задние ручки, затем переместите проектор.; главного питания, удлинитель с переключателем или прерывателем.; Предупреждение по использованию дополнительных объективов
- 7 служивание или сервисные услуги.; Предостережение относительно безопасности лазера; может вызвать опасное радиоактивное излучение.
- 9 vii; EEE Yönetmeliğine Uygundur.
- 10 viii; или более после каждого часа просмотра.; Функция управления питанием
- 11 Пример 2 – Если сзади проектора находится стена.; сторон и снизу проектора.
- 12 Содержание
- 13 xi; Мультиэкранное проецирование
- 14 xii; Подключение к другому оборудованию
- 15 xiii; Программное обеспечение поддержки пользователя
- 16 Комплектация
- 17 Знакомство с проектором; Поздравляем с покупкой проектора; . Можно осуществлять беспроводное; Общие сведения
- 19 Об этом руководстве пользователя
- 20 Названия деталей проектора; Лицевая/верхняя сторона
- 21 Задняя часть
- 22 Элементы управления/индикаторная панель; Отображаемая информация
- 23 Функции разъемов; COMPUTER IN/ Компонентный входной разъем; • Питание нельзя подать с разъема REMOTE на пульт дистанционного
- 24 Названия элементов пульта дистанционного управления; ного управления
- 25 Установка элемента питания; Вставьте новые батареи
- 26 дистанционного датчика, расположенного на корпусе проектора.; управления используется в проводной работе.
- 27 Порядок проецирования изображения; - Автоматическая оптимизация сигнала компьютера (
- 28 Подключение компьютера/Подсоединение силового кабеля; способах подключения см. раздел «1. Подключение компьютера» на стр.
- 29 войдет в нижний стопор.
- 30 Включение проектора; • Включение проектора:; для получения информации
- 31 • Когда появится сообщение «ПРОЕКТОР ЗАБЛОКИРОВАН! ВВЕДИТЕ СВОЙ; Выполнение калибровки объектива; Посредством выполнения операции [КАЛИБРОВКА ОБЪ-
- 32 Примечание об экране запуска (экран выбора языка меню); Для выбора языка меню выполните следующие действия:; С помощью кнопки
- 33 Выбор источника сигнала; Выбор компьютера или источника видеосигнала
- 34 Выбор источника по умолчанию; На экране отобразится меню.
- 35 Регулировка размера и положения изображения; Для упрощения в этой главе чертежи и кабели опущены.
- 36 Регулировка настроек проектора (регуляторы уровня); что приведет к повреждению проектора.
- 37 Настройка с помощью кнопок на корпусе; или
- 38 Регулировка с помощью пульта дистанционного управления
- 39 Фокус; Фокус регулируется.; Масштабирование; Масштабирование настраивается.
- 40 Автоматическая оптимизация сигнала компьютера; Настройка изображения с помощью автонастройки
- 41 Выключение проектора; Чтобы выключить проектор:; Сначала нажмите на кнопку
- 43 Остановка проецирования; Нажмите кнопку SHUTTER на проекторе или пульте дистанцион-; Выключение источника света; Удерживайте кнопку в течение трех секунд при включенном питании; Блокировка проектора для его невозможной эксплуатации; Нажмите кнопку KEY LOCK (БЛОКИРОВКА) в течение 1 секунды на
- 45 Увеличение изображения; Увеличение картинки возможно до четырехкратного размера.
- 46 Изменение РЕЖИМА ИСТОЧНИКА СВЕТА/Проверка; Описание
- 48 Проверка энергосберегающего эффекта [ИЗМЕРЕНИЕ СО2]; с начала эксплуатации до настоящего времени. Вы
- 49 Коррекция горизонтальных и вертикальных трапецеидальных
- 52 Предотвращение несанкционированного использования; Чтобы включить функцию безопасности:
- 54 Чтобы отключить функцию БЕЗОПАСНОСТЬ:
- 55 Проецирование 3D-видео; Данный проектор поддерживает стереоочки DLP и 3D-излучатель.; Правила техники безопасности; слишком близко к экрану увеличит утомление глаз.; Процедура просмотра 3D-видео с помощью данного проектора
- 56 Включите питание 3D-очков и наденьте очки для просмотра видео.
- 57 Когда видео не могут просматриваться в 3D; Возможные причины
- 58 Управление проектором с помощью браузера HTTP; Общий обзор; Эксплуатация проектора; Подготовка перед началом работы
- 59 ПИТАНИЕ: Служит для управления питанием проектора.
- 60 ИЗОБРАЖЕНИЕ: Служит для управления настройками видео проектора.
- 61 ПРОВОДНАЯ
- 62 правильность сетевых настроек.
- 64 Сохранение изменений для сдвига объектива, масштабирования; Пример использования
- 65 Отобразится экран подтверждения действия.
- 67 Меню будет закрыто.
- 69 Что можно сделать благодаря мультиэкранному проецированию; Случай 1
- 71 бражение на четыре части.
- 72 • Не устанавливайте блоки проектора прямо друг на друга.
- 73 Отображение двух изображений одновременно; • Автономный экран проецируется, когда включено питание.; Функция картинка в картинке (КАРТИНКА В КАРТИНКЕ); тельного дисплея
- 74 Выберите входной сигнал с помощью кнопок
- 75 Откройте экран для переключения положения дисплеев.
- 76 • Следующие операции доступны только для главного дисплея.
- 77 Отображение изображения с помощью функции [СМЕШИВАНИЕ; Перед пояснением по использованию функции смешивания краев; Пример: Размещение двух проекторов параллельно
- 78 чтобы не активировать другие проекторы. (; Настройка наложения проекционных экранов
- 80 Используйте кнопку
- 81 Экран переключится на экран настройки уровня черного.
- 82 Центральный проектор
- 83 Использование экранного меню; Использование меню; Установки будут сохранены до следующих изменений.
- 84 Окна меню и диалоговые окна обычно включают следующие элементы:; выносится на передний план.
- 85 Список пунктов меню
- 91 Проецирует видео с устройства, подключенного к разъему HDMI IN.
- 93 Редактирование сигнала из списка ввода [ПРАВКА]; Отобразится окно редактирования.
- 94 Удаление сигнала из списка ввода [ВЫРЕЗАТЬ]; Данные из буфера обмена будут вставлены на место сигнала.; Удаление всех сигналов из списка ввода [УДАЛИТЬ ВСЕ]; Отобразится подтверждающее сообщение.
- 97 Управляет деталями изображения.
- 99 Служит для ручной настройки параметров ЧАСЫ и ФАЗА.
- 101 Для сигнала компьютера
- 102 стандартным соотношением сторон для видеоисточника.
- 103 ПРИМЕЧАНИЕ: Данная функция недоступна с сигналами RGB.
- 105 ) для получения информации о способе работы.; СТЕРЕО ПРОСМОТР
- 107 ) для получения дополнительной информации о; РЕЖИМ; ) для получения дополнительной информации.
- 109 правлении с помощью сдвига объектива.; устройства изменяется.
- 110 получения дополнительной информации о данном действии.
- 111 Способ настройки; нажмите кнопку ENTER.; для наведения курсора на [EXIT] на экране
- 112 Настройка искажений кривой проекционного экрана.; ПРОГРАММНОЕ СРЕДСТВО (Для дальнейшей поддержки)
- 114 ) для получения более подробной информации.
- 115 Условия для использования функции управления окнами; • Все проекторы должны выполнять следующие условия.
- 116 Для цвета меню можно выбрать две опции: ЦВЕТ и МОНОХРОМНОЕ.; Включение и выключение сообщений [ИНДИКАТОР СООБЩЕНИЯ]
- 118 ФРОНТАЛЬНАЯ СО СТОЛА
- 120 Цвет не будет зафиксирован.
- 122 РЕЖИМ АДМИНИСТРАТОРА; РЕЖИМ МЕНЮ
- 123 ТАЙМЕР ПРОГРАММЫ
- 124 до тех пор, пока выключение не станет возможным.
- 125 Активация таймера программы; Отобразится экран выбора.; Изменение запрограммированных настроек; Удаление программ; кнопку
- 126 НАСТР. ДАТЫ И ВРЕМЕНИ; и во время запуска проектора.
- 127 ЗАДНИЙ СИД; Включение функции безопасности [БЕЗОПАСНОСТЬ]
- 128 Откроется экран КОНТРОЛЬ ID.
- 129 включено, когда этот параметр был установлен на «HDBaseT».
- 130 Чтобы подключиться к серверу DHCP:
- 134 HTTP СЕРВЕР
- 137 Настройка потребляемой мощности в режиме ожидания.
- 138 компьютера будет спроецирован.; Использование таймера выключения [ВЫКЛ ТАЙМЕР]
- 142 АДРЕС IP
- 144 Подключение компьютера; Подключение аналогового сигнала RGB
- 146 или высокоскоростной кабель High; Предупреждения по подключению кабеля DisplayPort; • Используйте сертифицированный кабель DisplayPort.
- 147 Если это произойдет, перезапустите компьютер.
- 148 Подключение внешнего монитора
- 149 Подключение проигрывателя Blu-ray или других аудио/видео
- 150 в экранном меню проектора.
- 152 Подключение документ-камеры
- 153 Подключение к проводной локальной сети; Пример подключения к локальной сети; Пример подключения к проводной локальной сети
- 154 Подключение к передающему устройству HDBaseT (продается; Пример соединения
- 155 Проецирование в портретной ориентации (вертикальная; Меры предосторожности при установке; • Для обеспечения воздушного потока сохраните 30 см/11,8 дюйма
- 157 Техническое обслуживание; Очистка фильтров; может привести к пожару.; (1) Поворачивайте ручку налево до ее вращения без сопро-
- 158 Откройте рычаг блокировки на крышке фильтра и; Прочистите всю пыль с фильтров, используя вакуумный
- 159 Также удалите пыль с решеток снаружи проектора.; (2) Поверните слоты защелки на фильтре грубой очистки; (3) Убедитесь, что все шесть защелок находится немного
- 160 (5) Заблокируйте рычаг и вставьте его в блокирующий слот
- 161 Очистка объектива; не поцарапать или повредить поверхность объектива.; Чистка корпуса; Если он сильно загрязнен, используйте мягкое чистящее средство.
- 162 Рабочая среда для программного обеспечения пользователя; Следующие программы можно загрузить с нашего сайта.; Служба загрузки обновлений; Поддерживаются следующие ОС
- 163 Установка программного обеспечения; Установка для программного обеспечения Windows; Появится окно Панели управления.
- 164 Подключите ваш компьютер к сети Интернет и посетите наш веб-сайт (; • Удаление программного обеспечения; Data/NEC Projector User Supportware/PC Control Utility Pro 5».
- 165 Управление проектором посредством ЛВС (Virtual Remote Tool); Экран виртуального пульта дистанционного управления
- 166 • Кликните два раза по ярлыку; Запуск из меню «Пуск»
- 167 Нажмите на пиктограмму Virtual Remote Tool; Просмотр файла справки Virtual Remote Tool; на панели задач, когда открыто окно Virtual Remote Tool.
- 168 Управление проектором через локальную сеть (PC Control Utility; Экран программы PC Control Utility Pro 4
- 169 «Система и безопасность»; Просмотр Справки к PC Control Utility Pro 4; • Отображение Справки во время работы с PC Control Utility Pro 4.
- 170 PC Control Utility Pro 5 запустится.; Просмотр Справки к PC Control Utility Pro 5; • Отображение Справки во время работы с PC Control Utility Pro 5.; • В строке меню кликните на «Help» («Справка»); • Отображение Справки с помощью панели Dock; Отобразится экран Справки.
- 171 Расстояние до проекции и размер экрана; Типы объективов и проекционное расстояние
- 173 Диапазон сдвига объектива
- 174 Установка дополнительной платы (продается отдельно); Необходимый инструмент: Крестообразная отвертка
- 175 Затяните два винта с обеих сторон слота.
- 176 Перечень совместимых входных сигналов; Аналоговый компьютерный сигнал
- 179 Технические характеристики
- 181 Дополнительный объектив (продается отдельно)
- 182 Размеры корпуса
- 183 Рисунок для закрепления устройства с размерами
- 184 Подключение и уровень сигнала каждого вывода
- 185 Протокол связи
- 188 Использование управления GPIO; Функция
- 189 Временная диаграмма управления GPIO; Пример выбора HDMI
- 190 Поиск и устранение неисправностей; Показания индикаторов
- 192 Типичные неисправности и способы их устранения; Неисправность
- 194 Если изображение отсутствует или отображается неправильно.; или перейдите к следующему шагу)
- 195 Коды управления ПК и кабельное соединение; Коды управления ПК
- 196 Контрольный перечень для устранения неисправностей; Частота случаев; всегда; Питание; Прочее
- 197 В отведенном ниже месте подробно опишите возникшую проблему.












